Historique des types de commutateurs téléphoniques automatiques en France

🟦⬜🟥 🟦⬜🟥 🟦⬜🟥 🟦⬜🟥 🟦⬜🟥 🟦⬜🟥

VII - Les commutateurs électroniques de type temporel de 2ème génération

wordleElectronique2G

Généralités :

Les Commutateurs électroniques de type temporel de 2ème génération sont mis en service pour la première fois en France le 16 juin 1981 (système E10N1)

En effet, la République Française demeure la locomotive mondiale de la Commutation Électronique Temporelle, suite à une succession de choix politiques, techniques et industriels ambitieux de plus de deux décennies et devance en cela les conclusions unanimes du Colloque International de Commutation qui se tient du 21 au 25 septembre 1981 à Montréal (ISS' 81) qui confirme le tournant massif et définitif au tout électronique temporel et à la transmission en tout numérique MIC.

Les Commutateurs électroniques de type temporel de 2ème génération sont aujourd'hui totalement hors service (au 8 juin 2023).

Ils sont caractérisés par une capacité de raccordement typique comprise entre 15.000 et 65.000 abonnés par cœur de chaîne, avec une capacité d'établissement d'appels téléphoniques typiquement comprise entre 90.000 et 200.000 appels à l'heure ; le tout avec une fiabilité renforcée par rapport à leurs prédécesseurs temporels de première génération et une résistance accrues face aux surcharges éventuelles.

Les systèmes électroniques de type temporel de 2ème génération déployés en France sont les suivants :

  • -E10N1,
  • -MT20,
  • -MT25,
  • -MT35 (mort-né).

Réseaux de Connexion numériques Intégralement Temporels

&

Réseaux de Connexion numériques Mixtes - Temporels et Spatiaux

En effet, certaines variantes existent dans les Réseaux de Connexion des Commutateurs temporels.

Dans un Réseau de Connexion numérique intégralement temporel (PLATON, E10N3, E10B3, MT20 de petite capacité et MT25 de petite capacité), il faut beaucoup de Mémoires Tampon afin de stocker le temps nécessaire les signaux de conversation des voies entrantes pour les rediriger vers les bonnes voies de sortie.

Vu le prix de ces mémoires au début de la commutation temporelle, ainsi que par souci de simplification du Réseau de Connexion, il a parfois été décidé pour certains systèmes (AXE10, AXE Transgate 4, E12, E10N1, MT20 de grande capacité et MT25 de grande capacité) d’intégrer un ou plusieurs étages réalisés en électronique numérique spatiale entre l’étage d’entrée temporel et l’étage de sortie temporel des Réseaux de Connexion, afin de pouvoir se passer d’un maximum de Mémoires Tampon. 

Cet étage numérique spatial de brassage est plus simple à réaliser et beaucoup moins coûteux car il est dépourvu de mémoires (éléments coûteux) : il est constitué de circuits de portes logiques à commutation rapide, synchronisées sur la cadence de fonctionnement des Liaisons numériques MIC.

Par contre, un étage spatial numérique, même s’il permet d’améliorer le brassage, ne peut procéder qu’au basculement d'un Intervalle de Temps donné (IT) d'une Liaison MIC entrante vers une autre Liaison MIC sortante, toujours à la même position temporelle donnée.

Donc, un étage spatial numérique ne permet en aucun cas de décaler l’Intervalle de Temps (IT) entre une Liaison MIC entrante et une Liaison MIC sortante. Donc, ce ou ces étages ne viennent qu'en appoint dans un Réseau de Connexion numérique, mais ne peuvent pas assurer à eux seuls la commutation téléphonique complète.

Il s’agit là d’un compromis entre la technique pure et la finance, pour pouvoir réaliser un brassage entre les Liaisons numériques MIC entrantes et sortantes. Cette technique fonctionne tout aussi parfaitement que la technique de connexion purement temporelle. Cependant, l’intérêt de cet artifice tend depuis de nombreuses années à s’estomper, étant donnée la baisse des prix vertigineuse des circuits Mémoires.

En revanche, dans un Commutateur temporel, quelque soit sa génération et son modèle, le Réseau de Connexion temporel est systématiquement dupliqué pour raison de sécurité.


Famille 1000-E10 : incluant deux sous-familles : E10 et MT de la société française Alcatel qui fait aujourd'hui partie du groupe franco-américain Alcatel-Lucent :


Sous-famille E10, (abréviation : E pour Électronique car 100% électronique, projet n°10), (licence Alcatel époque CGE), dont le prototype est issu du projet PLATON, en France existe le type suivant de 2ème génération :

E10N1 - E10 Niveau 1 - (Dénomination initiale : E10B). Temporel de seconde génération mis en étude à partir de 1976 et commandé le 15 décembre 1976 par l'Administration des Télécommunications. Connu aussi sous l'appellation E10/128 US. (composé de 128 Unités de Sélection). L'organe de commande consiste en une commande répartie entre plusieurs organes différents et spécialisés. Chaque organe est dédoublé pour assurer la sécurité du système et fonctionnent en service normal, en partage de charge. Ces organes dédoublés sont : les Taxeurs (TX), les Traducteurs (TR) et les Marqueurs (MQ). Au nombre de 2 à 5 ce sont les Multienregistreurs (MR) suivant l'importance du trafic à traiter. 

  • - Les Taxeurs (TX 30) sont chargés d'établir et comptabiliser les taxes des conversations pour chaque abonné, ainsi que leur facturation détaillée. 
  • - Les Traducteurs (TR 30) constituent la mémoire programmable (et modifiable) des routages possibles dans le Commutateur Téléphonique ou vers d'autres Commutateurs téléphoniques du Réseau. Pour ce faire, ils stockent toutes les caractéristiques des abonnés, et toutes celles des faisceaux de circuits d'acheminement. Chaque TR 30 possède une capacité de 1.000 acheminements différents et peut supporter jusqu'à 40.000 abonnés en pleine charge.
  • - Les Multienregistreurs (MR 30) assurent l'enregistrement de la numérotation et sa réémission, puis le déroulement et le séquencement de l'établissement en temps réel des communications et leur arrêt. Chaque Multienregistreur de type MR 30 constitue un ensemble de 254 Enregistreurs et occupe une baie. (à comparer au volume équivalent d'une baie d'Enregistreurs de Rotary 7A1 formée de 4 Enregistreurs). Les Multienregistreurs sont les seuls organes du système E10N1 à pouvoir prendre des initiatives en temps réel.
  • - Les Marqueurs (MQ 30) sont l'interface entre les autres organes de commandes précités et les Unités de Raccordement d'Abonnés via le Réseau de Connexion (CX 30).

_____

  • - Est également présent un Organe de Contrôle (OC) chargé des opérations de test et de maintenance du système. Cet organe n'est pas dupliqué.
  • - Sont également présents des organes (au nombre de 2 à 16, suivant options et capacité système retenues) d'Équipement de Tonalités et d'Auxiliaires (ETA 30), Chaque ETA étant basé sur l'utilisation d'un microprocesseur central Intel 8085, incluant les :
    • - Générateurs de Tonalités (GT),
    • - Multirécepteurs de Fréquences pour la numérotation au clavier et pour la signalisation intercentre (RF), chaque ensemble RF étant constitué de 32 circuits de récepteurs de fréquences.
    • - Additionneurs de voies pour les Circuits de ConFérence à 3 (CCF). Sachant que chaque ETA ne peut contenir que 2 CCF seulement, chaque CCF permettant de régir 8 Conférences à 3 simultanément, ce qui limitera l'accès aux souscriptions des Services Conforts lorsqu'ils se démocratiseront à partir des années nonante et précipitera en conséquence la fin anticipée du système E10N1 en 2002.

_____

  • - Le Réseau de Connexion (CX 30), dans un Commutateur E10N1 est certes de type temporel mais est formé de 3 étages : un étage d'entrée temporel, un étage de sortie temporel, mais au milieu de ces deux étages un étage spatial de technologie numérique toutefois. 
  • Il s'agit là d'un compromis qui a été utilisé afin de pouvoir assurer à moindre frais et à moindres difficultés un brassage optimal entre les voies entrantes et sortantes pour des Réseaux de Connexion de grande capacité (pour l'époque) que l'on ne savait pas concevoir en technologie temporelle pure. 
  • Mais le Réseau de Connexion d'un Commutateur E10N1, n'en reste pas moins un réseau entièrement numérisé même si en son sein, un étage de technologie spatiale numérique est nécessaire pour permettre un brassage optimal à moindre coût et avec un maximum de performances techniques pour l'époque.
    • Dès 1981, chaque commutateur élémentaire, de 32 Unités de Sélection chacun, permet le raccordement de 64 multiplex MIC et peuvent être combinés jusqu'à 4 exemplaires pour former un commutateur d'une capacité de 256 multiplex numériques MIC de 30 voies téléphoniques chacun, sous un trafic de 2.500 erlangs. 
    • Dès 1984, chaque commutateur élémentaire, de 32 Unités de Sélection chacun, permet le raccordement de 64 multiplex MIC et peuvent être combinés jusqu'à 6 exemplaires pour former un commutateur d'une capacité de 384 multiplex numériques MIC de 30 voies téléphoniques chacun, sous un trafic de 3.800 erlangs. 
    • Dès 1987, chaque commutateur élémentaire, de 32 Unités de Sélection chacun, permet le raccordement de 64 multiplex MIC et peuvent être combinés jusqu'à 8 exemplaires pour former un commutateur d'une capacité de 512 multiplex numériques MIC de 30 voies téléphoniques chacun, sous un trafic de 5.000 erlangs.

_____

  • - Les Unités de Raccordement d'Abonnés :
  • En 1980, au commencement des Commutateurs E10N1, les unités de raccordement d’abonnés sont des CSE 31 (Concentrateur Satellite Electronique type 31) dont la matrice de concentration analogique est désormais entièrement électronique réalisée à l'aide de composants discrets ou intégrés (100% électronique), sans pièce mobile, à coût compétitif.  Le CSE 31 est conçu par la CIT-Alcatel.
  • - Chaque CSE 31 peut héberger jusques 1023 abonnés analogiques, lorsque les alvéoles sont toutes équipées de cartes de 16 abonnés. La capacité s'en trouvant réduite lorsque sont utilisées des cartes de 8 abonnés seulement (cas des abonnés discriminés avec retransmission des impulsions de taxation au domicile).
    • - L'étape de concentration en sortie de chaque CSE 31 de 1023 abonnés s'effectue selon 3 options possibles, sur 60, 90 ou 120 voies numériques, par l'utilisation de 2, 3 ou 4 liaisons numériques MIC, suivant le trafic souhaité et sa densité estimée.
    • - Chaque CSE 31 est articulé sur l'utilisation de 4 microprocesseurs Intel 8085 combinés aux périphériques d'interface Intel 8741.
    • - (Nota : l'équipement numéro Zéro ne peut pas recevoir d'abonné.)


1983CommutateurRaspail2et1CSE

Ci-dessus : vue des tous premiers CSE type 31 (Concentrateur Satellite Electronique) mis en service dans Paris Intra-Muros le 21 décembre 1983, rattachés au Commutateur E10N1 - RASPAIL 2 ET1 (AD72).

Photographie PTT - 1983 - Coll. C. R-V.

_____

CSE

Ci-dessus : CSE type 31.

Photographie PTT - 14 décembre 1989 - Coll. C. R-V.

_____

Mais à partir de 1987, les CSE31 ont été remplacés par une nouvelle génération plus évoluée conçue par Alcatel, compatible avec les services supplémentaires à valeur ajoutée et au Numéris : il s’agit des CSN (Centre Satellite Numérique) qui seront même déployés dans les commutateurs MT25 pourtant conçus par Thomson à l'origine.

Dans le système E10N1, le Commutateur doit avoir atteint le Palier Logiciel n°6 pour accepter la connexion avec les CSN.

Nota : il reste tout de même des CSE 31 en service actuellement (2017).

Concernant cette nouvelle technologie des CSN, lorsqu'elle est utilisée pour le raccordement des lignes analogiques, la conversion des signaux analogiques de conversation en signaux numériques s'effectue dès le premier étage d'entrée dans les cartes de raccordement d'abonnés. À partir de là, tout le reste de la chaîne de commutation du Commutateur de départ vers le Commutateur d'arrivée, en passant par les transmissions s'effectue en signaux numériques.

  • - Chaque CSN peut héberger jusqu'à 5120 abonnés analogiques.
  • - Chaque CSN peut héberger jusqu'à 2560 abonnés Numéris.
  • - Tout CSN peut héberger à la fois des abonnés analogiques et des abonnés Numéris, par panachage des cartes terminales d'abonnés.
  • - Eux seuls étant capables d'héberger des abonnés Numéris, l'arrivée des CSN dans le réseau téléphonique français sont alors la condition première à la naissance de Numéris dans notre pays.
  • - Les premiers CSN mis en service sont d'abord raccordés sur Commutateurs E10N1 existants courant 1987, peu avant l'arrivée du Numéris le 21 décembre 1987 à Saint-Brieuc.
  • - Puis, les premiers raccordements de CSN sur Commutateur MT25 suivent avec la mise en service à Paris de MONTMARTRE 4 ET1 (AC94) le 24 mars 1988 ; ces CSN ci ne desservent en premier que des abonnés analogiques ; le Numéris ne sera déployé via les commutateurs MT25 qu'ultérieurement à partir du 21 mars 1990.
  • - En Avril 1988, la synchronisation du Réseau Téléphonique est réalisée, préalable technique nécessaire à la généralisation sur tout le territoire du RNIS en France.
  • - Puis, suivent en Île-de-France les premiers CSN mis en service sur E10N1 avec le Commutateur E10N1 de Puteaux (PUTEAUX 6 ET4 (CC86)) mis en service le 4 mai 1988 avec des CSN en première-monte, Commutateur dont l'usage est réservé, par décision de l'administration, très-majoritairement aux abonnés Numéris.

_____

BaieCSN1GPremierePresentation

Ci-dessus : vue des tous premiers CSN (Centre Satellite Numérique) mis en service ; nous reconnaissons la présentation en baies ne comportant pas de portes. (en lieu et place, des panneaux en plexiglas qui sont absents sur l'image.)

Photographie C. R-V, au central Carnot.

_____

Existent plusieurs générations de Cartes d'Abonnés utilisées dans les CSN1G. De multiples générations cohabitent. 

  • 9 types de cartes sont utilisés pour le raccordement d'abonnés analogiques,
  • 9 types de cartes sont utilisés pour le raccordement d'abonnés Numéris,
  • 6 types de cartes sont utilisés pour le raccordement de Liaisons Louées RTC analogiques ou numériques.

Ci-dessous, en extrait : 3 types concernant les abonnés analogiques.

CarteAbonnesOrdinairesTABAM

Ci-dessus : Carte d'Abonnés Analogiques Ordinaires TABAM pouvant recevoir 16 abonnés analogiques ordinaires.

Photographie C. R-V.

_____

CarteAbonnesOrdinairesTMABS

Ci-dessus : Carte d'Abonnés Analogiques Ordinaires TMABS pouvant recevoir 16 abonnés analogiques ordinaires.

Photographie C. R-V.

_____

CarteAbonnesDiscriminesTABAD

Ci-dessus : Carte d'Abonnés Analogiques Discriminés TABAD pouvant recevoir 8 abonnés analogiques discriminés (renvoi de taxation à domicile 12kHz).

Photographie C. R-V.

_____

Concernant les Commutateurs E10N1, tout comme PLATON, il existe au dessus de chaque groupe constitué par quelques-uns de ces Commutateurs, un Centre de Traitement des Informations (CTI) équipé d'un calculateur MITRA 225 réalisé en technologie TTL, chargé de superviser en différé un groupe de commutateurs E10 dans toutes ses fonctions (exploitation, maintenance, sauvegarde du système et de la taxation...).

Nota : à titre transitoire, les tous premiers exemplaires E10N1 de présérie sont supervisés par un CTI équipé d'un calculateur MITRA 125. Ceux-ci seront rapidement remplacés par un MITRA 225.

À la création du système E10N1 entièrement normalisé, de pleine série, un CTI pourvu d'un calculateur MITRA 225 permet de gérer jusqu'à 80.000 voire 100.000 abonnés, répartis sur un maximum de 5 à 6 Commutateurs E10N1. Puis, au fur et à mesure des évolutions, des paliers, les ressources disponibles s'avéreront tout juste suffisantes pour qu'un CTI avec MITRA 225 puisse superviser un maximum de 2 Commutateurs E10N1, eu égard, les années passant, à la complexification des logiciels et des services optionnels se diversifiant.

  • - En 1991, le calculateur des CTI mis en service cette année-là est remplacé par un OMC83 2G plus puissant et sera raccordé aux ultimes Commutateurs E10N1 les plus récents qui seront mis en service cette année-ci. La validation des OMC83 2G a été faite par le CNET Lannion A le 7 janvier 1991, et les deux premiers OMC 83 2G mis en service, expérimentalement, le sont à Grenoble et à Épinal. Ce nouveau calculateur développé par Alcatel est basé sur l'utilisation de Multiprocesseurs Alcatel 8300. Un CTI pourvu d'un calculateur OMC83 2G peut superviser 6 Commutateurs E10N1 à lui seul, au lieu de 2 pour un MITRA 225 à cette même époque... Le système Mitra 225 avait fait son temps et arrivait en bout de course.
  • - En 1993, la fabrication des calculateurs MITRA 225, de la société SEMS cesse totalement. Les pièces de rechange n'étant plus disponibles, le parc de calculateurs MITRA 225 qui supportent les CTI doit être changé. Le calculateur Alcatel OMC83 2G est choisi. 
  • - En 1996, l'ensemble du parc des calculateurs MITRA 225 des CTI est donc remplacé par des calculateurs OMC83 2G. (Organe de Maintenance Centralisé, dérivé du standard X83, de 2ème Génération)

_____

Des dérouleurs à bandes magnétiques sont utilisés aussi bien dans un E10N1 que dans son CTI de rattachement afin d'effectuer des sauvegardes externes de sécurité (telles que des données de taxation), ou à l'inverse afin d'importer des données de programmation logicielles dans le Commutateur ou dans le CTI.

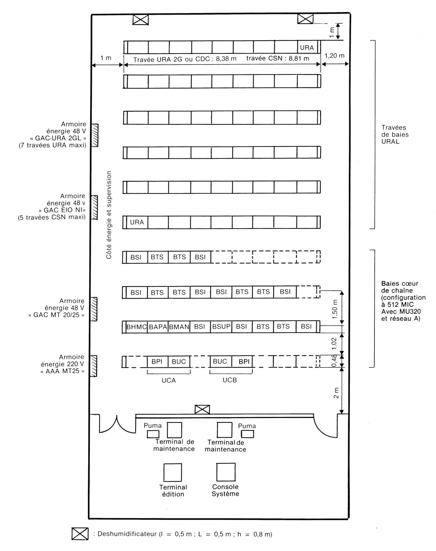
ImplantationTypeE10N1

Ci-dessus : croquis d'implantation type d'un Commutateur E10N1.

_____

E10N1deBrest1980

Ci-dessus : vue du Commutateur E10N1 prototype BREST-CENTRE 3 (QU67), alors en expérimentation courant 1980.

  • mis en service le 16 juin 1981 - hors service le 19 mars 2002.
  • à gauche : 2 baies du Réseau de ConneXion CX1 & CX2,
  • à droite : 2 baies de Traducteurs TR1 et TR2 et 1 baie de Dérouleur de Bandes Magnétiques.

Photographie PTT - 1980 - in Revue T.

_____

1981.11.04E10N1BrestCentre3Num510122

Ci-dessus : vue de face du Commutateur E10N1 prototype BREST-CENTRE 3 (QU67).

Photographie PTT - 11 avril 1981 - Coll. Orange DANP.

_____

1981.11.04E10N1BrestCentre3Num510120

Ci-dessus : vue gauche du Commutateur E10N1 prototype BREST-CENTRE 3 (QU67).

Photographie PTT - 11 avril 1981 - Coll. Orange DANP.

_____

1981.11.04E10N1BrestCentre3Num510123

Ci-dessus : vue droite du Commutateur E10N1 prototype BREST-CENTRE 3 (QU67).

Photographie PTT - 11 avril 1981 - Coll. Orange DANP.

_____

1982.03.09E10N1BrestCentre3Num510603

Ci-dessus : Vue de face du Commutateur E10N1 prototype BREST-CENTRE 3 (QU67).

  • à gauche : 1 baie Organe de Contrôle (OC),
  • au centre : 2 baies de MarQueurs (MQ 02),
  • à droite : 2 baies du Réseau de ConneXion (CX).

Photographie PTT - 9 mars 1982 - Coll. Orange DANP.

_____

1982.03.09E10N1BrestCentre3Num510608

Ci-dessus : vue du Commutateur E10N1 prototype BREST-CENTRE 3 (QU67).

  • à gauche : vue de la baie de la Base de Temps BT servant de référence pour le cadencement du Commutateur.
  • au centre : vue des deux baies hébergeant chacune 1 Traducteur TR.
  • à droite, vue du dérouleur de bandes magnétiques DSF (Dispositif de Sauvegarde des Fichiers).
  • mis en service le 16 juin 1981 - hors service le 19 mars 2002 - fabricant : CIT-Alcatel.

Photographie PTT - 9 mars 1982 - Coll. Orange DANP.

_____

1981.11.04E10N1BrestCentre3CTINum510126

Ci-dessus : vue du Centre de traitement des Informations (CTI) Mitra 125 associé au Commutateur E10N1 prototype BREST-CENTRE 3 (QU67).

  • à noter la présence massive de 4 Dérouleurs de Bande Magnétique (DBM) équipant ce CTI.

Photographie PTT - 11 avril 1981 - Coll. Orange DANP.

_____

E10N1VueGenerale

Ci-dessus : Vue d'ensemble du Commutateur E10N1 captif de PARIS-CÉVENNES (AU04) destiné à l'apprentissage - fabricant : CIT-Alcatel. 

  • À gauche : l'ordinateur MITRA 125 du Centre de Traitement des Informations avec ses dérouleurs bandes magnétiques (CTI).
  • Au centre : le petit bureau avec console Relation Home-Machine avec son imprimante.
  • À droite : la "lessiveuse" SEMS UD50, qui est l'énorme disque dur du CTI de par ses dimensions ; d'une capacité de 50 mégaoctets.
  • Au fond : le Commutateur E10N1 proprement dit. (bâtis gris métallisés)

Photographie PTT - 23 avril 1985 - Coll. C. R-V.

_____

CommutateurE10N1

Ci-dessus : vue d'ensemble d'un Commutateur E10N1.

Photographie PTT - circa 1985 - Coll. C. R-V.

_____

1994GivorsE10N1

Ci-dessus : vue d'une travée du Commutateur E10N1 de GIVORS (LZ24).

  • Mis en service en Mai 1982 - Hors service le 27 mai 2002 - Fabricant : CIT Alcatel.

Photographie FT - 1994 - Coll. C. R-V.

_____

1983.12.21MiseEnserviceRaspail2ET1E10N1

Ci-dessus : mise en service à Paris (et inauguration simultanée) du Commutateur E10N1 - RASPAIL 2 ET1 (AD72) le 21 décembre 1983.

Photographie PTT - 21 décembre 1983 - Coll. C. R-V.

_____

1984.07.30SaintOuenlAumoneE10N1n01

Ci-dessus : un Ingénieur de la CIT-Alcatel qui donne des cours de commutation E10N1 à des commutants du monde entier, qui venaient en France (Cas d'un technicien jordanien)

  • Dans les locaux du Commutateur E10N1 - SAINT-OUEN-l'AUMÔNE A4 (NF24) - mis en service le 15 décembre 1982 - hors service le 5 mai 1999 - fabricant : CIT-Alcatel. 

Photographie PTT - 30 juillet 1984 - Coll. C. R-V.

_____

  • 2021.10.22FontainebleauA2E10N1aRef143218-21
  • 2021.10.22FontainebleauA2E10N1bRef143218-22
  • 2021.10.22FontainebleauA2E10N1cRef143218-23
  • 2021.10.22FontainebleauA2E10N1dRef143218-24
  • 2021.10.22FontainebleauA2E10N1eRef143218-29
  • 2021.10.22FontainebleauA2E10N1fRef143218-30
  • 2021.10.22FontainebleauA2E10N1gRef143218-01
  • 2021.10.22FontainebleauA2E10N1hRef143218-02
  • 2021.10.22FontainebleauA2E10N1iRef143218-03
  • 2021.10.22FontainebleauA2E10N1jRef143218-04
  • 2021.10.22FontainebleauA2E10N1kRef143218-05
  • 2021.10.22FontainebleauA2E10N1lRef143218-06
  • 2021.10.22FontainebleauA2E10N1mRef143218-26
  • 2021.10.22FontainebleauA2E10N1nRef143218-28

Ci-dessus : vue d'ensemble du Commutateur temporel E10N1 - FONTAINEBLEAU A2 (ED42) avec ses bâtis peints en gris.

  • Mis en Service le 1er juin 1982 - Hors Service le 22 juillet 1998 - Fabricant : CIT-Alcatel.
  • Une machine dans un bon environnement sain, qu'il a bien fallu immortaliser elle aussi...

Photographies C. R-V. - 22 octobre 2021 - Coll. C. R-V/Orange DANP

_____

  • 2022.05.16CoulommiersA3E10N1Ref144737-01
  • 2022.05.16CoulommiersA3E10N1Ref144737-02
  • 2022.05.16CoulommiersA3E10N1Ref144737-03
  • 2022.05.16CoulommiersA3E10N1Ref144737-04
  • 2022.05.16CoulommiersA3E10N1Ref144737-05
  • 2022.05.16CoulommiersA3E10N1Ref144737-06
  • 2022.05.16CoulommiersA3E10N1Ref144737-07
  • 2022.05.16CoulommiersA3E10N1Ref144737-08
  • 2022.05.16CoulommiersA3E10N1Ref144737-09
  • 2022.05.16CoulommiersA3E10N1Ref144737-10

Ci-dessus : vue d'ensemble du Commutateur temporel E10N1 - COULOMMIERS A3 (ED23) avec ses bâtis peints en gris (et son bâti d'extension en rouge).

  • Mis en Service le 10 juillet 1984 - Hors Service le 10 septembre 1997 - Fabricant : CIT-Alcatel.
  • Nouvelle série de clichés refaits, la salle ayant été entre-temps très bien nettoyée et libérée de ses milliers de mouches venues mourir en masse ici-même sur le sol, sans en connaître la raison...

Photographies C. R-V. - 16 mai 2022 - Coll. C. R-V/Orange DANP

_____

  • 2022.05.16ProvinsA2E10N1Ref144730-01
  • 2022.05.16ProvinsA2E10N1Ref144730-02
  • 2022.05.16ProvinsA2E10N1Ref144730-03
  • 2022.05.16ProvinsA2E10N1Ref144730-04
  • 2022.05.16ProvinsA2E10N1Ref144730-05
  • 2022.05.16ProvinsA2E10N1Ref144730-06
  • 2022.05.16ProvinsA2E10N1Ref144730-07
  • 2022.05.16ProvinsA2E10N1Ref144730-08
  • 2022.05.16ProvinsA2E10N1Ref144730-09
  • 2022.05.16ProvinsA2E10N1Ref144730-10
  • 2022.05.16ProvinsA2E10N1Ref144730-11
  • 2022.05.16ProvinsA2E10N1Ref144730-12
  • 2022.05.16ProvinsA2E10N1Ref144730-13
  • 2022.05.16ProvinsA2E10N1Ref144730-14
  • 2022.05.16ProvinsA2E10N1Ref144730-15
  • 2022.05.16ProvinsA2E10N1Ref144730-16

Ci-dessus : vue d'ensemble du Commutateur temporel E10N1 - PROVINS A2 (EF42) avec ses bâtis peints en gris (et son bâti d'extension en rouge).

  • Mis en Service le 30 mars 1983 - Hors Service le 25 mars 1999 - Fabricant : CIT-Alcatel.
  • Dans une température de fournaise, nous faisons comme s'il faisait froid...

Photographies C. R-V. - 16 mai 2022 - Coll. C. R-V/Orange DANP

_____

  • 2022.07.19Carpentras3BrsE10N1Ref145426-01
  • 2022.07.19Carpentras3BrsE10N1Ref145426-02
  • 2022.07.19Carpentras3BrsE10N1Ref145426-03
  • 2022.07.19Carpentras3BrsE10N1Ref145426-04
  • 2022.07.19Carpentras3BrsE10N1Ref145426-05
  • 2022.07.19Carpentras3BrsE10N1Ref145426-06
  • 2022.07.19Carpentras3BrsE10N1Ref145426-07
  • 2022.07.19Carpentras3BrsE10N1Ref145426-08
  • 2022.07.19Carpentras3BrsE10N1Ref145426-09
  • 2022.07.19Carpentras3BrsE10N1Ref145426-10
  • 2022.07.19Carpentras3BrsE10N1Ref145426-11
  • 2022.07.19Carpentras3BrsE10N1Ref145426-12
  • 2022.07.19Carpentras3BrsE10N1Ref145426-13
  • 2022.07.19Carpentras3BrsE10N1Ref145426-14
  • 2022.07.19Carpentras3BrsE10N1Ref145426-15
  • 2022.07.19Carpentras3BrsE10N1Ref145426-16

Ci-dessus : vue d'ensemble du Commutateur temporel E10N1 - CARPENTRAS 3 BOURSEUL (PA35) avec ses bâtis peints en gris.

  • Mis en Service en Février 1983 - Hors Service le 25 janvier 1999 - Fabricant : CIT-Alcatel.
  • Une machine semblant totalement oubliée, dans une chaleur étouffante, et une absence totale de nettoyage. Mais vu la rareté du produit, il ne faut pas se montrer difficile.

Photographies C. R-V. - 19 juillet 2022 - Coll. C. R-V/Orange DANP

_____

  • 2022.07.25DigneSaintVeran1E10N1Ref145488-01
  • 2022.07.25DigneSaintVeran1E10N1Ref145488-02
  • 2022.07.25DigneSaintVeran1E10N1Ref145488-03
  • 2022.07.25DigneSaintVeran1E10N1Ref145488-04
  • 2022.07.25DigneSaintVeran1E10N1Ref145488-05
  • 2022.07.25DigneSaintVeran1E10N1Ref145488-06
  • 2022.07.25DigneSaintVeran1E10N1Ref145488-07
  • 2022.07.25DigneSaintVeran1E10N1Ref145488-08
  • 2022.07.25DigneSaintVeran1E10N1Ref145488-09
  • 2022.07.25DigneSaintVeran1E10N1Ref145488-10
  • 2022.07.25DigneSaintVeran1E10N1Ref145488-11
  • 2022.07.25DigneSaintVeran1E10N1Ref145488-12
  • 2022.07.25DigneSaintVeran1E10N1Ref145488-13
  • 2022.07.25DigneSaintVeran1E10N1Ref145488-14
  • 2022.07.25DigneSaintVeran1E10N1Ref145488-15
  • 2022.07.25DigneSaintVeran1E10N1Ref145488-16
  • 2022.07.25DigneSaintVeran1E10N1Ref145488-17
  • 2022.07.25DigneSaintVeran1E10N1Ref145488-18
  • 2022.07.25DigneSaintVeran1E10N1Ref145488-19
  • 2022.07.25DigneSaintVeran1E10N1Ref145488-20
  • 2022.07.25DigneSaintVeran1E10N1Ref145488-21
  • 2022.07.25DigneSaintVeran1E10N1Ref145488-22

Ci-dessus : vue d'ensemble du Commutateur temporel E10N1 - DIGNE SAINT-VÉRAN 1 (PA51) avec ses bâtis peints en gris (et son bâti d'extension en rouge).

  • Mis en Service le 14 décembre 1983 - Hors Service le 18 juin 2001 - Fabricant : CIT-Alcatel.
  • Une très belle machine, et de surcroît maintenue propre, dans un centre téléphonique bien tenu.

Photographies C. R-V. - 25 juillet 2022 - Coll. C. R-V/Orange DANP

_____

  • 2022.08.02Bagnols4E10N1Ref145595-01
  • 2022.08.02Bagnols4E10N1Ref145595-02
  • 2022.08.02Bagnols4E10N1Ref145595-03
  • 2022.08.02Bagnols4E10N1Ref145595-04
  • 2022.08.02Bagnols4E10N1Ref145595-05
  • 2022.08.02Bagnols4E10N1Ref145595-07
  • 2022.08.02Bagnols4E10N1Ref145595-09
  • 2022.08.02Bagnols4E10N1Ref145595-10
  • 2022.08.02Bagnols4E10N1Ref145595-11
  • 2022.08.02Bagnols4E10N1Ref145595-12
  • 2022.08.02Bagnols4E10N1Ref145595-13
  • 2022.08.02Bagnols4E10N1Ref145595-14
  • 2022.08.02Bagnols4E10N1Ref145595-15
  • 2022.08.02Bagnols4E10N1Ref145595-16
  • 2022.08.02Bagnols4E10N1Ref145595-17
  • 2022.08.02Bagnols4E10N1Ref145595-18

Ci-dessus : vue d'ensemble du Commutateur temporel E10N1 - BAGNOLS-SUR-CÈZE 4 (NM52) avec ses bâtis peints en rouge, de 2ème génération.

  • Mis en Service le 12 décembre 1989 - Hors Service le 2 avril 2001 - Fabricant : CIT-Alcatel.
  • Machine assez dégradée, mais vu la rareté du produit, nous l'avons tout de même immortalisée au mieux des circonstances.

Photographies C. R-V. - 2 août 2022 - Coll. C. R-V/Orange DANP

_____

  • 2022.08.22OrangeLaBrunetteE10N1Ref145867-01
  • 2022.08.22OrangeLaBrunetteE10N1Ref145867-02
  • 2022.08.22OrangeLaBrunetteE10N1Ref145867-03
  • 2022.08.22OrangeLaBrunetteE10N1Ref145867-04
  • 2022.08.22OrangeLaBrunetteE10N1Ref145867-05
  • 2022.08.22OrangeLaBrunetteE10N1Ref145867-06
  • 2022.08.22OrangeLaBrunetteE10N1Ref145867-07
  • 2022.08.22OrangeLaBrunetteE10N1Ref145867-08
  • 2022.08.22OrangeLaBrunetteE10N1Ref145867-09
  • 2022.08.22OrangeLaBrunetteE10N1Ref145867-10
  • 2022.08.22OrangeLaBrunetteE10N1Ref145867-11
  • 2022.08.22OrangeLaBrunetteE10N1Ref145867-12

Ci-dessus : vue d'ensemble du Commutateur temporel E10N1 - ORANGE LA-BRUNETTE (PA45) avec ses bâtis peints en gris, de 1ere génération et d'une extension en rouge de 2ème génération.

  • Mis en Service le 5 décembre 1984 - Hors Service le 26 juin 2002 - Fabricant : CIT-Alcatel
  • La quasi-totalité du Centre Téléphonique étant vendue, la Machine, immortalisée par nos soins, est promise à la démolition d'ici fin 2022.

Photographies C. R-V. - 22 août 2022 - Coll. C. R-V/Orange DANP

_____

  • 2022.09.07GrasseSteMarg3E10N1Ref146238-01
  • 2022.09.07GrasseSteMarg3E10N1Ref146238-02
  • 2022.09.07GrasseSteMarg3E10N1Ref146238-03
  • 2022.09.07GrasseSteMarg3E10N1Ref146238-04
  • 2022.09.07GrasseSteMarg3E10N1Ref146238-05
  • 2022.09.07GrasseSteMarg3E10N1Ref146238-06
  • 2022.09.07GrasseSteMarg3E10N1Ref146238-07
  • 2022.09.07GrasseSteMarg3E10N1Ref146238-08
  • 2022.09.07GrasseSteMarg3E10N1Ref146238-09
  • 2022.09.07GrasseSteMarg3E10N1Ref146238-11
  • 2022.09.07GrasseSteMarg3E10N1Ref146238-12
  • 2022.09.07GrasseSteMarg3E10N1Ref146238-13
  • 2022.09.07GrasseSteMarg3E10N1Ref146238-14
  • 2022.09.07GrasseSteMarg3E10N1Ref146238-15

Ci-dessus : vue d'ensemble du Commutateur temporel E10N1 - GRASSE SAINTE-MARGUERITE 3 (NC15) avec ses bâtis peints en gris, de 1ere génération et d'une extension en rouge de 2ème génération.

  • Mis en Service le 18 avril 1983 - Hors Service le 29 janvier 2001 - Fabricant : CIT-Alcatel
  • Machine demeurée en très bel état, toujours réfrigérée, dans une salle propre. De plus une rencontre avec des sous-traitants de chez VINCI Energies très sympathiques qui œuvrent dans les centres de la PACA.

Photographies C. R-V. - 7 septembre 2022 - Coll. C. R-V/Orange DANP

_____

  • 2022.09.14Gap2E10N1Ref146342-01
  • 2022.09.14Gap2E10N1Ref146342-02
  • 2022.09.14Gap2E10N1Ref146342-03
  • 2022.09.14Gap2E10N1Ref146342-04
  • 2022.09.14Gap2E10N1Ref146342-05
  • 2022.09.14Gap2E10N1Ref146342-06
  • 2022.09.14Gap2E10N1Ref146342-07
  • 2022.09.14Gap2E10N1Ref146342-08
  • 2022.09.14Gap2E10N1Ref146342-09
  • 2022.09.14Gap2E10N1Ref146342-10
  • 2022.09.14Gap2E10N1Ref146342-11
  • 2022.09.14Gap2E10N1Ref146342-12
  • 2022.09.14Gap2E10N1Ref146342-13
  • 2022.09.14Gap2E10N1Ref146342-14

Ci-dessus : vue d'ensemble du Commutateur temporel E10N1 - GAP 2 JAURÈS (AV06) avec ses bâtis peints en rouge, de 2ème génération (et de quelques CSE peints en gris de 1ère génération probablement raccordés initialement en URAD sur le Commutateur E10N1 - GAP 1 LADOUCETTE (PA63) entre Juin 1982 et Juillet 1990. )

  • Mis en Service en Juillet 1990 - Hors Service le 13 novembre 2000 - Fabricant : CIT-Alcatel

Photographies C. R-V. - 14 septembre 2022 - Coll. C. R-V/Orange DANP

_____

  • 2023.02.23Defense3ET1E10N1Ref147699-01
  • 2023.02.23Defense3ET1E10N1Ref147699-02
  • 2023.02.23Defense3ET1E10N1Ref147699-03
  • 2023.02.23Defense3ET1E10N1Ref147699-04
  • 2023.02.23Defense3ET1E10N1Ref147699-05
  • 2023.02.23Defense3ET1E10N1Ref147699-06
  • 2023.02.23Defense3ET1E10N1Ref147699-07
  • 2023.02.23Defense3ET1E10N1Ref147699-08

Ci-dessus : vue d'ensemble du Commutateur temporel E10N1 - DÉFENSE 3 ET1 (CB53).

  • Mis en Service en 23 juin 1987 - Hors Service le 16 décembre 1998 - Fabricant : CIT-Alcatel

Photographies C. R-V. - 23 février 2023 - Coll. C. R-V/Orange DANP

_____

  • 2023.02.23Defense4ET2E10N1Ref147700-01
  • 2023.02.23Defense4ET2E10N1Ref147700-02
  • 2023.02.23Defense4ET2E10N1Ref147700-03
  • 2023.02.23Defense4ET2E10N1Ref147700-04
  • 2023.02.23Defense4ET2E10N1Ref147700-05
  • 2023.02.23Defense4ET2E10N1Ref147700-06
  • 2023.02.23Defense4ET2E10N1Ref147700-07
  • 2023.02.23Defense4ET2E10N1Ref147700-08

Ci-dessus : vue d'ensemble du Commutateur temporel E10N1 - DÉFENSE 4 ET2 (CB54).

  • Mis en Service en 1er octobre 1987 - Hors Service le 5 novembre 1998 - Fabricant : CIT-Alcatel

Photographies C. R-V. - 23 février 2023 - Coll. C. R-V/Orange DANP

_____

  • 2023.07.05ManosqueE10N1Ref148139-01
  • 2023.07.05ManosqueE10N1Ref148139-02
  • 2023.07.05ManosqueE10N1Ref148139-04
  • 2023.07.05ManosqueE10N1Ref148139-06
  • 2023.07.05ManosqueE10N1Ref148139-08
  • 2023.07.05ManosqueE10N1Ref148139-10
  • 2023.07.05ManosqueE10N1Ref148139-12
  • 2023.07.05ManosqueE10N1Ref148139-14
  • 2023.07.05ManosqueE10N1Ref148139-15
  • 2023.07.05ManosqueE10N1Ref148139-16
  • 2023.07.05ManosqueE10N1Ref148139-17
  • 2023.07.05ManosqueE10N1Ref148139-18

Ci-dessus : vue d'ensemble du Commutateur temporel E10N1 - MANOSQUE E10N1 (PA55) avec ses bâtis peints en gris (et son bâti d'extension en rouge).

  • Mis en Service le 12 décembre 1984 - Hors Service le 16 octobre 2000 - Fabricant : CIT-Alcatel.

Photographies C. R-V. - 5 juillet 2023 - Coll. C. R-V/Orange DANP

_____

  • 2023.07.18BrianconE10N1Ref148218-01
  • 2023.07.18BrianconE10N1Ref148218-02
  • 2023.07.18BrianconE10N1Ref148218-04
  • 2023.07.18BrianconE10N1Ref148218-06
  • 2023.07.18BrianconE10N1Ref148218-08
  • 2023.07.18BrianconE10N1Ref148218-10
  • 2023.07.18BrianconE10N1Ref148218-12
  • 2023.07.18BrianconE10N1Ref148218-14
  • 2023.07.18BrianconE10N1Ref148218-16
  • 2023.07.18BrianconE10N1Ref148218-18
  • 2023.07.18BrianconE10N1Ref148218-19
  • 2023.07.18BrianconE10N1Ref148218-22
  • 2023.07.18BrianconE10N1Ref148218-24
  • 2023.07.18BrianconE10N1Ref148218-26
  • 2023.07.18BrianconE10N1Ref148218-32
  • 2023.07.18BrianconE10N1Ref148218-38

Ci-dessus : vue d'ensemble du Commutateur temporel E10N1 - BRIANÇON E10N1 (AV03) avec ses bâtis peints en gris.

  • Mis en Service le 7 octobre 1986 - Hors Service le 13 novembre 2001 - Fabricant : CIT-Alcatel.
  • Une très belle machine, et de surcroît maintenue propre, dans un centre téléphonique bien tenu.

Photographies C. R-V. - 18 juillet 2023 - Coll. C. R-V/Orange DANP

_____

  • 2023.07.25BordeauxMeriadeck3E10N1Ref148257-01
  • 2023.07.25BordeauxMeriadeck3E10N1Ref148257-02
  • 2023.07.25BordeauxMeriadeck3E10N1Ref148257-04
  • 2023.07.25BordeauxMeriadeck3E10N1Ref148257-06
  • 2023.07.25BordeauxMeriadeck3E10N1Ref148257-08
  • 2023.07.25BordeauxMeriadeck3E10N1Ref148257-10
  • 2023.07.25BordeauxMeriadeck3E10N1Ref148257-12
  • 2023.07.25BordeauxMeriadeck3E10N1Ref148257-13
  • 2023.07.25BordeauxMeriadeck3E10N1Ref148257-14
  • 2023.07.25BordeauxMeriadeck3E10N1Ref148257-15
  • 2023.07.25BordeauxMeriadeck3E10N1Ref148257-16
  • 2023.07.25BordeauxMeriadeck3E10N1Ref148257-17
  • 2023.07.25BordeauxMeriadeck3E10N1Ref148257-29
  • 2023.07.25BordeauxMeriadeck3E10N1Ref148257-30

Ci-dessus : vue d'ensemble du Commutateur temporel E10N1 – BORDEAUX MÉRIADECK 3 (BX93) avec ses bâtis peints en gris. Les caches anti-poussière sont absents.

  • Mis en Service en Février 1982 - Hors Service le 29 janvier 2001 - Fabricant : CIT-Alcatel.

Photographies C. R-V. - 25 juillet 2023 - Coll. C. R-V/Orange DANP

_____

  • 2023.08.01VauvertE10N1Ref148441-01
  • 2023.08.01VauvertE10N1Ref148441-02
  • 2023.08.01VauvertE10N1Ref148441-04
  • 2023.08.01VauvertE10N1Ref148441-06
  • 2023.08.01VauvertE10N1Ref148441-08
  • 2023.08.01VauvertE10N1Ref148441-10
  • 2023.08.01VauvertE10N1Ref148441-12
  • 2023.08.01VauvertE10N1Ref148441-14
  • 2023.08.01VauvertE10N1Ref148441-15
  • 2023.08.01VauvertE10N1Ref148441-16
  • 2023.08.01VauvertE10N1Ref148441-17
  • 2023.08.01VauvertE10N1Ref148441-18
  • 2023.08.01VauvertE10N1Ref148441-19
  • 2023.08.01VauvertE10N1Ref148441-20

Ci-dessus : vue d'ensemble du Commutateur temporel E10N1 – VAUVERT (NM34) avec ses bâtis peints en gris (et son bâti d'extension en rouge et brun).

  • Mis en Service le 26 avril 1983 - Hors Service le 25 février 2002 - Fabricant : CIT-Alcatel.

Photographies C. R-V. – 1er août 2023 - Coll. C. R-V/Orange DANP

_____

  • 2023.08.23SaintGaudens2E10N1Ref148563-01
  • 2023.08.23SaintGaudens2E10N1Ref148563-02
  • 2023.08.23SaintGaudens2E10N1Ref148563-04
  • 2023.08.23SaintGaudens2E10N1Ref148563-06
  • 2023.08.23SaintGaudens2E10N1Ref148563-08
  • 2023.08.23SaintGaudens2E10N1Ref148563-10
  • 2023.08.23SaintGaudens2E10N1Ref148563-12
  • 2023.08.23SaintGaudens2E10N1Ref148563-14
  • 2023.08.23SaintGaudens2E10N1Ref148563-15
  • 2023.08.23SaintGaudens2E10N1Ref148563-16
  • 2023.08.23SaintGaudens2E10N1Ref148563-17
  • 2023.08.23SaintGaudens2E10N1Ref148563-18

Ci-dessus : vue d'ensemble du Commutateur temporel E10N1 – SAINT-GAUDENS 2 (TL07) avec ses bâtis peints en gris (et son bâti d'extension en rouge).

  • Mis en Service le 19 juillet 1983 - Hors Service le 18 décembre 2000 - Fabricant : CIT-Alcatel.

Photographies C. R-V. – 23 août 2023 - Coll. C. R-V/Orange DANP

_____

  • 2023.08.23SaintGirons2E10N1Ref148577-01
  • 2023.08.23SaintGirons2E10N1Ref148577-02
  • 2023.08.23SaintGirons2E10N1Ref148577-04
  • 2023.08.23SaintGirons2E10N1Ref148577-07
  • 2023.08.23SaintGirons2E10N1Ref148577-09
  • 2023.08.23SaintGirons2E10N1Ref148577-11
  • 2023.08.23SaintGirons2E10N1Ref148577-13
  • 2023.08.23SaintGirons2E10N1Ref148577-15
  • 2023.08.23SaintGirons2E10N1Ref148577-17
  • 2023.08.23SaintGirons2E10N1Ref148577-19
  • 2023.08.23SaintGirons2E10N1Ref148577-20
  • 2023.08.23SaintGirons2E10N1Ref148577-21
  • 2023.08.23SaintGirons2E10N1Ref148577-22
  • 2023.08.23SaintGirons2E10N1Ref148577-23
  • 2023.08.23SaintGirons2E10N1Ref148577-24
  • 2023.08.23SaintGirons2E10N1Ref148577-25
  • 2023.08.23SaintGirons2E10N1Ref148577-32
  • 2023.08.23SaintGirons2E10N1Ref148577-39

Ci-dessus : vue d'ensemble du Commutateur temporel E10N1 – SAINT-GIRONS 2 (TL58) avec ses bâtis peints en gris (et son bâti d'extension en rouge et brun).

  • Mis en Service le 6 octobre 1987 - Hors Service le 12 février 2001 - Fabricant : CIT-Alcatel.

Photographies C. R-V. – 23 août 2023 - Coll. C. R-V/Orange DANP

_____

  • 2023.08.23Pamiers2E10N1Ref148597-01
  • 2023.08.23Pamiers2E10N1Ref148597-02
  • 2023.08.23Pamiers2E10N1Ref148597-04
  • 2023.08.23Pamiers2E10N1Ref148597-06
  • 2023.08.23Pamiers2E10N1Ref148597-08
  • 2023.08.23Pamiers2E10N1Ref148597-10
  • 2023.08.23Pamiers2E10N1Ref148597-12
  • 2023.08.23Pamiers2E10N1Ref148597-14
  • 2023.08.23Pamiers2E10N1Ref148597-18
  • 2023.08.23Pamiers2E10N1Ref148597-20
  • 2023.08.23Pamiers2E10N1Ref148597-22
  • 2023.08.23Pamiers2E10N1Ref148597-24
  • 2023.08.23Pamiers2E10N1Ref148597-25
  • 2023.08.23Pamiers2E10N1Ref148597-26
  • 2023.08.23Pamiers2E10N1Ref148597-27
  • 2023.08.23Pamiers2E10N1Ref148597-28
  • 2023.08.23Pamiers2E10N1Ref148597-29
  • 2023.08.23Pamiers2E10N1Ref148597-35
  • 2023.08.23Pamiers2E10N1Ref148597-36
  • 2023.08.23Pamiers2E10N1Ref148597-44

Ci-dessus : vue d'ensemble du Commutateur temporel E10N1 – PAMIERS 2 (TL51) avec ses bâtis peints en gris (et son bâti d'extension en rouge).

  • Mis en Service en Février 1982 - Hors Service le 2 juillet 2002 - Fabricant : CIT-Alcatel.
  • Une plongée en 1982 dans ce centre. Ça fait du bien.

Photographies C. R-V. – 23 août 2023 - Coll. C. R-V/Orange DANP

_____

  • 2023.09.24AjaccioHDP2E10N1DSC04609
  • 2023.09.24AjaccioHDP2E10N1DSC04625
  • 2023.09.24AjaccioHDP2E10N1DSC04732
  • 2023.09.24AjaccioHDP2E10N1DSC04789
  • 2023.09.24AjaccioHDP2E10N1DSC04843
  • 2023.09.24AjaccioHDP2E10N1DSC04879
  • 2023.09.24AjaccioHDP2E10N1DSC04894
  • 2023.09.24AjaccioHDP2E10N1DSC04911
  • 2023.09.24AjaccioHDP2E10N1DSC04926
  • 2023.09.24AjaccioHDP2E10N1DSC04981
  • 2023.09.24AjaccioHDP2E10N1DSC05002
  • 2023.09.24AjaccioHDP2E10N1DSC05493

Ci-dessus : vue d'ensemble du Commutateur temporel E10N1 – AJACCIO HÔTEL-DES-POSTES (CO22) avec ses bâtis peints en gris.

  • Mis en Service en le 17 décembre 1987 - Hors Service le 3 avril 2002 - Fabricant : CIT-Alcatel.
  • On notera la présence du Dérouleur de Bande Magnétique (DBM) intact, et chargé d'une bande.

Photographies C. R-V. – 24 septembre 2023 - Coll. C. R-V/Orange DANP

_____

  • 2023.09.25AjaSal2E10N1DSC06120
  • 2023.09.25AjaSal2E10N1DSC06126
  • 2023.09.25AjaSal2E10N1DSC06182
  • 2023.09.25AjaSal2E10N1DSC06235
  • 2023.09.25AjaSal2E10N1DSC06286
  • 2023.09.25AjaSal2E10N1DSC06310
  • 2023.09.25AjaSal2E10N1DSC06388
  • 2023.09.25AjaSal2E10N1DSC06406
  • 2023.09.25AjaSal2E10N1DSC07026
  • 2023.09.25AjaSal2E10N1DSC07096
  • 2023.09.25AjaSal2E10N1DSC07946
  • 2023.09.25AjaSal2E10N1DSC07955
  • 2023.09.25AjaSal2E10N1DSC07967
  • 2023.09.25AjaSal2E10N1DSC07975

Ci-dessus : vue d'ensemble du Commutateur temporel E10N1 – AJACCIO LES SALINES 2 (CO07).

  • Mis en Service en le 18 mai 1982 - Hors Service le 27 mai 2002 - Fabricant : CIT-Alcatel.
  • On notera la présence du Dérouleur de Bande Magnétique (DBM) intact.

Photographies C. R-V. – 25 septembre 2023 - Coll. C. R-V/Orange DANP

_____

1985.01InaugE10N1PrivasDondoux000

  • 1985.01InaugE10N1PrivasDondoux001
  • 1985.01InaugE10N1PrivasDondoux002
  • 1985.01InaugE10N1PrivasDondoux003
  • 1985.01InaugE10N1PrivasDondoux004
  • 1985.01InaugE10N1PrivasDondoux005
  • 1985.01InaugE10N1PrivasDondoux006
  • 1985.01InaugE10N1PrivasDondoux007bis
  • 1985.01InaugE10N1PrivasDondoux008
  • 1985.01InaugE10N1PrivasDondoux009
  • 1985.01InaugE10N1PrivasDondoux010
  • 1985.01InaugE10N1PrivasDondoux011
  • 1985.01InaugE10N1PrivasDondoux012
  • 1985.01InaugE10N1PrivasDondoux013
  • 1985.01InaugE10N1PrivasDondoux014
  • 1985.01InaugE10N1PrivasDondoux016
  • 1985.01InaugE10N1PrivasDondoux017

Ci-dessus : inauguration, en grande pompe à Privas (07), du Commutateur E10N1 - PRIVAS E10B (LY523/VL41) en présence de M. le Directeur Général des Télécommunications - Jacques Dondoux.

  • Mis en service en Novembre 1984 - Hors service le 19 septembre 2001 - Fabricant : CIT-Alcatel.
  • M. le Directeur Général des Télécommunications - Jacques Dondoux, ardéchois, essaye d'être le plus souvent présent dans sa région d'origine lors des inaugurations, alors soucieux de son désenclavement.
  • sont notamment présents : M. le Maire de Privas - Amédée Imbert, M. le Directeur Opérationnel des Télécommunications de Valence - Marc Chambault, M. le Directeur Régional des Télécommunications de Lyon - Jean-François Arrivet et la personnalité locale (à identifier) qui coupe le ruban tricolore.

Photographies PTT - Janvier 1985 - Coll. Orange DANP

_____

1987.10.22StBrieucRes4E10N1

Ci-dessus : vue d'ensemble du Commutateur temporel E10N1 "tardif " de 1987 - SAINT-BRIEUC RÉSISTANCE 4(CN54) avec ses bâtis peints en rouge (portes amovibles de protection retirées).

  •  Mis en Service le 4 décembre 1987 - Hors Service le 24 mai 2000 - Fabricant : CIT-Alcatel. 
  • Il s'agit de ce Commutateur par qui les premières conversations en norme RNIS seront passées à partir du 21 décembre 1987.

Photographie  PTT - 22 octobre 1987 - Coll. C. R-V.

_____

  • 1987.10.22StBrieucRes4E10N1n518612
  • 1987.10.22StBrieucRes4E10N1n518610
  • 1987.10.22StBrieucRes4E10N1n518618
  • 1987.10.22StBrieucRes4E10N1n518616
  • 1987.10.22StBrieucRes4E10N1n518619
  • 1987.10.22StBrieucRes4E10N1n518624

Ci-dessus : Commutateur temporel E10N1 "tardif " de 1987 - SAINT-BRIEUC RÉSISTANCE 4 (CN54) avec ses bâtis peints en rouge.

  • Mis en Service le 4 décembre 1987 - Hors Service le 24 mai 2000 - Fabricant : CIT-Alcatel.
  • Il s'agit de ce Commutateur par qui les premières conversations en norme RNIS seront passées à partir du 21 décembre 1987.
  • cliché 1 : vue d'ensemble du Commutateur, portes de protection retirées.
  • cliché 2 : vue d'ensemble du Commutateur, portes de protection fermées.
  • cliché 3 : une Baie de CSN, portes de protection retirées.
  • cliché 4 : une Baie de CSN, portes de protection fermées.
  • cliché 5 : la Baie Unité de Traitement de signalisation sur voie Commune (UTC), qui est l'organe spécialisé pour traiter la signalisation CCITT n°7, une des deux conditions strictement nécessaire pour la norme RNIS.
  • cliché 6 : le Bâti de Surveillance du Commutateur, avec poste informatique connecté.

Photographies PTT - 22 octobre 1987 - Coll. C. R-V.

_____

CroquisMitra225

1987.06.11Mitra225SaumurRef010076Num1712

Ci-dessus : vue d'ensemble du Centre de Traitement des Informations de Saumur, équipé d'un ordinateur MITRA 225 (première époque), gérant plusieurs Commutateurs E10N1 des environs de cette ville.

Photographie PTT - 11 juin 1987 - Coll. Orange DANP

_____

1989.08.24CentreOMC83

Ci-dessus : vue d'ensemble d'un Centre de Traitement des Informations (seconde époque - époque moderne) de type OMC83, gérant plusieurs Commutateurs E10N1. 

Photographie PTT - 24 août 1989 - Coll. C. R-V.

______

E10N1aVueGenerale

Ci-dessus : vue générale d'un Commutateur E10N1, à Puteaux. (Photographie : © C. Rizzo-Vignaud. PUTEAUX 6 ET4 (CC86)).

Nota : Puteaux 6 ET4 (CC86) est le 1er Commutateur d'Île-de-France et le 2ème de France à desservir des abonnés Numéris. Mis en service le 4 mai 1988 - hors service le 9 décembre 1999 - fabricant : CIT-Alcatel.

_____

E10N1bVueMultienregistreurs

Ci-dessus : vue détaillée des Multienregistreurs MR 30 du Commutateur E10N1 de Puteaux. (Photographie : © C. Rizzo-Vignaud. PUTEAUX 6 ET4 (CC86)).

_____

E10N1cVueTaxeurs

Ci-dessus : vue détaillée des Taxeurs TX 30 du Commutateur E10N1 de Puteaux.  (Photographie : © C. Rizzo-Vignaud. PUTEAUX 6 ET4 (CC86)).

_____

E10N1dVuePartielleReseauDeConnexionRCX

Ci-dessus : vue partielle du Réseau de Connexion CX 30 du Commutateur E10N1 de Puteaux. (Photographie : © C. Rizzo-Vignaud. PUTEAUX 6 ET4 (CC86)).

_____

E10N1eVueTraducteurEtDerouleurBandes

Ci-dessus : vue détaillée d'un Traducteur TR 30 et du Dérouleur de Bandes Magnétiques (Dispositif de Sauvegarde des Fichiers - DSF) du Commutateur E10N1 de Puteaux.

(Photographie : © C. Rizzo-Vignaud. PUTEAUX 6 ET4 (CC86)).

_____

E10N1fCoffreFortBandesMagnetiques

Ci-dessus : vue du Coffre-Fort de réserve des Bandes Magnétiques de secours, servant notamment à faire redémarrer le Commutateur E10N1 - PUTEAUX 6 ET4 (CC86) en cas d'avarie logicielle massive et complète.

(Photographie C. R-V.)

_____

E10N1gVueDeCSE

Ci-dessus : vue partielle de Concentrateur Spatial Électronique CSE 31 du Commutateur E10N1 de Puteaux, où sont reliés les abonnés au téléphone.

(Photographie : © C. Rizzo-Vignaud. PUTEAUX 6 ET4 (CC86)).

_____

E10N1hVueArrierePrecablageWrappes

Ci-dessus : vue arrière précâblée par wire-wrapping, très caractéristique des E10N1, technique utilisée dans les parties nobles des Commutateurs E10N1 (MR, MQ, TX, TR), tel celui de Puteaux. (Photographie : © C. Rizzo-Vignaud. PUTEAUX 6 ET4 (CC86)).

_____

E10N1iVueArriereDeCSE

Ci-dessus : vue arrière de Concentrateurs Spatiaux Électroniques CSE 31, les cartes étant liées par un système de connecteurs caractéristique des Commutateurs E10N1, tel celui de Puteaux.

(Photographie : © C. Rizzo-Vignaud. PUTEAUX 6 ET4 (CC86)).

_____

E10N1jVueArriereConnecteurs

Ci-dessus : autre vue arrière de connecteurs caractéristique des Commutateurs E10N1, tel celui de Puteaux. (Photographie : © C. Rizzo-Vignaud. PUTEAUX 6 ET4 (CC86)).

_____

Pupitre Général de Visualisation (PGV), chargé de visualiser le fonctionnement normal ou en alarme des Unité de Raccordements d'Abonnés qu'elles soient locales ou distantes.

Il est formé : 

  • - d'un panneau vertical composé de 240 positions lumineuses tricolores,
  • - d'un bloc de logique électronique articulé autour d'un microprocesseur 8085,
  • - d'un bloc de boutons de commandes situé à droite sur la partie horizontale,
  • - d'une alarme sonore incluse.

ConsolePgvE10N1

Ci-dessus : découverte dans certains Commutateurs E10N1, d'un Pupitre Général de Visualisation (PGV). © Photographie C. R-V. Cas de LE CHESNAY A2 E10N1 (WD32 )

_____

MITRA225SEMS

Ci-dessus : vue d'un calculateur Mitra 225 à l'arrêt, rescapé, redécouvert en mars 2017 dans le centre téléphonique de Beaumont-sur-Oise (site où était aussi implanté jadis un Commutateur E10N1). Très surprenant qu'il n'ait point été envoyé à la casse. © Photographie C. R-V.

_____

LessiveuseSEMS

Ci-dessus : vue en position ouverte (maintenance) d'une "Lessiveuse" SEMS modèle UD50, à l'arrêt et rescapée, du CTI de Beaumont-sur-Oise. (© Photographie C. R-V, mars 2017)

_____

Concernant les Services Confort : le système E10N1 supporte les services du Mémo Appel (Réveil), du Transfert d'Appel Local (à l'intérieur de la même Circonscription de Taxe), du Signal d'Appel et de la Conversation à 3 depuis le 1er juin 1984 ; mais les ressources matérielles disponibles ne permettent pas de pouvoir accueillir tous les candidats à la souscription de ces services.

Le Transfert d'Appel National est disponible sur la totalité du parc des Commutateurs E10N1 depuis le 1er février 1988.

_____

_____

Le système E10N1 ne pouvait fournir qu'à un maximum de 15% des abonnés lui étant raccordés le nouveau service de Présentation de l'Identité du Demandeur (PID) mis en service en France depuis le 2 septembre 1997 en France Métropolitaine et le 1er octobre 1997 dans les DOM. (Limitation qui a également accéléré la suppression de ce système pourtant très fiable)

_____

  • - 426 Commutateurs E10N1 sont installés en France, dont 35 en Île-de-France inclus 2 dans Paris intra-muros et dont les 18 en Outre-mer. (soit plus que les 416 cités dans les sources habituelles... et ce, sans comptabiliser les E10N1 provisoires en remorque utilisés çà et là en cas de panne de commutateur existant, ou dans l'attente d'une mise en service d'un nouveau commutateur à venir.)
  • - Les Commutateurs E10N1 seront les premiers à supporter en France les abonnés de type Numéris (RNIS) à partir du 21 septembre 1987 à Brest puis en Île-de-France à partir du 3 août 1988.
  • - Le système E10/128US est capable de gérer dès 1981 jusqu'à 30.000 abonnés par cœur de chaîne. Il est capable d'écouler jusqu'à 200.000 appels à l'heure, en pleine charge.
  • - Le système E10/192US est capable de gérer dès 1984 jusqu'à 45.000 abonnés par cœur de chaîne. Il est capable d'écouler jusqu'à 250.000 appels à l'heure, en pleine charge.
  • - Le système E10/256US est capable de gérer dès 1987 jusqu'à 60.000 abonnés par cœur de chaîne. Il est capable d'écouler jusqu'à 300.000 appels à l'heure, en pleine charge.
  • - Les 3 premiers Commutateurs E10N1 du monde, commandés en Décembre 1977, sont mis en service au Yémen du Nord (Sanaa, Hodeidah et Taëz) en Septembre 1980 et délivrent le service téléphonique de base, en attendant la mise au point définitive du logiciel en cours de finalisation en France, à Brest.
  • - En France, les opérations de validation du système E10N1 commencent à Brest sur le prototype, à partir du 19 janvier 1981.
  • - Ce premier Commutateur E10N1 de France (quatrième au monde), d'une capacité initiale de 12.000 abonnés, est mis en service sur le réseau public le 16 juin 1981 - 6H00 - à Brest (BREST CENTRE 3 (QU67))
  • - Le troisième pays à mettre en service son premier Commutateur en 1982 serait la République d'Irlande (Eire), dans la ville de Kells. Le 9 mai 1980, un accord de coopération technique est signé entre les PTT des deux pays. Le 19 janvier 1982, ce premier Commutateur E10N1 irlandais, installé par Alcatel, est inauguré par Messieurs les Ministres des PTT irlandais-Patrick Cooney et français-Louis Mexandeau, au cours d'une inauguration-démonstration devant le Commutateur en fonctionnement. Le système E10N1 sera massivement déployé dans les villes moyennes, les villages et la campagne irlandaise, de telle sorte qu'il pourvoira jusqu'à la moitié des lignes en service dans ce pays. Retrouvez en cliquant ici le reportage des PTT Irlandais de 1982 (archive RTÉ) avec les deux ministres des PTT !
  • - Le premier Commutateur E10N1 (à Unités de Raccordement d'Abonnés de type CSE) d'Île-de-France est mis en service le 14 janvier 1982 (ARPAJON A3 (SF02)).
  • - Le premier Commutateur E10N1 (à Unités de Raccordement d'Abonnés de type CSE) de Paris intra-muros est mis en service et inauguré le même jour par le Directeur Général des Télécommunications Jacques Dondoux le 21 décembre 1983 au centre téléphonique de Raspail (RASPAIL 2 ET1 (AD72)).
    • Nota : Paris-intra muros ne comptera seulement que deux Commutateurs E10N1 avec RASPAIL 3 ET2 (AD73) ; Paris intra-muros étant "donné" au MT25. Pour la petite histoire, la raison de cette notable exception se justifiait par la présence dans Paris intra-muros, pour le prestige, d'au moins un site abritant de l'E10N1 qui était systématiquement proposé lors des multiples visites d'Ingénieurs et de politiques français ou étrangers de passage dans la capitale.
  • -  Dans le monde, le premier Commutateur E10N1 équipé en première monte des nouvelles baies de raccordement d'abonnés de type CSN est commandé le 22 janvier 1985 puis mis en service en Chine, à Pékin, en 1986. Le nouveau réseau téléphonique temporel de Pékin constitué de 14 Commutateurs E10N1 est inauguré officiellement le 12 janvier 1987, en présence de M. l'Ingénieur Général des Télécommunications Albert Delbouys.
  • - En France, le premier Commutateur E10N1 équipé en première monte des nouvelles baies de raccordement d'abonnés de type CSN est mis en service le 7 décembre 1987 à Saumur (SAUMUR 3 (AG75)) (département 49).
  • - Le Commutateur E10N1 Centrex- AÉROPORT NORD 2 (ND02) est mis en service le 18 mai 1989 à Roissy Charles de Gaulle. Il pourvoit le service Numéris dès sa mise en service ainsi qu'une multitude de services spécialisés. cf :
  • - Le Commutateur E10N1 le plus récent d'Île-de-France est mis en service le 26 mars 1991 (CERGY A5 (NE75)).
  • - Le Commutateur E10N1 le plus récent de France est mis en service en 1991. 
  • - Les dernières extensions de Commutateurs E10N1 existants sont commandées en 1995. 
  • - Les deux premiers Commutateurs E10N1 a être mis hors service avant Mars 1990 sont : LE CHEYLARD (VL43) et TOULOUSE MIRAIL 3 (TL16).
  • - Le programme global de démontage des Commutateurs E10N1 a débuté, en France, en 1997. Il devait se conclure initialement en 2005 ; puis la décision a été prise en Janvier 2000 de procéder à un plan massif de retrait total et rapide de tous les Commutateurs E10N1, en raison du manque de ressources qui empêchait de fournir à tous les abonnés les Services Confort et qui étaient totalement incompatibles avec la présélection locale devant entrer en vigueur en France le 1er janvier 2002.
  • - Avant 2000, un chef de projet "Renouvellement E10N1" est nommé, il s'agit de M. Guy Vassal, pour hâter l'arrêt des Commutateurs E10N1. (Les 9,5 millions de lignes téléphoniques de cette dernière campagne de retrait des 340 Commutateurs E10N1 alors encore en service, sont basculées sur des Commutateurs AXE10 et E10B3, de 3ème génération.)
  • - Le premier Commutateur E10N1 d'Île-de-France et Paris est désactivé le 3 juin 1997 (RASPAIL 3 ET2 (AD73)).
  • - Le dernier Commutateur E10N1 d'Île-de-France est désactivé le 27 juin 2001 (ÉVRY A4 (SF64)).
  • - Le dernier Commutateur E10N1 de France est désactivé le 10 décembre 2002 (RIOM 2 (CF28)). 

En dehors de l'Europe, le système E10N1 est connu sous la dénomination OCB-181 (Organe de Commande type B, version 1, mis en service en 1981).



Sous-famille MT -Matrice Temporelle- (licence Thomson-CSF Telephone), mise en développement à partir de 1975 par la société LMT à l'insu de sa maison mère ITT dès 1971 ; 

  • Après signature d'un protocole d'accord signé entre Thomson et LMT le 28 avril 1976, LMT est ensuite rachetée par la société Thomson-CSF  en Juin 1976 dans le cadre de la "francisation" de l'industrie des télécommunications voulue par M. le Président de la République Valéry Giscard d'Estaing ; 
  • La première commande de l'administration pour un prototype date d'Octobre 1977 (AUBERVILLIERS 1 CTU ( AB01)).
  • Avant leur installation et mise en service, les Centres de Transit Temporel MT20 sont nommés dans les documents d'époque (vers 1979-80) GCE pour Grands Centres Électroniques (car appelés à prendre la suite des GCI électromécaniques crossbar).
  • À noter que la société LMT a commencé à étudier la commutation temporelle dès 1971, à l'insu de sa maison-mère américaine ITT, après en avoir déposé le brevet de base depuis 1945. 
  • Famille robuste mais ayant été techniquement très longue à mettre au point, notamment au niveau logiciel où toutes les difficultés seront résolues en 1984.

1983EcussonThomsonCSF

Existent les types suivants :

MT20, Temporel de seconde génération, type à grande capacité d’écoulement de trafic, commandé en Octobre 1977 par l'Administration des Télécommunications. Le système MT20 est un système de commutation à commande centralisée. Dans son architecture générale, le système MT20 est en fait le descendant direct du système MÉTACONTA 11F semi-électronique spatial, dont son Réseau de ConneXion (RCX) est devenu 100% électronique temporel.

  • Nota :
  • Les tous premiers exemplaires de Commutateurs MT20 ont fonctionné initialement avec des calculateurs centralisés LCT3202 utilisés sur les Commutateurs MÉTACONTA 11F : l'on parle alors de MT20L (La lettre L signifiant Large capacité); les calculateurs MU320 (nom complet : Mercure 320), mis en étude au début de l'année 1978, étant des dérivés améliorés parachevés ultérieurement en 1983.
  • De surcroît, le tout premier Commutateur MT20L, implanté à Aubervilliers par la société LMT, reprend l'aspect extérieur des baies des Commutateurs MÉTACONTA 11F formées de panneaux horizontaux amovibles. Les armoires métalliques avec portes articulées verticales seront étudiées et déployées un peu plus tard...
  • À lire : notice Thomson-CSF de présentation publicitaire du système MT20 (Prototype) de 1977 très-bien rédigée.

L'architecture du système temporel MT20 est bâtie sur quatre niveaux.

- Le premier niveau est constitué par une Unité de Commande Dupliquée (UCD) basée sur un ensemble de deux calculateurs fonctionnant en service normal en partage de charge (pourvue de deux processeurs de type MU320 de technologie à circuits intégrés ECL, ayant tous été remplacés entre 1990 et 1993 par le type MU321 deux fois plus puissant puis, par le type MU322 à partir de 1995, puis enfin pour certains commutateurs MT20, par des processeurs MU323 avec nouvelle amélioration de 30% des performances à partir de 2003 ).

- Le second niveau est constitué par l'Unité de SIgnalisation (USI)

  • - d'une part constituée de Signaleurs (SI) équipés de microcalculateurs MU29 (nom complet : Mercure 29) chargés d'effectuer les tâches non répétitives comme la surveillance et le test des équipements, qui sont constitués par des microprocesseurs AMD2901.
  • - d'autre part constituée des processeurs Périphériques Programmés de Signalisation (PPS) chargés d'effectuer la majeure partie des tâches simples et répétitives, entre l'Unité de Commande Dupliquée (UCD), le Réseau de ConneXion (RCX) et les liaisons connectées avec les commutateurs distants, pour assurer notamment l'échange des signaux de ligne (tonalités) et d'enregistreur servant à acheminer les appels.

- Le troisième niveau est l'Unité de ConneXion (UCX). Elle comprend notablement le Réseau de ConneXion (RCX) d'un commutateur MT20. L'Unité de ConneXion (UCX) a pour rôle de connecter, grâce à des organes dénommés Groupes Temporels (GT), deux intervalles de temps quelconques appartenant à des liaisons numériques MIC quelconques. Deux types sont possibles :

  • - soit de type purement temporel TT (un étage d'entrée temporel, un étage de sortie temporel) pour une capacité maximale de raccordement de 512 MIC. (Nota : une Unité de Commande Dupliquée (UCD) composée de calculateurs MU320 ne peut supporter qu'un Réseau de ConneXion (RCX) de 512 liaisons MIC au maximum.) Cette solution ne semble avoir été mise en œuvre en France que de manière limitée, pour cause de capacité de trafic trop réduite.
  • - soit de type Temporel-Spatial-Spatial-Temporel pour une capacité pouvant s'étendre jusqu'à 2048 MIC. (Avec calculateurs MU321, MU322 ou MU323 uniquement). Dans ce cas, pour maintenir l'accessibilité totale du réseau agrandi, le brassage de ces différents Groupes Temporels (GT) entre eux est alors assuré par l'organe supplémentaire de Sélection de Groupe (SG). Les Sélecteurs de Groupes (SG) sont en fait des matrices numériques spatiales de commutation dites "supermultiplex". Ce Réseau de ConneXion (RCX), de type temporel est formé de 4 étages : un étage d'entrée temporel, un étage de sortie temporel, mais au milieu de ces 2 étages, 2 étages spatiaux réalisés en technologie numérique. Le Réseau de Connexion TSST est une adaptation qui a été utilisée afin de pouvoir assurer à moindre frais et à moindres difficultés un brassage optimal entre les voies entrantes et sortantes.

- Le quatrième niveau équipé des cartes de circuits périphériques (les joncteurs chargés de communiquer avec les autres centres de transit).

  • - Soit les jonctions d'entrée et de sortie sont déjà sous forme numérique (ce qui est le cas actuellement) et le branchement des liaisons numériques MIC est direct,
  • - soit les jonctions d'entrée et de sortie sont analogiques (ce qui n'existe plus actuellement) auquel cas il faille passer par une Unité de Raccordement de Circuit (URC) chargée de convertir les signaux traversant le commutateur à la norme MIC. (L'on parle aussi d'Unité d'ADaptation UAD).

- Dans le cas des Commutateurs MT20 utilisés en Centres internationaux, à une époque où certaines liaisons internationales n'étaient pas encore toutes automatisées, il était adjoint une Unité de Raccordement des Opératrices (URO) permettant de connecter 30 postes d'Opératrices manuelles à chaque MT20CI.

_____

Utilisé massivement en centre de transit interurbain, notés MT20TN pour Transit National, ainsi qu'en Centre International, notés MT20CI, et à la marge en centre téléphonique pour les abonnés situés dans leur périmètre géographique voisin.

  • - 100 Commutateurs MT20 Transit National sont mis en service en France (108 si l'on compte les 6 changements de code SGTQS ainsi que les deux MT20 de Monaco, partie intégrante du réseau français jusqu'au 21 juin 1996 21H00). Le système reste encore déployé en France en 2017 en version MT20TN.
  • - 17 Commutateurs MT20 Centre International sont mis en service en France (13 pour la métropole, 4 pour les D.O.M). Aujourd'hui tous les MT20CI sont démontés.
  • - Le système MT20 est capable de gérer 15.000 circuits de transit par cœur de chaîne avec un Réseau de Connexion TT.
  • - Le système MT20 est capable de gérer 60.000 circuits de transit par cœur de chaîne avec un Réseau de Connexion TSST.
  • - Le système MT20 peut faire transiter en son sein 400.000 appels à l'heure, à pleine charge avec deux calculateurs MU320.
  • - La société LMT commence à étudier la commutation temporelle en 1971.
  • - Une maquette de Réseau de ConneXion temporel est opérationnelle en 1973.
  • - Une maquette semi-autonome reliée à l'autocommutateur Pentaconta MOLITOR 1 PC1 (CC32) (à Boulogne-Billancourt (92)) est mise en test en 1976. Les microprocesseurs y sont introduits au niveau des Signaleurs-Marqueurs avec succès.
  • - Le modèle de Calculateur MU320 est mis en étude au début de l'année 1978. Les Premiers Commutateurs MT20 mis en service (prototype et présérie) seront donc équipés de Calculateurs LCT3202 hérités du système MÉTACONTA 11F, en attendant leur remplacement.
  • - Le premier prototype MT20 complet, commandé en Octobre 1977, est mis à l'essai le 31 mars 1981. Il mis en service dans le réseau public de l'État en France à Aubervilliers en Août 1981 en tant que Centre de Transit Urbain (Commutateur MT20L équipé de deux calculateurs LCT3202). (Nota : certaines sources évoquent une mise en service expérimentale dès Février 1980 à Aubervilliers - AUBERVILLIERS CTU1 (RU01)). Ce Commutateur MT20L Prototype sera arrêté le 28 février 1986 étant donnée son instabilité en fonctionnement - ceci se produit parfois pour les prototypes.
  • - Une présérie de deux Commutateurs MT20L utilisés en tant que Centres de Transit Secondaire est commandée le 20 avril 1979. Il s'agit d'AMIENS CAMPUS (AM00) pour une capacité initiale de 1.000 erlangs et d'ANNECY LES ROMAINS (AY02) pour une capacité initiale de 1.600 erlangs.
  • - Le premier Commutateur MT20 de présérie est mis en service le 25 juin 1982, en France à AMIENS CAMPUS (AM00). Il sera inauguré le 1er juillet 1982 en présence de M. le Ministre des PTT Louis Mexandeau et de 30 autres ministres des PTT du monde entier. (Commutateur MT20L équipé de deux calculateurs LCT3202).
    • ANNECY LES ROMAINS (AY02) suivra le 18 octobre 1982 en MT20L également. 
    • À partir de cette présérie, le système MT20 est fiabilisé.
    • Suivront quelques Commutateurs MT20TN (probablement MT20L) : au moins 8. 
  • - Suit le premier Commutateur MT20TN de série, mis en service à Paris au centre téléphonique de BONNE-NOUVELLE CTU1 (RU15) le 30 août 1983, utilisé en tant que Centre de Transit Urbain (MT20 équipé de deux calculateurs MU320).
  • - Le premier Commutateur MT20CI mis en service en France est MARSEILLE SAINT-MAURONT CIA 2 (MA33)  le 26 avril 1984.
  • - Le premier Commutateur international de France utilisant le code de signalisation par canal sémaphore CCITT n°7 est le Commutateur MT20CI - BAGNOLET 4 CTI (RT16), mis en service le 4 janvier 1990 (arrêt le 12 février 2002). Voir ci-dessous la video explicative du CNET sur le Code 7 retrouvée par un passionné-blogueur : François Mocq.
  • - Les Commutateurs MT20 les plus récents de France sont mis en service en 1994/95 :
    • Concernant les MT20 CI : PARIS-BAGNOLET 5 CTI (RT17) le 2 novembre 1994.
    • Concernant les MT20TN d'Île-de-France : PLESSIS-BOUCHARD 1 CTZP (RP95) le 20 septembre 1994.
    • Concernant les MT20TN de Province : LYON-LACASSAGNE CTT5 CTS (LZ35) le 24 octobre 1994 et TOULOUSE FERRIÉ CTT4 CTS3 (TL74) le 13 oct 1995.
  • - Les dernières extensions de Commutateurs MT20 déjà existants sont mises en service en 1997.
  • - L’ultime Commutateur MT20 de Paris intra-muros est mis hors service le 5 juin 2023 ; il s'agit de PARIS MONTSOURIS CTT2 CTP ARRIVÉE (RT33).
  • - L’ultime Commutateur MT20 d'Île-de-France (hors Paris) est mis hors service le 20 avril 2023 ; il s'agit d’ÉRAGNY CTT1 CTS2 (RT81).
  • - Les deux ultimes Commutateurs MT20 de province (et de France) sont mis hors service le 8 juin 2023 ; il s'agit de BORDEAUX MÉRIADECK CTT2 CTP (BX02) et BORDEAUX MÉRIADECK CTT3 CTS2 (BX03).

_____

Concernant spécifiquement les Commutateurs MT20 utilisés en Centres Internationaux :

  • - Les Commutateurs MT20 Internationaux sont hiérarchisés en 3 niveaux croissants :
    • - Niveau (1) MT20CIA (Centre International Automatique) : raccordés uniquement avec les pays européens frontaliers avec la France, car ne disposant pas de salles de Transmissions équipées d'Annuleurs d’Écho (A.E) nécessaires à partir de 2.000 km environ de distance. Les dix Commutateurs MT20CIA sont implantés en Métropole à proximité d'une frontière, (dont quatre MT20CIA en Outre Mer).
    • - Niveau (2) MT20CTI (Centre de Transit International) : maillés avec les principaux pays du monde, car situés géographiquement sur un Point d’Interconnexion de Commutation et de Transmissions qui disposent de systèmes concentrateurs et d'Annuleurs d’Écho (A.E) sur place, au plus près des commutateurs. Ils étaient maillés avec les principaux pays du monde. Les quatre Commutateurs MT20CTI sont implantés à Paris et à Bagnolet.
    • - Niveau (3) MT20CTIP : (Centre de Transit International Principal) : maillés avec les principaux pays du monde ainsi qu'à beaucoup de petits pays avec lesquels la France n'échange que très peu de trafic téléphonique. Situés géographiquement sur un Point d’Interconnexion de Commutation et de Transmissions qui disposent de systèmes concentrateurs et d'Annuleurs d’Écho (A.E) sur place, au plus près des commutateurs. Les trois Commutateurs MT20CTIP sont implantés à Paris et Reims.
  • - L'organisation du trafic international de 3ème génération, mise en place au début des années 1980 est techniquement complexe et s'avère devenir trop couteuse à maintenir en l'état, en raison de la dérégulation des télécommunications et de la perte du monopole des télécommunications nationales et internationales survenue le 1er janvier 1998. Les réductions des coûts deviennent alors prioritaires sur la survie des Commutateurs MT20CI.
  • - En 1999, il est décidé de retirer progressivement du réseau la totalité des 17 Commutateurs MT20CI français, après la mise en service du premier Commutateur AXE Transgate 4/CTI4G. 
    • M. Christian Kling est nommé le 1er août 1999 Chef de Projet du retrait des treize Commutateurs MT20 CI de métropole.
    • M. Jean-Claude Froeliger sera chargé du retrait des quatre Commutateurs MT20CIA d'Outre Mer.
  • - Il est évident qu'à partir de l'année 2001 où le parc de Commutateurs de nouvelle génération fut entièrement déployé (AXE Transgate 4/CTI4G), les jours des Commutateurs MT20CI étaient comptés :
    • - Tous les Commutateurs MT20CI ont été désactivés entre 2001 et 2003.
    • - Le premier Commutateur MT20CI à être mis à l'arrêt le 15 janvier 2001, à 9H30 est PARIS-BAGNOLET 5 CTI (RT17).
    • - L'ultime Commutateur MT20CI de France Métropolitaine à être mis à l'arrêt le 9 décembre 2002 à 10H30 est REIMS CITP3 (HM00).
    • - L'ultime Commutateur MT20CI d'Outre-Mer à être mis à l'arrêt le 20 mai 2003 est FORT-DE-FRANCE CIA (DT59).
  • - Un total de 100.000 circuits internationaux a dû être muté pour mettre à l'arrêt les 17 MT20CI français.
  • - Les Commutateurs MT20CI ainsi démontés servirent de banque d'organes aux MT20TN encore en service et c'est ainsi qu'actuellement (2019) leur sacrifice demeure toujours utile.

_____

Concernant spécifiquement les Commutateurs MT20 utilisés en Centres de Transit National :

  • - Le système MT20TN a permis le remplacement massif des Commutateurs de Transit Électromécaniques dont les plus perfectionnés, les GCI PENTACONTA ; remplacement intervenu entre 1989 et 1994.
  • - Le retrait très progressif des Commutateurs MT20TN commence, d'après nos recherches, en 1997. Il accompagne alors la diminution progressive du trafic téléphonique fixe commuté.
  • - LILLE-BOITELLE CTU2 (LL35) est le premier Commutateur MT20TN de France à être mis hors service entre Février 1997 et Janvier 1998.
  • - Deux Commutateurs MT20TN de province (TOULOUSE CAPITOLE CTU (TL57) et LYON LALANDE CTU (LY52)) sont mis à l'arrêt en 1999, démontés, récupérés et remontés dans deux Départements d'Outre Mer afin d'être reconvertis en Centre de Transit National réservé uniquement au Réseau Intelligent MT20RI concernant l'acheminement des numéros spéciaux à taxation spéciale (Audiotel, Kiosque, etc...) dans les DOM.
    • LYON LALANDE CTU (LY52) est remis en service le 3 mai 2001 en Guadeloupe et devient BAIE-MAHAULT MT20 RI (DT26) et gère le trafic CT RI de Guadeloupe, Martinique et Guyane jusqu'à son arrêt le 7 mars 2022.
    • TOULOUSE CAPITOLE CTT2 (TL57) est remis en service le 15 octobre 2001 à La Réunion et devient SAINTE-CLOTILDE MT20 RI (DT68) et gère le trafic CT RI de La Réunion et de Mayotte jusqu'à son arrêt  le 21 mars 2022.
  • - FONTENAY CTU1 (RU90) est le premier Commutateur MT20TN d'Île-de-France à être mis hors service le 20 octobre 2003.
  • - Les années 2003, 2004 et 2005 voient une baisse du parc des Commutateurs  MT20TN avec 34 arrêts de Commutateurs en seulement 3 ans (Projet RÉSEAU 2005).
  • - Les contrats de maintenance par les fabricants des systèmes MT20TN cessent en 2008. La disponibilité des pièces de rechange de ces vénérables machines devient depuis lors fort compliquée dans la mesure où même les usines qui les fabriquaient n'existent plus. La maintenance, qui devient alors un art, est depuis lors assurée totalement en interne par France Télécom / Orange, avec succès.

_____

Ci-contre:

Signalétique typique de Commutateur MT20. (Collection C. R-V.)

MT20PlaqueSignaletique

(en l'espèce : Commutateur BONDEVILLE 1 CTU (RU71) ; prise de son face aux deux Calculateurs à 1 mètre. (c) C. R-V. le 12 juin 2017.)

_____

1979.07.10MT20AubCtu1Num007618

Ci-dessus : salle des Calculateurs centralisés LCT 3202 du Commutateur prototype MT20 - AUBERVILLIERS 1 CTU (RU01).

Photographie PTT - 10 juillet 1979 - Coll. Orange DANP

_____

1979.07.10MT20AubCtu1Num007619

Ci-dessus : salle de Connexion du Commutateur prototype MT20 - AUBERVILLIERS 1 CTU (RU01).

  • Un technicien teste le bon fonctionnement des Groupes Temporels (chargés d'accomplir le brassage des communications)

Photographie PTT - 10 juillet 1979 - Coll. Orange DANP

_____

1981MT20CTU1AubervilliersNum81419

Ci-dessus : Réseau de Connexion du Commutateur Prototype MT20 - AUBERVILLIERS 1 CTU (RU01).

  • Nota : ce prototype est construit dans du mobilier de type MÉTACONTA 11F.
  • Mis en essai en Février 1980 - Mis en service en Août 1981 - Hors service le 28 février 1986.

Photographie Thomson CSF - 1981 - Coll. Orange DANP

_____

  • 1981MT20CTU1AubervilliersNum81413
  • 1981MT20CTU1AubervilliersNum81414
  • 1981MT20CTU1AubervilliersNum81409
  • 1981MT20CTU1AubervilliersNum81415
  • 1981MT20CTU1AubervilliersNum81410
  • 1981MT20CTU1AubervilliersNum81411
  • 1981MT20CTU1AubervilliersNum81416
  • 1981MT20CTU1AubervilliersNum81417

Ci-dessus : différents organes du Commutateur Prototype MT20 - AUBERVILLIERS 1 CTU (RU01).

  • clichés 1 et 2 : une travée du Réseau de Connexion numérique.
  • cliché 3 : une baie de Transcodage numérique.
  • cliché 4 : une baie de Signalisation numérique.
  • cliché 5 : un des deux Calculateurs LCT 3202.
  • cliché 6 : à gauche la Console d'Alarmes, à droite le lecteur de documentation sur microfiches. Derrière la vitre : un des deux Calculateurs LCT 3202.
  • cliché 7 : salle d'exploitation. À gauche, un Télétype. À droite, une Console PEM (Position d'Essai Manuel).
  • cliché 8 : une Console PEM (Position d'Essai Manuel).
  • Nota : ce prototype est construit dans du mobilier de type MÉTACONTA 11F.
  • Mis en essai en Février 1980 - Mis en service en Août 1981 - Hors service le 28 février 1986.

Photographies Thomson CSF - 1981 - Coll. Orange DANP

_____

1979.03.14MT20AubCtu1DirTelecSyrieNumDrif5581

Ci-dessus : visite du Commutateur prototype MT20 - AUBERVILLIERS CTU1 (RU01) alors en expérimentation, par M. le Directeur des Télécommunications de la République Arabe Syrienne (mains croisées).

Photographie PTT - 14 mars 1979 - Coll. Orange DANP

_____

1980CommutateurProtoAubervilliersMT20

Ci-dessus : technicienne tenant une carte devant le Commutateur Prototype MT20 - AUBERVILLIERS 1 CTU (RU01).

  • Nota : ce prototype est construit dans du mobilier de type MÉTACONTA 11F.

Photographie PTT - 1980 - Coll. C. R-V.

_____

1983.02UsineThomsonNantesMT20MT25Ref132941-01

Ci-dessus : assemblage et essais des cœurs de chaîne de Commutateurs MT20 (ou MT25), équipés de calculateurs MU320, en 1982, à l'usine Thomson-CSF de Nantes (ou Laval).

Photographie Thomson-CSF - Février 1983 - Coll. Orange DANP.

______

1984CalculateurMU320MT20

Ci-dessus : vue d'un Commutateur MT20 équipé de Calculateurs MU320.

Photographie Thomson-CSF - circa 1983 - Coll. Orange DANP

_____

ImplantationTypeMT20

Ci-dessus : croquis d'implantation type d'un Commutateur MT20.

_____

1982.07.01MexandeauInaugAmiensCampusMT20L

Ci-dessus : M. le Ministre des PTT - Louis Mexandeau en pleine présentation de la Commutation Temporelle aux 30 ministres des PTT du monde entier venus pour l'inauguration du Commutateur de Transit MT20L - AMIENS CAMPUS (AM00) le 1er juillet 1982.

  • Mis en service le 25 juin 1982 - Hors service le 28 juillet 2005 - Fabricant : Thomson-CSF.

Photographie PTT - 1er juillet 1982 - Coll. C. R-V.

_____


1984.05.11InaugurationMexandeauQuimperMT20n2

Ci-dessus : le 11 mai 1984, M. le Ministre des PTT - Louis Mexandeau (collier de barbe) en visite dans la salle du Commutateur de Transit MT20 de Quimper - QUIMPER KERFEUNTEUN CTT1 CTS3 (QU00), pour son inauguration officielle, écoute les explications délivrées par M. le Chef du Centre Principal d'Exploitation - Jean-Yves Le Gall. Il est accompagné par M. le Maire de Quimper - Bernard Poignant (moustache)

  • Mis en service en Novembre 1983 - Hors service le 21 octobre 2004 - Fabricant : Thomson-CSF.

Photographie DRT Bretagne - 11 mai 1984 - Coll. C. R-V.

_____

1984.05.11InaugurationMexandeauQuimperMT20n1

Ci-dessus : le 11 mai 1984, M. le Ministre des PTT - Louis Mexandeau (collier de barbe) inaugure à la fois la nouvelle Direction Opérationnelle des Télécommunications de Quimper ainsi que le nouveau Commutateur MT20 de Quimper.

  • Mis en service en Novembre 1983 - Hors service le 21 octobre 2004 - Fabricant : Thomson-CSF.
  • à gauche, M. le Directeur Général des Télécommunications - Jacques Dondoux ; 
  • au centre, M. le Député-Maire - Louis Le Pensec ; 
  • à droite, M. le Maire de Quimper - Bernard Poignant (moustache).

Photographie DRT Bretagne - 11 mai 1984 - Coll. C. R-V.

_____

  • 1984.07.05InaugMT20PoitiersRef065226Num013B
  • 1984.07.05InaugMT20PoitiersRef065226Num019A
  • 1984.07.05InaugMT20PoitiersRef065226Num020A
  • 1984.07.05InaugMT20PoitiersRef065226Num022A

Ci-dessus : le 5 juillet 1984, M. le Ministre des PTT - Louis Mexandeau (collier de barbe) inaugure le nouveau Commutateur MT20 de Poitiers Pont-Achard.

  • MT20 - POITIERS PONT-ACHARD CTT1 - CTS (PT03) - Mis en service en Novembre 1983 - HS : 29 septembre 2022 - Fabricant : Thomson-CSF.
  • cliché 4 : M. le Directeur Général des Télécommunications - Jacques Dondoux (lunettes) en conversation avec M. le Ministre des PTT - Louis Mexandeau.

Photographies PTT - 5 juillet 1984 - Coll. Orange DANP.

_____

  • 1983MT20BonneNouvelleCtu1Num201003
  • 1983MT20BonneNouvelleCtu1Num201001
  • 1983MT20BonneNouvelleCtu1Num201002
  • 1983MT20BonneNouvelleCtu1Num201004
  • 1983MT20BonneNouvelleCtu1Num201006
  • 1983MT20BonneNouvelleCtu1Num201007

Ci-dessus : le Commutateur MT20TN BONNE-NOUVELLE CTU1 (RU15).

  • Mis en service le 30 août 1983 - Hors service le 5 novembre 2003.
  • clichés 1 et 2 : côté des 2 Calculateurs MU320 - à gauche, vue de Dérouleurs de Bandes Magnétiques (DBM).
  • clichés 3 et 4 : côté opposé aux Calculateurs MU320.
  • cliché 5 : une baie dont les portes sont ouvertes.
  • cliché 6 : détail de Dérouleurs de Bandes Magnétiques (DBM) repris du matériel utilisé dans le système 11F.

Photographies PTT - 1983 - Coll. Orange DANP

_____

  • 2021.11.08aMassyC3MT20Ref143400-01
  • 2021.11.08bMassyC3MT20Ref143400-02
  • 2021.11.08cMassyC3MT20Ref143400-03
  • 2021.11.08dMassyC3MT20Ref143400-04
  • 2021.11.08eMassyC3MT20Ref143400-05
  • 2021.11.08fMassyC3MT20Ref143400-06
  • 2021.11.08gMassyC3MT20Ref143400-07
  • 2021.11.08hMassyC3MT20Ref143400-08
  • 2021.11.08iMassyC3MT20Ref143400-10
  • 2021.11.08jMassyC3MT20Ref143400-11
  • 2021.11.08kMassyC3MT20Ref143400-22
  • 2021.11.08lMassyC3MT20Ref143399-05
  • 2021.11.08mMassyC3MT20Ref143400-12
  • 2021.11.08nMassyC3MT20Ref143400-15
  • 2021.11.08oMassyC3MT20Ref143400-14
  • 2021.11.08pMassyC3MT20Ref143400-13
  • 2021.11.08qMassyC3MT20Ref143400-23
  • 2021.11.08rMassyC3MT20Ref143400-24
  • 2021.11.08sMassyC3MT20Ref143400-25
  • 2021.11.08tMassyC3MT20Ref143400-26
  • 2021.11.08uMassyC3MT20Ref143400-34
  • 2021.11.08vMassyC3MT20Ref143400-35
  • 2021.11.08wMassyC3MT20Ref143400-36
  • 2021.11.08xMassyC3MT20Ref143400-37

Ci-dessus : Commutateur MT20 sis au Centre Téléphonique Massy C, à Massy (91).

  • MASSY CTZP 3 (RP13) - Mis en Service le 30 mars 1992 - Hors service le 23 février 2022 - Fabricant : Alcatel/Thomson
  • Exemplaire pourvu de Calculateurs MU323.

Photographies C. R-V. - 8 novembre 2021 - Coll. C. R-V/Orange DANP

_____

  • 2022.02.02SGLCTT1CTS1MT20Ref143811-01
  • 2022.02.02SGLCTT1CTS1MT20Ref143811-02
  • 2022.02.02SGLCTT1CTS1MT20Ref143811-03
  • 2022.02.02SGLCTT1CTS1MT20Ref143811-04
  • 2022.02.02SGLCTT1CTS1MT20Ref143811-05
  • 2022.02.02SGLCTT1CTS1MT20Ref143811-06
  • 2022.02.02SGLCTT1CTS1MT20Ref143811-07
  • 2022.02.02SGLCTT1CTS1MT20Ref143811-08
  • 2022.02.02SGLCTT1CTS1MT20Ref143811-09
  • 2022.02.02SGLCTT1CTS1MT20Ref143811-10
  • 2022.02.02SGLCTT1CTS1MT20Ref143811-11
  • 2022.02.02SGLCTT1CTS1MT20Ref143811-12
  • 2022.02.02SGLCTT1CTS1MT20Ref143811-13
  • 2022.02.02SGLCTT1CTS1MT20Ref143811-14
  • 2022.02.02SGLCTT1CTS1MT20Ref143811-15
  • 2022.02.02SGLCTT1CTS1MT20Ref143811-16
  • 2022.02.02SGLCTT1CTS1MT20Ref143811-17
  • 2022.02.02SGLCTT1CTS1MT20Ref143811-18
  • 2022.02.02SGLCTT1CTS1MT20Ref143811-19
  • 2022.02.02SGLCTT1CTS1MT20Ref143811-20
  • 2022.02.02SGLCTT1CTS1MT20Ref143811-21
  • 2022.02.02SGLCTT1CTS1MT20Ref143811-22

Ci-dessus : premier Commutateur MT20 sis au Centre Téléphonique de Transit de Saint-Germain-en-Laye (78).

  • SAINT-GERMAIN-EN-LAYE CTT1 CTS1 (RT83) - Mis en Service le 15 octobre 1991 - Hors Service le 14 avril 2022 - Fabricant : Alcatel/Thomson.
  • Exemplaire pourvu de Calculateurs MU323.

Photographies C. R-V. - 2 février 2022 - Coll. C. R-V/Orange DANP

_____

  • 2022.05.27SglCTZP2MT20Ref144817-01
  • 2022.05.27SglCTZP2MT20Ref144817-02
  • 2022.05.27SglCTZP2MT20Ref144817-03
  • 2022.05.27SglCTZP2MT20Ref144817-04
  • 2022.05.27SglCTZP2MT20Ref144817-05
  • 2022.05.27SglCTZP2MT20Ref144817-06
  • 2022.05.27SglCTZP2MT20Ref144817-07
  • 2022.05.27SglCTZP2MT20Ref144817-08
  • 2022.05.27SglCTZP2MT20Ref144817-09
  • 2022.05.27SglCTZP2MT20Ref144817-10
  • 2022.05.27SglCTZP2MT20Ref144817-11
  • 2022.05.27SglCTZP2MT20Ref144817-12
  • 2022.05.27SglCTZP2MT20Ref144817-13
  • 2022.05.27SglCTZP2MT20Ref144817-14
  • 2022.05.27SglCTZP2MT20Ref144817-15
  • 2022.05.27SglCTZP2MT20Ref144817-16
  • 2022.05.27SglCTZP2MT20Ref144817-17
  • 2022.05.27SglCTZP2MT20Ref144817-19
  • 2022.05.27SglCTZP2MT20Ref144817-24
  • 2022.05.27SglCTZP2MT20Ref144817-41

Ci-dessus : second Commutateur MT20 sis au Centre Téléphonique de Transit de Saint-Germain-en-Laye (78).

  • SAINT-GERMAIN-EN-LAYE 2 CTZP CTS2 (RP32) - Mis en Service le 15 février 1994 - Promu CTS en 2007 - Hors Service le 13 avril 2023 - Fabricant : Alcatel/Thomson.
  • Exemplaire pourvu de Calculateurs MU323.
  • Le jour de notre visite de 45 minutes, la climatisation était en panne. Il y régnait une température de 45 °c minimum. Pour nous qui sommes du sud et qui aimons la vraie chaleur, cela reste encore supportable, mais en ressortant de la fournaise, c'est à ce moment que l'on ressent un malaise... Mais soyons sérieux, il nous en faudrait plus pour nous impressionner...

Photographies C. R-V. - 27 mai 2022 - Coll. C. R-V/Orange DANP

_____

VueEnsembleMT20BondevilleCTU

Ci-dessus : vue générale du Commutateur MT20 sis au Centre Téléphonique Turbigo - Bondeville, à Paris (75), peu avant sa mise à l'arrêt définitive.

  • BONDEVILLE CTU 1 (RU71) - Mis en service le 10 décembre 1985 - Hors service le 11 août 2017 - Fabricant : Thomson-CSF.

Photographie C. R-V. - 2 août 2017 - Coll. C. R-V.

_____

  • 2022.01.25BondevilleCTU1MT20Ref143706-24
  • 2022.01.25BondevilleCTU1MT20Ref143706-25
  • 2022.01.25BondevilleCTU1MT20Ref143706-26
  • 2022.01.25BondevilleCTU1MT20Ref143706-27
  • 2022.01.25BondevilleCTU1MT20Ref143706-28
  • 2022.01.25BondevilleCTU1MT20Ref143706-29
  • 2022.01.25BondevilleCTU1MT20Ref143706-30
  • 2022.01.25BondevilleCTU1MT20Ref143706-31
  • 2022.01.25BondevilleCTU1MT20Ref143706-32
  • 2022.01.25BondevilleCTU1MT20Ref143706-33
  • 2022.01.25BondevilleCTU1MT20Ref143706-34
  • 2022.01.25BondevilleCTU1MT20Ref143706-35
  • 2022.01.25BondevilleCTU1MT20Ref143706-36
  • 2022.01.25BondevilleCTU1MT20Ref143706-37
  • 2022.01.25BondevilleCTU1MT20Ref143706-38
  • 2022.01.25BondevilleCTU1MT20Ref143706-39

Ci-dessus : Commutateur MT20 - sis au Centre Téléphonique Bondeville, à Paris.

  • BONDEVILLE CTU 1 (RU71) - Mis en service le 10 décembre 1985 - Hors service le 11 août 2017 - Fabricant : Thomson-CSF.

Photographies C. R-V. - 25 janvier 2022 - Coll. C. R-V/Orange DANP

_____

  • 2022.02.28PBouchardCTZP1MT20Ref144336-01
  • 2022.02.28PBouchardCTZP1MT20Ref144336-02
  • 2022.02.28PBouchardCTZP1MT20Ref144336-03
  • 2022.02.28PBouchardCTZP1MT20Ref144336-04
  • 2022.02.28PBouchardCTZP1MT20Ref144336-05
  • 2022.02.28PBouchardCTZP1MT20Ref144336-06
  • 2022.02.28PBouchardCTZP1MT20Ref144336-07
  • 2022.02.28PBouchardCTZP1MT20Ref144336-08
  • 2022.02.28PBouchardCTZP1MT20Ref144336-09
  • 2022.02.28PBouchardCTZP1MT20Ref144336-10
  • 2022.02.28PBouchardCTZP1MT20Ref144336-11
  • 2022.02.28PBouchardCTZP1MT20Ref144336-12

Ci-dessus : Commutateur MT20 - sis au Centre Téléphonique du Plessis-Bouchard (95).

  • PLESSIS-BOUCHARD CTZP 1 (RP95) - Mis en service le 20 septembre 1994 - Hors service le 1er décembre 2021 - Fabricant : Alcatel/Thomson.
  • Lors de notre passage, il était toujours sous tension, en fonctionnement à vide.

Photographies C. R-V. - 28 février 2022 - Coll. C. R-V/Orange DANP

_____

VueCalcMU323MT20PonceletRT43

Ci-dessus : vue des Calculateurs MU323 équipant le Commutateur MT20 - PONCELET CTS2 ARR. (RT43).

  • Mis en service le 20 décembre 1989 - Hors service le 13 juillet 2021 - Fabricant : Alcatel.

(Photographie :© C. R-V.)

_____

  • 2022.01.10PonceletRT43MT20Ref143546-01
  • 2022.01.10PonceletRT43MT20Ref143546-02
  • 2022.01.10PonceletRT43MT20Ref143546-03
  • 2022.01.10PonceletRT43MT20Ref143546-04
  • 2022.01.10PonceletRT43MT20Ref143546-05
  • 2022.01.10PonceletRT43MT20Ref143546-06
  • 2022.01.10PonceletRT43MT20Ref143546-07
  • 2022.01.10PonceletRT43MT20Ref143546-08
  • 2022.01.10PonceletRT43MT20Ref143546-09
  • 2022.01.10PonceletRT43MT20Ref143546-10
  • 2022.01.10PonceletRT43MT20Ref143546-11
  • 2022.01.10PonceletRT43MT20Ref143546-12

Ci-dessus : troisième Commutateur MT20 sis au Centre Téléphonique de Transit Poncelet, à Paris (75).

  • PONCELET CTS2 ARR. (RT43) - Mis en service le 20 décembre 1989 - Hors service le 13 juillet 2021 - Fabricant : Alcatel.
  • Exemplaire pourvu de Calculateurs MU323.
  • Il nous aura fallu un gros travail pour rendre ce MT20 présentable, toutes les portes ayant été ouvertes par des gros malins en mal de tripotage...  Au moins, celui-ci, nous l'aurons récupéré de haute lutte !

Photographies C. R-V. - 10 janvier 2022 - Coll. C. R-V/Orange DANP.

_____

  • 2022.01.10PonceletRU43MT20Ref143547-01
  • 2022.01.10PonceletRU43MT20Ref143547-02
  • 2022.01.10PonceletRU43MT20Ref143547-03
  • 2022.01.10PonceletRU43MT20Ref143547-04
  • 2022.01.10PonceletRU43MT20Ref143547-05
  • 2022.01.10PonceletRU43MT20Ref143547-06
  • 2022.01.10PonceletRU43MT20Ref143547-07
  • 2022.01.10PonceletRU43MT20Ref143547-08
  • 2022.01.10PonceletRU43MT20Ref143547-09
  • 2022.01.10PonceletRU43MT20Ref143547-10
  • 2022.01.10PonceletRU43MT20Ref143547-11
  • 2022.01.10PonceletRU43MT20Ref143547-12

Ci-dessus : deuxième Commutateur MT20 sis au Centre Téléphonique de Transit Poncelet, à Paris (75).

 

  • PONCELET 3 CTU Concentrateur (RU43) - Mis en service le 25 mars 1987 - Hors service le 18 janvier 2022 - Fabricant : Alcatel.
  • Exemplaire pourvu de Calculateurs MU322.
  • Immortalisé quelques jours avant sa mise hors service, cela fait toujours un effet bizarre quand on pense à tout ce que ces machines ont pu rendre comme services, et les stopper de la sorte...

Photographies C. R-V. - 10 janvier 2022 - Coll. C. R-V/Orange DANP.

_____

  • 2022.06.07NeuillySurMarne3CTURef144883-01
  • 2022.06.07NeuillySurMarne3CTURef144883-02
  • 2022.06.07NeuillySurMarne3CTURef144883-03
  • 2022.06.07NeuillySurMarne3CTURef144883-04
  • 2022.06.07NeuillySurMarne3CTURef144883-05
  • 2022.06.07NeuillySurMarne3CTURef144883-06
  • 2022.06.07NeuillySurMarne3CTURef144883-07
  • 2022.06.07NeuillySurMarne3CTURef144883-08
  • 2022.06.07NeuillySurMarne3CTURef144883-09
  • 2022.06.07NeuillySurMarne3CTURef144883-10
  • 2022.06.07NeuillySurMarne3CTURef144883-11
  • 2022.06.07NeuillySurMarne3CTURef144883-12

Ci-dessus : Commutateur MT20 sis au Centre Téléphonique de Transit de Neuilly-sur-Marne (93).

  • NEUILLY-SUR-MARNE 3 CTU (RP17) - Mis en service le 8 novembre 1990 - devient CTS dans les années 2000 - Hors service le 4 août 2022 - Fabricant : Alcatel.
  • Exemplaire pourvu de Calculateurs MU323, le plus évolué équipant certains MT20.
  • Machine photographiée en catastrophe avant sa mise à l’arrêt...

Photographies C. R-V. - 7 juin 2022 - Coll. C. R-V/Orange DANP.

_____

  • 2022.06.20AubervilliersCTT1MT20Ref145094-01
  • 2022.06.20AubervilliersCTT1MT20Ref145094-02
  • 2022.06.20AubervilliersCTT1MT20Ref145094-03
  • 2022.06.20AubervilliersCTT1MT20Ref145094-04
  • 2022.06.20AubervilliersCTT1MT20Ref145094-05
  • 2022.06.20AubervilliersCTT1MT20Ref145094-06
  • 2022.06.20AubervilliersCTT1MT20Ref145094-07
  • 2022.06.20AubervilliersCTT1MT20Ref145094-08
  • 2022.06.20AubervilliersCTT1MT20Ref145094-09
  • 2022.06.20AubervilliersCTT1MT20Ref145094-10
  • 2022.06.20AubervilliersCTT1MT20Ref145094-11
  • 2022.06.20AubervilliersCTT1MT20Ref145094-12
  • 2022.06.20AubervilliersCTT1MT20Ref145094-13
  • 2022.06.20AubervilliersCTT1MT20Ref145094-14
  • 2022.06.20AubervilliersCTT1MT20Ref145094-15
  • 2022.06.20AubervilliersCTT1MT20Ref145094-16

Ci-dessus : second Commutateur MT20 du Centre Téléphonique de Transit d'Aubervilliers (93).

  • AUBERVILLIERS CTT1 CTS1 ARRIVÉE (RT03) - Mis en service le 3 novembre 1983 - Hors Service le 8 septembre 2022 - Fabricant : Thomson-CSF
  • Autocommutateur qui à frôlé les 39 ans d'âge ! Et très pénible à photographier en raison d'un éclairage très défaillant avec des effets de guirlandes clignotantes de Noël tout à fait détestables !
  • Exemplaire pourvu de Calculateurs MU322.

Photographies C. R-V. - 20 juin 2022 - Coll. C. R-V/Orange DANP.

_____

  • 2022.06.20AubervilliersCTT2MT20Ref145092-01
  • 2022.06.20AubervilliersCTT2MT20Ref145092-02
  • 2022.06.20AubervilliersCTT2MT20Ref145092-03
  • 2022.06.20AubervilliersCTT2MT20Ref145092-04
  • 2022.06.20AubervilliersCTT2MT20Ref145092-05
  • 2022.06.20AubervilliersCTT2MT20Ref145092-06
  • 2022.06.20AubervilliersCTT2MT20Ref145092-07
  • 2022.06.20AubervilliersCTT2MT20Ref145092-08
  • 2022.06.20AubervilliersCTT2MT20Ref145092-09
  • 2022.06.20AubervilliersCTT2MT20Ref145092-10
  • 2022.06.20AubervilliersCTT2MT20Ref145092-11
  • 2022.06.20AubervilliersCTT2MT20Ref145092-12
  • 2022.06.20AubervilliersCTT2MT20Ref145092-13
  • 2022.06.20AubervilliersCTT2MT20Ref145092-14
  • 2022.06.20AubervilliersCTT2MT20Ref145092-15
  • 2022.06.20AubervilliersCTT2MT20Ref145092-16
  • 2022.06.20AubervilliersCTT2MT20Ref145092-18
  • 2022.06.20AubervilliersCTT2MT20Ref145092-19

Ci-dessus : quatrième Commutateur MT20 du Centre Téléphonique de Transit d'Aubervilliers (93).

  • AUBERVILLIERS CTT2 CTS1 DÉPART (RT04) - Mis en service le 28 mars 1989 - Hors service le 2 septembre 2022 - Fabricant : Thomson-CSF
  • Exemplaire pourvu de Calculateurs MU323, et avec sa documentation d'époque...

Photographies C. R-V. - 20 juin 2022 - Coll. C. R-V/Orange DANP.

_____

  • 2022.06.18Montsouris2CTUMT20Ref145057-01
  • 2022.06.18Montsouris2CTUMT20Ref145057-02
  • 2022.06.18Montsouris2CTUMT20Ref145057-03
  • 2022.06.18Montsouris2CTUMT20Ref145057-04
  • 2022.06.18Montsouris2CTUMT20Ref145057-05
  • 2022.06.18Montsouris2CTUMT20Ref145057-06
  • 2022.06.18Montsouris2CTUMT20Ref145057-07
  • 2022.06.18Montsouris2CTUMT20Ref145057-08
  • 2022.06.18Montsouris2CTUMT20Ref145057-09
  • 2022.06.18Montsouris2CTUMT20Ref145057-10
  • 2022.06.18Montsouris2CTUMT20Ref145057-11
  • 2022.06.18Montsouris2CTUMT20Ref145057-12
  • 2022.06.18Montsouris2CTUMT20Ref145057-13
  • 2022.06.18Montsouris2CTUMT20Ref145057-14
  • 2022.06.18Montsouris2CTUMT20Ref145057-15
  • 2022.06.18Montsouris2CTUMT20Ref145057-16
  • 2022.06.18Montsouris2CTUMT20Ref145057-17
  • 2022.06.18Montsouris2CTUMT20Ref145057-18

Ci-dessus : premier Commutateur MT20 sis au Centre Téléphonique de Transit Montsouris, à Paris (75).

  • MONTSOURIS 2 CTU Concentrateur (RU32) - Mis en service le 17 juin 1986 - Hors service le 5 septembre 2022 - Fabricant : Thomson-CSF
  • Exemplaire pourvu de Calculateurs MU322, assez pénible à photographier en raison du manque de recul...

Photographies C. R-V. - 18 juin 2022 - Coll. C. R-V/Orange DANP.

_____

  • 2022.06.27MontsourisCTT2ArrMT20Ref145123-01
  • 2022.06.27MontsourisCTT2ArrMT20Ref145123-02
  • 2022.06.27MontsourisCTT2ArrMT20Ref145123-03
  • 2022.06.27MontsourisCTT2ArrMT20Ref145123-04
  • 2022.06.27MontsourisCTT2ArrMT20Ref145123-05
  • 2022.06.27MontsourisCTT2ArrMT20Ref145123-06
  • 2022.06.27MontsourisCTT2ArrMT20Ref145123-07
  • 2022.06.27MontsourisCTT2ArrMT20Ref145123-08
  • 2022.06.27MontsourisCTT2ArrMT20Ref145123-09
  • 2022.06.27MontsourisCTT2ArrMT20Ref145123-10
  • 2022.06.27MontsourisCTT2ArrMT20Ref145123-11
  • 2022.06.27MontsourisCTT2ArrMT20Ref145123-12
  • 2022.06.27MontsourisCTT2ArrMT20Ref145123-13
  • 2022.06.27MontsourisCTT2ArrMT20Ref145123-14
  • 2022.06.27MontsourisCTT2ArrMT20Ref145123-15
  • 2022.06.27MontsourisCTT2ArrMT20Ref145123-16
  • 2022.06.27MontsourisCTT2ArrMT20Ref145123-17
  • 2022.06.27MontsourisCTT2ArrMT20Ref145123-18

Ci-dessus : troisième Commutateur MT20 sis au Centre Téléphonique de Transit Montsouris, à Paris (75).

  • MONTSOURIS CTT2 - CTS ARRIVÉE (RT33) - Mis en service le 16 octobre 1989 - Devient CTP le 5 mai 1992 - Hors service le 5 juin 2023 - Fabricant : Thomson-CSF
  • Exemplaire pourvu de Calculateurs MU323 et en fort bel état de propreté.

Photographies C. R-V. - 27 juin 2022 - Coll. C. R-V/Orange DANP.

_____

  • 2022.06.18MontsourisCTT2DepMT20Ref145054-01
  • 2022.06.18MontsourisCTT2DepMT20Ref145054-02
  • 2022.06.18MontsourisCTT2DepMT20Ref145054-03
  • 2022.06.18MontsourisCTT2DepMT20Ref145054-04
  • 2022.06.18MontsourisCTT2DepMT20Ref145054-05
  • 2022.06.18MontsourisCTT2DepMT20Ref145054-06
  • 2022.06.18MontsourisCTT2DepMT20Ref145054-07
  • 2022.06.18MontsourisCTT2DepMT20Ref145054-08
  • 2022.06.18MontsourisCTT2DepMT20Ref145054-09
  • 2022.06.18MontsourisCTT2DepMT20Ref145054-10
  • 2022.06.18MontsourisCTT2DepMT20Ref145054-11
  • 2022.06.18MontsourisCTT2DepMT20Ref145054-12
  • 2022.06.18MontsourisCTT2DepMT20Ref145054-13
  • 2022.06.18MontsourisCTT2DepMT20Ref145054-14
  • 2022.06.18MontsourisCTT2DepMT20Ref145054-15
  • 2022.06.18MontsourisCTT2DepMT20Ref145054-16
  • 2022.06.18MontsourisCTT2DepMT20Ref145054-17
  • 2022.06.18MontsourisCTT2DepMT20Ref145054-18

Ci-dessus : second Commutateur MT20 sis au Centre Téléphonique de Transit Montsouris, à Paris (75).

  • MONTSOURIS CTT2 - CTS DÉPART (RT34) - Mis en service le 11 août 1989 - Hors service le 18 juillet 2022 - Fabricant : Thomson-CSF
  • Exemplaire pourvu de Calculateurs MU323.

Photographies C. R-V. - 18 juin 2022 - Coll. C. R-V/Orange DANP.

_____

  • 2022.07.11NedelecCTT1MT20Ref145217-01
  • 2022.07.11NedelecCTT1MT20Ref145217-02
  • 2022.07.11NedelecCTT1MT20Ref145217-03
  • 2022.07.11NedelecCTT1MT20Ref145217-04
  • 2022.07.11NedelecCTT1MT20Ref145217-05
  • 2022.07.11NedelecCTT1MT20Ref145217-06
  • 2022.07.11NedelecCTT1MT20Ref145217-07
  • 2022.07.11NedelecCTT1MT20Ref145217-08
  • 2022.07.11NedelecCTT1MT20Ref145217-09
  • 2022.07.11NedelecCTT1MT20Ref145217-10
  • 2022.07.11NedelecCTT1MT20Ref145217-11
  • 2022.07.11NedelecCTT1MT20Ref145217-12
  • 2022.07.11NedelecCTT1MT20Ref145217-13
  • 2022.07.11NedelecCTT1MT20Ref145217-14
  • 2022.07.11NedelecCTT1MT20Ref145217-15
  • 2022.07.11NedelecCTT1MT20Ref145217-16
  • 2022.07.11NedelecCTT1MT20Ref145217-17
  • 2022.07.11NedelecCTT1MT20Ref145217-18

Ci-dessus : premier Commutateur MT20 sis au Centre Téléphonique de Transit Marseille Nédélec, à Marseille (13).

  • MARSEILLE NÉDÉLEC CTT1 - CTS (MA73) - Mis en service le 20 novembre 1984 - Hors service le 30 août 2022 - Fabricant : Thomson-CSF.
  • Premier autocommutateur temporel de transit interurbain mis en service en région PACA, venu soulager la saturation des autocommutateurs de transit électromécaniques, installé dans le Centre Interurbain Automatique Régional et National - Marseille Nédélec (CIARN), jadis qualifié de bénédiction sur place.
  • Nous sommes content d'avoir pu visiter cet autocommutateur, in extremis, avant sa mise à l'arrêt. Marseille-ville, en effet, cela se mérite !
  • Exemplaire pourvu de Calculateurs MU322.

Photographies C. R-V. - 11 juillet 2022 - Coll. C. R-V/Orange DANP.

_____

  • 2022.07.18StMaurontCTT4MT20Ref145361-01
  • 2022.07.18StMaurontCTT4MT20Ref145361-02
  • 2022.07.18StMaurontCTT4MT20Ref145361-03
  • 2022.07.18StMaurontCTT4MT20Ref145361-04
  • 2022.07.18StMaurontCTT4MT20Ref145361-05
  • 2022.07.18StMaurontCTT4MT20Ref145361-06
  • 2022.07.18StMaurontCTT4MT20Ref145361-07
  • 2022.07.18StMaurontCTT4MT20Ref145361-08
  • 2022.07.18StMaurontCTT4MT20Ref145361-09
  • 2022.07.18StMaurontCTT4MT20Ref145361-10
  • 2022.07.18StMaurontCTT4MT20Ref145361-11
  • 2022.07.18StMaurontCTT4MT20Ref145361-12
  • 2022.07.18StMaurontCTT4MT20Ref145361-13
  • 2022.07.18StMaurontCTT4MT20Ref145361-14

Ci-dessus : deuxième Commutateur MT20 sis au Centre Téléphonique de Transit Marseille Saint-Mauront, à Marseille (13).

  • MARSEILLE SAINT-MAURONT CTT4 - CTS 2 (MA90) - Mis en service le 13 décembre 1993 - Hors service le 12 avril 2023 - Fabricant : Alcatel/Thomson.
  • Exemplaire pourvu de Calculateurs MU323.

Photographies C. R-V. - 18 juillet 2022 - Coll. C. R-V/Orange DANP.

_____

  • 2022.07.26ToulonDaveluyCTTMT20Ref145563-01
  • 2022.07.26ToulonDaveluyCTTMT20Ref145563-02
  • 2022.07.26ToulonDaveluyCTTMT20Ref145563-03
  • 2022.07.26ToulonDaveluyCTTMT20Ref145563-04
  • 2022.07.26ToulonDaveluyCTTMT20Ref145563-05
  • 2022.07.26ToulonDaveluyCTTMT20Ref145563-06
  • 2022.07.26ToulonDaveluyCTTMT20Ref145563-07
  • 2022.07.26ToulonDaveluyCTTMT20Ref145563-08
  • 2022.07.26ToulonDaveluyCTTMT20Ref145563-09
  • 2022.07.26ToulonDaveluyCTTMT20Ref145563-10
  • 2022.07.26ToulonDaveluyCTTMT20Ref145563-11
  • 2022.07.26ToulonDaveluyCTTMT20Ref145563-12
  • 2022.07.26ToulonDaveluyCTTMT20Ref145563-13
  • 2022.07.26ToulonDaveluyCTTMT20Ref145563-14

Ci-dessus : Commutateur MT20 sis au Centre Téléphonique Toulon Daveluy, à Toulon (83) -

  • TOULON DAVELUY CTT - CTS 1 (PA87) - Mis en service le 4 juillet 1985 - Hors service le 11 avril 2023 - Fabricant : Thomson-CSF.
  • Exemplaire pourvu de Calculateurs MU322.

Photographies C. R-V. - 26 juillet 2022 - Coll. C. R-V/Orange DANP.

_____

  • 2022.08.05MtpCxAgCTT2MT20Ref145612-01
  • 2022.08.05MtpCxAgCTT2MT20Ref145612-02
  • 2022.08.05MtpCxAgCTT2MT20Ref145612-03
  • 2022.08.05MtpCxAgCTT2MT20Ref145612-04
  • 2022.08.05MtpCxAgCTT2MT20Ref145612-05
  • 2022.08.05MtpCxAgCTT2MT20Ref145612-06
  • 2022.08.05MtpCxAgCTT2MT20Ref145612-07
  • 2022.08.05MtpCxAgCTT2MT20Ref145612-08
  • 2022.08.05MtpCxAgCTT2MT20Ref145612-09
  • 2022.08.05MtpCxAgCTT2MT20Ref145612-10
  • 2022.08.05MtpCxAgCTT2MT20Ref145612-11
  • 2022.08.05MtpCxAgCTT2MT20Ref145612-12
  • 2022.08.05MtpCxAgCTT2MT20Ref145612-13
  • 2022.08.05MtpCxAgCTT2MT20Ref145612-14
  • 2022.08.05MtpCxAgCTT2MT20Ref145612-15
  • 2022.08.05MtpCxAgCTT2MT20Ref145612-16

Ci-dessus : Commutateur MT20 sis au Centre Téléphonique de Transit Montpellier Croix-d'Argent, Montpellier (34).

  • MONTPELLIER CROIX D'ARGENT CTT2 - CTS (MP69) - Mis en service le 24 mars 1988 - Hors service le 15 septembre 2022 - Fabricant : Alcatel/Thomson.
  • Exemplaire pourvu de Calculateurs MU322.

Photographies C. R-V. - 5 août 2022 - Coll. C. R-V/Orange DANP.

_____

  • 2022.12.12NiceBerliozCTT1MT20Ref146929-02
  • 2022.12.12NiceBerliozCTT1MT20Ref146929-03
  • 2022.12.12NiceBerliozCTT1MT20Ref146929-05
  • 2022.12.12NiceBerliozCTT1MT20Ref146929-06
  • 2022.12.12NiceBerliozCTT1MT20Ref146929-07
  • 2022.12.12NiceBerliozCTT1MT20Ref146929-09
  • 2022.12.12NiceBerliozCTT1MT20Ref146929-10
  • 2022.12.12NiceBerliozCTT1MT20Ref146929-11
  • 2022.12.12NiceBerliozCTT1MT20Ref146929-12
  • 2022.12.12NiceBerliozCTT1MT20Ref146929-13
  • 2022.12.12NiceBerliozCTT1MT20Ref146929-14
  • 2022.12.12NiceBerliozCTT1MT20Ref146929-15
  • 2022.12.12NiceBerliozCTT1MT20Ref146929-16
  • 2022.12.12NiceBerliozCTT1MT20Ref146929-17
  • 2022.12.12NiceBerliozCTT1MT20Ref146929-18
  • 2022.12.12NiceBerliozCTT1MT20Ref146929-21
  • 2022.12.12NiceBerliozCTT1MT20Ref146929-37
  • 2022.12.12NiceBerliozCTT1MT20Ref146929-38

Ci-dessus : Commutateur MT20 sis au Centre Téléphonique de Transit Nice Berlioz, à Nice (06).

  • NICE BERLIOZ CTT1 - CTS1 (NC28) - Mis en service le 30 janvier 1984 - Hors service le 28 mars 2023 - Fabricant : Thomson-CSF. A bénéficié d'une extension de son réseau de connexion TSST au début des années 1990 (deux travées aux extrémités rouges, et non point brunes).
  • Exemplaire pourvu de Calculateurs MU322 après vérification sur place, renommés jadis Amanda et Barbara, et non point MU323 ; les clichés l'attestent.

Photographies C. R-V. - 12 décembre 2022 - Coll. C. R-V/Orange DANP.

_____

  • 2023.01.14Boulogne1CTU1MT20Ref147003-01
  • 2023.01.14Boulogne1CTU1MT20Ref147003-02
  • 2023.01.14Boulogne1CTU1MT20Ref147003-03
  • 2023.01.14Boulogne1CTU1MT20Ref147003-04
  • 2023.01.14Boulogne1CTU1MT20Ref147003-05
  • 2023.01.14Boulogne1CTU1MT20Ref147003-06
  • 2023.01.14Boulogne1CTU1MT20Ref147003-07
  • 2023.01.14Boulogne1CTU1MT20Ref147003-08
  • 2023.01.14Boulogne1CTU1MT20Ref147003-09
  • 2023.01.14Boulogne1CTU1MT20Ref147003-10
  • 2023.01.14Boulogne1CTU1MT20Ref147003-11
  • 2023.01.14Boulogne1CTU1MT20Ref147003-12

Ci-dessus : Commutateur MT20 sis au Centre Téléphonique Boulogne, à Boulogne-Billancourt (92).

  • BOULOGNE 1 CTU1 - CTZP (RP26) - Mis en service le 29 novembre 1988 - Hors service le 16 juin 2006 - Fabricant : Thomson-CSF.
  • Exemplaire pourvu de Calculateurs MU322.

Photographies C. R-V. - 14 janvier 2023 - Coll. C. R-V/Orange DANP.

_____

  • 2023.02.11VilleneuveStG2CTU2MT20Ref147126-01
  • 2023.02.11VilleneuveStG2CTU2MT20Ref147126-02
  • 2023.02.11VilleneuveStG2CTU2MT20Ref147126-03
  • 2023.02.11VilleneuveStG2CTU2MT20Ref147126-04
  • 2023.02.11VilleneuveStG2CTU2MT20Ref147126-05
  • 2023.02.11VilleneuveStG2CTU2MT20Ref147126-06
  • 2023.02.11VilleneuveStG2CTU2MT20Ref147126-07
  • 2023.02.11VilleneuveStG2CTU2MT20Ref147126-08
  • 2023.02.11VilleneuveStG2CTU2MT20Ref147126-09
  • 2023.02.11VilleneuveStG2CTU2MT20Ref147126-10
  • 2023.02.11VilleneuveStG2CTU2MT20Ref147126-11
  • 2023.02.11VilleneuveStG2CTU2MT20Ref147126-12
  • 2023.02.11VilleneuveStG2CTU2MT20Ref147126-13
  • 2023.02.11VilleneuveStG2CTU2MT20Ref147126-14

Ci-dessus : Commutateur MT20 sis au Centre Téléphonique de Transit de Villeneuve-Saint-Georges (94) - limitrophe avec Valenton.

  • VILLENEUVE-SAINT-GEORGES 2 CTU2 - CTZP (RP52) - Mis en service le 18 octobre 1988 - Hors service le 24 septembre 2004 - Fabricant : Alcatel/Thomson.
  • Exemplaire pourvu de Calculateurs MU322.

Photographies C. R-V. - 11 février 2023 - Coll. C. R-V/Orange DANP.

_____

  • 2023.02.20EragnyCTT1CTS2MT20Ref147407-01
  • 2023.02.20EragnyCTT1CTS2MT20Ref147407-02
  • 2023.02.20EragnyCTT1CTS2MT20Ref147407-03
  • 2023.02.20EragnyCTT1CTS2MT20Ref147407-04
  • 2023.02.20EragnyCTT1CTS2MT20Ref147407-05
  • 2023.02.20EragnyCTT1CTS2MT20Ref147407-06
  • 2023.02.20EragnyCTT1CTS2MT20Ref147407-07
  • 2023.02.20EragnyCTT1CTS2MT20Ref147407-08
  • 2023.02.20EragnyCTT1CTS2MT20Ref147407-09
  • 2023.02.20EragnyCTT1CTS2MT20Ref147407-10
  • 2023.02.20EragnyCTT1CTS2MT20Ref147407-12
  • 2023.02.20EragnyCTT1CTS2MT20Ref147407-14
  • 2023.02.20EragnyCTT1CTS2MT20Ref147407-32
  • 2023.02.20EragnyCTT1CTS2MT20Ref147407-33

Ci-dessus : Commutateur MT20 sis au Centre Téléphonique de Transit d'Éragny-sur-Oise (95).

  • ÉRAGNY CTT1 CTS2 - (RT81) - Mis en service le 21 mars 1989 - Hors Service le 20 avril 2023 - Fabricant : Alcatel/Thomson.
  • Exemplaire pourvu de Calculateurs MU322 améliorés (avec 3 cartes au lieu des 2 habituelles).

Photographies C. R-V. - 20 février 2023 - Coll. C. R-V/Orange DANP.

_____

  • 2023.02.27LilleBoitelleCTT2MT20Ref147722-01
  • 2023.02.27LilleBoitelleCTT2MT20Ref147722-02
  • 2023.02.27LilleBoitelleCTT2MT20Ref147722-03
  • 2023.02.27LilleBoitelleCTT2MT20Ref147722-04
  • 2023.02.27LilleBoitelleCTT2MT20Ref147722-05
  • 2023.02.27LilleBoitelleCTT2MT20Ref147722-06
  • 2023.02.27LilleBoitelleCTT2MT20Ref147722-07
  • 2023.02.27LilleBoitelleCTT2MT20Ref147722-08
  • 2023.02.27LilleBoitelleCTT2MT20Ref147722-09
  • 2023.02.27LilleBoitelleCTT2MT20Ref147722-10
  • 2023.02.27LilleBoitelleCTT2MT20Ref147722-11
  • 2023.02.27LilleBoitelleCTT2MT20Ref147722-12
  • 2023.02.27LilleBoitelleCTT2MT20Ref147722-13
  • 2023.02.27LilleBoitelleCTT2MT20Ref147722-14
  • 2023.02.27LilleBoitelleCTT2MT20Ref147722-15
  • 2023.02.27LilleBoitelleCTT2MT20Ref147722-16
  • 2023.02.27LilleBoitelleCTT2MT20zRef147721-01
  • 2023.02.27LilleBoitelleCTT2MT20zRef147721-03
  • 2023.02.27LilleBoitelleCTT2MT20zRef147721-04
  • 2023.02.27LilleBoitelleCTT2MT20zRef147721-06
  • 2023.02.27LilleBoitelleCTT2MT20zRef147721-07
  • 2023.02.27LilleBoitelleCTT2MT20zRef147721-08
  • 2023.02.27LilleBoitelleCTT2MT20zRef147721-10
  • 2023.02.27LilleBoitelleCTT2MT20zRef147721-12

Ci-dessus : second Commutateur MT20 sis au Centre Téléphonique Lille Boitelle, à Lille (59).

  • LILLE BOITELLE CTT2 CTS2 - (LL00) - Mis en service en Janvier 1986 en tant que LILLE BOITELLE CTT2 CTP (LL09) (Centre de Transit Principal) - Fabricant : CGCT.
  • Devient CTS (Centre de Transit Secondaire) le 5 avril 1991 avec un nouveau code SGTQS (LL00).
  • Hors service le 5 avril 2023.
  • Exemplaire pourvu de Calculateurs MU322.
  • L'on notera l'état de préservation de la salle de supervision en quasi parfait-état, avec tous ses équipements d'époque, demeurés présents en l'état, même s'ils ne servent plus depuis au moins 20 années.

Photographies C. R-V. - 27 février 2023 - Coll. C. R-V/Orange DANP.

_____

  • 2023.06.14ParisStLambertCTT1MT20Ref148038-01
  • 2023.06.14ParisStLambertCTT1MT20Ref148038-02
  • 2023.06.14ParisStLambertCTT1MT20Ref148038-04
  • 2023.06.14ParisStLambertCTT1MT20Ref148038-06
  • 2023.06.14ParisStLambertCTT1MT20Ref148038-08
  • 2023.06.14ParisStLambertCTT1MT20Ref148038-10
  • 2023.06.14ParisStLambertCTT1MT20Ref148038-12
  • 2023.06.14ParisStLambertCTT1MT20Ref148038-14
  • 2023.06.14ParisStLambertCTT1MT20Ref148038-16
  • 2023.06.14ParisStLambertCTT1MT20Ref148038-18
  • 2023.06.14ParisStLambertCTT1MT20Ref148038-20
  • 2023.06.14ParisStLambertCTT1MT20Ref148038-21
  • 2023.06.14ParisStLambertCTT1MT20Ref148038-23
  • 2023.06.14ParisStLambertCTT1MT20Ref148038-25
  • 2023.06.14ParisStLambertCTT1MT20Ref148038-26
  • 2023.06.14ParisStLambertCTT1MT20Ref148038-27
  • 2023.06.14ParisStLambertCTT1MT20Ref148038-31
  • 2023.06.14ParisStLambertCTT1MT20Ref148038-38

Ci-dessus : 1er Commutateur MT20 sis au Centre Téléphonique de Transit Saint-Lambert, à Paris (75).

  • PARIS SAINT-LAMBERT CTT1 – CTS2 DÉPART (RT74) - Mis en service le 28 avril 1987 - Hors service le 13 avril 2023 - Fabricant : Thomson-CSF.
  • Exemplaire pourvu de Calculateurs MU322.

Photographies C. R-V. – 14 juin 2023 - Coll. C. R-V/Orange DANP.

_____

  • 2023.06.14ParisStLambertCTT2MT20Ref148037-01
  • 2023.06.14ParisStLambertCTT2MT20Ref148037-02
  • 2023.06.14ParisStLambertCTT2MT20Ref148037-04
  • 2023.06.14ParisStLambertCTT2MT20Ref148037-06
  • 2023.06.14ParisStLambertCTT2MT20Ref148037-08
  • 2023.06.14ParisStLambertCTT2MT20Ref148037-10
  • 2023.06.14ParisStLambertCTT2MT20Ref148037-14
  • 2023.06.14ParisStLambertCTT2MT20Ref148037-18
  • 2023.06.14ParisStLambertCTT2MT20Ref148037-19
  • 2023.06.14ParisStLambertCTT2MT20Ref148037-21
  • 2023.06.14ParisStLambertCTT2MT20Ref148037-30
  • 2023.06.14ParisStLambertCTT2MT20Ref148037-31
  • 2023.06.14ParisStLambertCTT2MT20Ref148037-34
  • 2023.06.14ParisStLambertCTT2MT20Ref148037-35
  • 2023.06.14ParisStLambertCTT2MT20Ref148037-26
  • 2023.06.14ParisStLambertCTT2MT20Ref148037-29

Ci-dessus : 2ème Commutateur MT20 sis au Centre Téléphonique de Transit Saint-Lambert, à Paris (75).

  • PARIS SAINT-LAMBERT CTT2 – CTS3 ARRIVÉE (RT75) - Mis en service le 13 septembre 1994 - Hors service le 20 avril 2023 - Fabricant : Alcatel.
  • Exemplaire pourvu de Calculateurs MU323.

Photographies C. R-V. – 14 juin 2023 - Coll. C. R-V/Orange DANP.

_____

  • 2023.06.23MtpMontcalmCTT3MT20Ref148076-01
  • 2023.06.23MtpMontcalmCTT3MT20Ref148076-02
  • 2023.06.23MtpMontcalmCTT3MT20Ref148076-04
  • 2023.06.23MtpMontcalmCTT3MT20Ref148076-06
  • 2023.06.23MtpMontcalmCTT3MT20Ref148076-08
  • 2023.06.23MtpMontcalmCTT3MT20Ref148076-10
  • 2023.06.23MtpMontcalmCTT3MT20Ref148076-12
  • 2023.06.23MtpMontcalmCTT3MT20Ref148076-14
  • 2023.06.23MtpMontcalmCTT3MT20Ref148076-19
  • 2023.06.23MtpMontcalmCTT3MT20Ref148076-20
  • 2023.06.23MtpMontcalmCTT3MT20Ref148076-21
  • 2023.06.23MtpMontcalmCTT3MT20Ref148076-22
  • 2023.06.23MtpMontcalmCTT3MT20Ref148076-23
  • 2023.06.23MtpMontcalmCTT3MT20Ref148076-30
  • 2023.06.23MtpMontcalmCTT3MT20Ref148076-17
  • 2023.06.23MtpMontcalmCTT3MT20Ref148076-18

Ci-dessus : Commutateur MT20 sis au Centre Téléphonique de Transit Montpellier Montcalm, à Montpellier (34).

  • MONTPELLIER MONTCALM – CTT3 CTS (MP77) - Mis en service le 17 juin 1994 - Hors service le 25 mai 2023 - Fabricant : Alcatel.
  • Exemplaire pourvu de Calculateurs MU323.

Photographies C. R-V. – 23 juin 2023 - Coll. C. R-V/Orange DANP.

_____

  • 2023.07.25BdxMeriadeckCTT2CTPMT20Ref148252-01
  • 2023.07.25BdxMeriadeckCTT2CTPMT20Ref148252-02
  • 2023.07.25BdxMeriadeckCTT2CTPMT20Ref148252-04
  • 2023.07.25BdxMeriadeckCTT2CTPMT20Ref148252-06
  • 2023.07.25BdxMeriadeckCTT2CTPMT20Ref148252-08
  • 2023.07.25BdxMeriadeckCTT2CTPMT20Ref148252-10
  • 2023.07.25BdxMeriadeckCTT2CTPMT20Ref148252-12
  • 2023.07.25BdxMeriadeckCTT2CTPMT20Ref148252-14
  • 2023.07.25BdxMeriadeckCTT2CTPMT20Ref148252-16
  • 2023.07.25BdxMeriadeckCTT2CTPMT20Ref148252-18
  • 2023.07.25BdxMeriadeckCTT2CTPMT20Ref148252-19
  • 2023.07.25BdxMeriadeckCTT2CTPMT20Ref148252-21
  • 2023.07.25BdxMeriadeckCTT2CTPMT20Ref148252-23
  • 2023.07.25BdxMeriadeckCTT2CTPMT20Ref148252-24
  • 2023.07.25BdxMeriadeckCTT2CTPMT20Ref148252-25
  • 2023.07.25BdxMeriadeckCTT2CTPMT20Ref148252-26
  • 2023.07.25BdxMeriadeckCTT2CTPMT20Ref148252-34
  • 2023.07.25BdxMeriadeckCTT2CTPMT20Ref148252-42
  • 2023.07.25BdxMeriadeckCTT2CTPMT20Ref148252-45
  • 2023.07.25BdxMeriadeckCTT2CTPMT20Ref148252-48

Ci-dessus : 1er Commutateur MT20 sis au Centre Téléphonique de Transit Bordeaux Mériadeck, à Bordeaux (33).

  • BORDEAUX MÉRIADECK CTT2 - CTP (BX02) - Mis en service le 17 août 1988 - Hors service le 8 juin 2023 - Fabricant : CGCT.
  • Exemplaire pourvu de Calculateurs MU322, et tenant le rôle de Centre de Transit Principal (CTP), d’acheminement interurbain de dernier ressort, dans le niveau hiérarchique le plus haut (Classe 1) au niveau national dans le RTC.
  • Présence préservée des deux anciennes Consoles PEM (Position d'Essai Manuel) permettant jadis de tester manuellement chaque voie téléphonique au travers du Réseau de Connexion.
  • Dernier autocommutateur MT20 arrêté en France, avec son voisin d’un autre étage : BORDEAUX MÉRIADECK CTT3 – CTS 2 (BX03).

Photographies C. R-V. - 25 juillet 2023 - Coll. C. R-V/Orange DANP.

_____

  • 2023.07.25BdxMeriadeckCTT3CTSMT20Ref148247-01
  • 2023.07.25BdxMeriadeckCTT3CTSMT20Ref148247-02
  • 2023.07.25BdxMeriadeckCTT3CTSMT20Ref148247-04
  • 2023.07.25BdxMeriadeckCTT3CTSMT20Ref148247-06
  • 2023.07.25BdxMeriadeckCTT3CTSMT20Ref148247-08
  • 2023.07.25BdxMeriadeckCTT3CTSMT20Ref148247-10
  • 2023.07.25BdxMeriadeckCTT3CTSMT20Ref148247-12
  • 2023.07.25BdxMeriadeckCTT3CTSMT20Ref148247-14
  • 2023.07.25BdxMeriadeckCTT3CTSMT20Ref148247-15
  • 2023.07.25BdxMeriadeckCTT3CTSMT20Ref148247-16
  • 2023.07.25BdxMeriadeckCTT3CTSMT20Ref148247-17
  • 2023.07.25BdxMeriadeckCTT3CTSMT20Ref148247-18
  • 2023.07.25BdxMeriadeckCTT3CTSMT20Ref148247-19
  • 2023.07.25BdxMeriadeckCTT3CTSMT20Ref148247-20
  • 2023.07.25BdxMeriadeckCTT3CTSMT20Ref148247-21
  • 2023.07.25BdxMeriadeckCTT3CTSMT20Ref148247-27
  • 2023.07.25BdxMeriadeckCTT3CTSMT20Ref148247-32
  • 2023.07.25BdxMeriadeckCTT3CTSMT20Ref148247-35
  • 2023.07.25BdxMeriadeckCTT3CTSMT20Ref148247-33
  • 2023.07.25BdxMeriadeckCTT3CTSMT20Ref148247-34

Ci-dessus : 2ème Commutateur MT20 sis au Centre Téléphonique de Transit Bordeaux Mériadeck, à Bordeaux (33).

  • BORDEAUX MÉRIADECK CTT3 – CTS 2 (BX03) - Mis en service le 19 avril 1990 - Hors service le 8 juin 2023 - Fabricant : Matra Ericsson Telecommunications (MET).
  • Exemplaire pourvu de Calculateurs MU323.
  • Dernier autocommutateur MT20 arrêté en France, avec son voisin d’un autre étage : BORDEAUX MÉRIADECK CTT2 – CTP (BX02).

Photographies C. R-V. - 25 juillet 2023 - Coll. C. R-V/Orange DANP.

_____

  • 2023.07.27BdxChateaudEauCTT1MT20Ref148366-01
  • 2023.07.27BdxChateaudEauCTT1MT20Ref148366-02
  • 2023.07.27BdxChateaudEauCTT1MT20Ref148366-04
  • 2023.07.27BdxChateaudEauCTT1MT20Ref148366-06
  • 2023.07.27BdxChateaudEauCTT1MT20Ref148366-08
  • 2023.07.27BdxChateaudEauCTT1MT20Ref148366-10
  • 2023.07.27BdxChateaudEauCTT1MT20Ref148366-12
  • 2023.07.27BdxChateaudEauCTT1MT20Ref148366-14
  • 2023.07.27BdxChateaudEauCTT1MT20Ref148366-16
  • 2023.07.27BdxChateaudEauCTT1MT20Ref148366-17
  • 2023.07.27BdxChateaudEauCTT1MT20Ref148366-18
  • 2023.07.27BdxChateaudEauCTT1MT20Ref148366-19
  • 2023.07.27BdxChateaudEauCTT1MT20Ref148366-20
  • 2023.07.27BdxChateaudEauCTT1MT20Ref148366-21
  • 2023.07.27BdxChateaudEauCTT1MT20Ref148366-22
  • 2023.07.27BdxChateaudEauCTT1MT20Ref148366-29
  • 2023.07.27BdxChateaudEauCTT1MT20Ref148366-30
  • 2023.07.27BdxChateaudEauCTT1MT20Ref148366-37
  • 2023.07.27BdxChateaudEauCTT1MT20Ref148366-38
  • 2023.07.27BdxChateaudEauCTT1MT20Ref148366-39

Ci-dessus : Commutateur MT20 sis au Centre Téléphonique de Transit Bordeaux Château d’Eau (33).

  • BORDEAUX CHÂTEAU D’EAU CTT1 – CTS 1 DÉPART (BX10) - Mis en service le 20 janvier 1986 - Hors service le 6 octobre 2022 - Fabricant : Thomson-CSF.
  • Exemplaire pourvu de Calculateurs MU322.

Photographies C. R-V. - 27 juillet 2023 - Coll. C. R-V/Orange DANP.

_____

  • 2023.08.22ToulouseFerrieCTT3MT20Ref148519-01
  • 2023.08.22ToulouseFerrieCTT3MT20Ref148519-02
  • 2023.08.22ToulouseFerrieCTT3MT20Ref148519-04
  • 2023.08.22ToulouseFerrieCTT3MT20Ref148519-06
  • 2023.08.22ToulouseFerrieCTT3MT20Ref148519-08
  • 2023.08.22ToulouseFerrieCTT3MT20Ref148519-10
  • 2023.08.22ToulouseFerrieCTT3MT20Ref148519-12
  • 2023.08.22ToulouseFerrieCTT3MT20Ref148519-14
  • 2023.08.22ToulouseFerrieCTT3MT20Ref148519-15
  • 2023.08.22ToulouseFerrieCTT3MT20Ref148519-16
  • 2023.08.22ToulouseFerrieCTT3MT20Ref148519-17
  • 2023.08.22ToulouseFerrieCTT3MT20Ref148519-18
  • 2023.08.22ToulouseFerrieCTT3MT20Ref148519-19
  • 2023.08.22ToulouseFerrieCTT3MT20Ref148519-21
  • 2023.08.22ToulouseFerrieCTT3MT20Ref148519-27
  • 2023.08.22ToulouseFerrieCTT3MT20Ref148519-35

Ci-dessus : Commutateur MT20 en cours de démontage, sis au Centre Téléphonique de Transit Toulouse Ferrié, à Toulouse (31).

  • TOULOUSE FERRIÉ CTT3 – CTS 2 (TL85) - Mis en service le 19 mars 1986 en tant que CTP sous la référence (TL60) ; transformé le 20 juillet 1992 en CTS sous la référence (TL85) - Hors service le 19 avril 2023 - Fabricant : Thomson-CSF.
  • Exemplaire pourvu de Calculateurs MU322.
  • L’ensemble des panneaux a déjà été démonté, les cartes décrochées, la connectique sectionnée. L’on obtient ainsi un éclaté de la machine qui permet de mieux comprendre son intérieur. Ce démontage anormalement rapide aura au moins eu cet ultime intérêt.

Photographies C. R-V. – 22 août 2023 - Coll. C. R-V/Orange DANP.

_____

PUMAsiteBondevilleCTU

Ci-dessus : PUpitre de MAintenance (PUMA) associé jadis à tout Commutateur MT20

  • Chaque PUMA permettant notamment d'arrêter et de redémarrer son calculateur rattaché, pour opération de maintenance préventive (travaux planifiés sur un calculateur) ou pour maintenance curative (suite à avarie de fonctionnement).
  • Les PUMA sont devenus obsolètes au début des années 2000, ces manœuvres pouvant désormais être réalisées par l'intermédiaire de Personal Computers.
  • En l'espèce BONDEVILLE CTU1 (RU71) - MT20.

Photographie C. R-V. - 2 août 2017 - Coll. C. R-V.

_____

MU320

Ci-dessus, Mercure 320 : vue d'un calculateur de MT20 (ou MT25), modèle MU320.

(Photographie Thomson-CSF 1981)

_____

2022.07.21CalculateurMU320Ref145446-03

Ci-dessus, Mercure 320 : vue d'un calculateur de MT20 (ou MT25), modèle MU320.

  • Improbable exemplaire survivant, à l'arrêt, à peu près complet, découvert par nos soins dans le Centre Téléphonique du Pontet-Fargues, dans une pièce reléguée...

Photographie C. R-V. - 21 juillet 2022 - Coll. C. R-V/Orange DANP

_____

MU322BondevilleCTU

Ci-dessus, Mercure 322 : vue d'un calculateur de MT20, modèle MU322 reconnaissable car il est constitué de 2 cartes sur l'alvéole du haut et d'1 seul bloc d'alimentation situé en haut à droite.

  • En l'espèce BONDEVILLE CTU 1 (RU71) - MT20.

Photographie C. R-V. - 2 août 2017 - Coll. C. R-V.

_____

MU323

Ci-dessus, Mercure 323 : vue d'un calculateur de Commutateur MT20, modèle MU323 reconnaissable car il est constitué de 4 cartes sur l'alvéole du haut et d'1 seul bloc d'alimentation situé en haut à droite.

(Photographie :© C. R-V. Paris Saint-Lambert CTS2 (RT74))

Nota : à la différence des MU320, MU321 puis MU322, le calculateur MU323, le plus perfectionné, n'a été implanté que sur certains Commutateurs de transit MT20.

_____

PEMdansMT20TN

PEMDetailClavierMT20TN

Ci-dessus : il s'agit d'une console PEM. (Position d'Essai Manuel). (Commutateur MT20TN CTU de Boulogne-Billancourt 1 CTU1 (RP26)) - Photographies : © C. R-V.

  • Sorte de téléphone perfectionné utilisé dans les salles d'exploitation des Commutateurs de transit MT20 pour tester le bon fonctionnement de n'importe quelle voie téléphonique transitant par ce Commutateur, qu'il soit de type CTU, CTS, CTP ou CIA, CTI, CTIP. 
  • Ces consoles PEM sont devenues obsolètes et ont été retirées du service à la fin de l'année 2003, ces types de tests ayant pu désormais être réalisés à distance, à l'aide de Personal Computers.

1992.04VueConsolePEMdeMT20CIA2ouCIA3Reims

Ci-dessus : rare vue datant d'Avril 1992, présentant une utilisation en situation réelle, par le confrère debout, d'une console PEM d'un MT20 utilisé en Centre International Automatique à Reims. Photographie X.

  • Il ne peut s'agir que du Commutateur REIMS CITP2 MT20CTIP (HM04) en fonctionnement de Janvier 1984 jusqu'au 26 novembre 2001, ou de REIMS CITP3 MT20CTIP (HM00), en fonctionnement de 1991/92 jusqu'au 9 décembre 2002.
  • Consultez également la plaquette publicitaire destinée au grand public de Juin 1994 : Reims - Le Centre International de Transit Principal - 1994.

_____

1994.04SupervisionBagnoletMT20CIA

Ci-dessus : salle de supervision et d'exploitation des 3 Commutateurs MT20CIA du Centre International de Bagnolet. Visibles, les consoles PEM des Commutateurs MT20CIA.

_____

1998.09CentreSupervisionInternationalBagnolet

Ci-dessus : Salle de Supervision des liaisons du Trafic International du Centre Paris-Bagnolet, en Septembre 1998 (avec mur d'écrans plats)

  • C'est fin 1996 que Bagnolet International est devenu l'interlocuteur unique des opérateurs internationaux en relation avec la France. 

Photographie France Télécom - Coll. C. R-V.

_____


MT25, Temporel de seconde génération, commandé le 20 avril 1979 par l'Administration des Télécommunications, robuste mais ayant été très long à mettre au point, il est directement dérivé du système MT20 dans son architecture, à laquelle il a été adjoint des Unités de Raccordement d'Abonnés où sont connectées des cartes de 8 abonnés (en lieu et place des circuits de jonctions intercentre du MT20). Le logiciel de fonctionnement du système MT25 est lui aussi entièrement remanié par rapport à celui du système MT20. Le système MT25 est un système de commutation téléphonique à commande centralisée. Tout comme le système MT20, son architecture est construite sur quatre niveaux : 

- Le premier niveau est constitué par une Unité de Commande Dupliquée (UCD) basée sur un ensemble de deux calculateurs fonctionnant en service normal en partage de charge (pourvue de deux processeurs de type MU320 (nom complet : Mercure 320) de technologie à circuits intégrés ECL, ayant tous été remplacés entre l'année 1989 et l'année 1997 pour les 11 tous derniers par le type MU321 deux fois plus puissant puis, sur option, par le type MU322 au fil des modernisations à partir de 1995 : depuis 2014, les MT25 en service sont tous pourvus de processeurs MU322 qui sont aussi les plus fiables). Le système MT25 est effectivement essentiellement centralisé, car les communications sont toujours établies puis toujours coupées sur l'ordre exclusif de l'Unité de Commande Dupliquée.

- Le second niveau est constitué par l'Unité de SIgnalisation (USI)

- d'une part constituée de Signaleurs (SI) équipés de microcalculateurs MU29 (Mercure 29) chargés d'effectuer les tâches non répétitives comme la surveillance et le test des équipements, qui sont constitués par des microprocesseurs AMD2901.

- d'autre part constituée des processeurs Périphériques Programmés de Signalisation (PPS) chargés d'effectuer la majeure partie des tâches simples et répétitives, entre l'Unité de Commande Dupliquée (UCD), le Réseau de ConneXion (RCX) et les liaisons connectées avec les commutateurs distants, pour assurer notamment l'échange des signaux de ligne (tonalités) et d'enregistreur servant à acheminer les appels.

- Le troisième niveau est constitué de l'Unité de ConneXion (UCX). Elle comprend notablement le Réseau de ConneXion (RCX) d'un commutateur MT25. 

L'Unité de ConneXion (UCX) a pour rôle de connecter, grâce à des organes dénommés Groupes Temporels (GT), 24  GT maximum, deux intervalles de temps quelconques appartenant à des liaisons numériques MIC quelconques. Deux types sont possibles :

- soit de type purement temporel TT (un étage d'entrée temporel, un étage de sortie temporel) pour une capacité maximale de raccordement de 512 MIC. (Nota : une Unité de Commande Dupliquée (UCD) composée de calculateurs MU320 ne peut supporter qu'un Réseau de ConneXion (RCX) de 512 liaisons MIC au maximum.)

- soit de type Temporel-Spatial-Spatial-Temporel pour une capacité pouvant s'étendre jusqu'à 2048 MIC. (Avec calculateurs MU321 ou MU322 uniquement). Dans ce cas, pour maintenir l'accessibilité totale du réseau agrandi, le brassage de ces différents Groupes Temporels (GT) entre eux est alors assuré par l'organe supplémentaire de Sélection de Groupe (SG). Les Sélecteurs de Groupes (SG) sont en fait des matrices numériques spatiales de commutation dites "supermultiplex". Ce Réseau de ConneXion (RCX), de type temporel est formé de 4 étages : un étage d'entrée temporel, un étage de sortie temporel, mais au milieu de ces 2 étages, 2 étages spatiaux réalisés en technologie numérique. Le Réseau de Connexion TSST est une adaptation qui a été utilisée afin de pouvoir assurer à moindre frais et à moindres difficultés un brassage optimal entre les voies entrantes et sortantes.

- Le quatrième niveau est constitué par les Unités de Raccordement d'Abonnés (URA).

Les baies retenues initialement pour les Commutateurs MT25 sont de type URA 2G. Elles ont été développées de Juillet 1975 à Septembre 1978 par l’Association des Ouvriers en Instruments de Précision (AOIP) en collaboration avec la Société Anonyme de Télécommunications (SAT) filiale du groupe Philips et adoptées officiellement par l’Administration en Janvier 1979.

Une URA 2G est un Concentrateur Temporel, à interface entrée/sortie analogique vis-à-vis de ces abonnés, connectée au Cœur De Chaîne par l'intermédiaire de 2, 3 ou 4 liaisons numériques MIC de 30 voies numériques pour chaque MIC, le nombre de MIC variant suivant le nombre d'abonnés raccordés sur ladite URA 2G ainsi que la densité de trafic statistique à écouler.

La plupart des baies équipées de type URA 2G ont été démontées à la fin 2000, et remplacées par des baies de CSN étant donné que les URA 2G ne supportaient pas l'arrivée de certains nouveaux services comme la Présentation de l'Identité du Demandeur (PID).

Les MT25 sont équipés, dès 1983, de baies de cartes de raccordement d'abonnés de type URA 2G (Unités de Raccordement d’Abonnés de 2eme Génération). Chaque carte comprend 16 abonnés analogiques (les cartes d'abonnés discriminés TTX avec retransmission des impulsions de taxation à domicile 12KHz comprennent seulement 8 abonnés)

Les MT25 sont équipés à partir de 1987, soit de baies de type URA 2G, soit de baies de type CSN (Centre Satellite Numérique), plus perfectionnées.

 (Nota : les équipements CSN sont les mêmes que ceux des Commutateurs de la famille E10. Ils ont été conçus par Alcatel pour être également compatibles avec les MT25, ce qui a permis de prolonger la vie des Commutateurs MT25, en pouvant offrir les services modernes aux abonnés comme la Présentation de l'Identité du Demandeur. Mais les CSN rendus compatibles permirent à Alcatel, ayant entre-temps racheté à Thomson-CSF sa branche Commutation Publique, de cesser la conception de l'Unité de Raccordement Numérique (URN) mise en étude par Thomson-CSF peu de temps avant cette absorption...)

- Chaque URA 2G peut héberger 1023 abonnés analogiques ordinaires. (la position numéro zéro ne pouvant être attribuée.)

-Chaque URA 2G peut héberger 511 abonnés analogiques discriminés.

- Un Commutateur MT25 à Réseau de ConneXion TT peut recevoir jusqu'à 15 URA 2G.

-Un Commutateur MT25 à Réseau de Connexion TSST peut recevoir jusqu'à 64 URA 2G.

- Chaque CSN peut héberger 5120 abonnés analogiques.

_____

Ci-dessous : cas des cartes d'abonnés des URA 2G. 

Chaque URA2G peut recevoir jusqu'à 64 cartes d'abonnés maximum.

1983CarteAbonneURA2GCommutateurMT25

Ci-dessus : vue d'une alvéole d'URA2G et d'une Carte d'Équipements d'Abonnés Ordinaires dans un Commutateur MT25.

Photographie PTT - 1983 - Coll. C. R-V.

_____

CarteUraMT25AboStdEAO5

Ci-dessus : Carte d'Équipements d'Abonnés Ordinaires d'un Commutateur MT25 (référence EAO5) où sont raccordés 16 abonnés analogiques. 

  • Ces cartes sont connectées dans les URA2G.
  • Sont visibles à gauche les 16 transformateurs d'entrée/sortie des conversations téléphoniques (1 par abonné).

Coll. C. R-V.

_____

CarteUraMT25AboDiscriEAD2

Ci-dessus : Carte d'Équipements d'Abonnés Discriminés d'un Commutateur MT25 (Référence EAD2) recevant à domicile les impulsions de taxe à 12KHz où sont raccordés 8 abonnés analogiques discriminés seulement. 

  • Ces cartes sont connectées dans les URA2G.
  • Sont visibles à gauche les 8 transformateurs d'entrée/sortie des conversations téléphoniques (1 par abonné).
  • Vers le centre-droit, les 16 petits transformateurs/mélangeurs des impulsions de taxe à 12KHz. (2 par abonné, 1 par fil de ligne).

Coll. C. R-V.

_____

CarteUraMT25AboSpecialEAS2

Ci-dessus : Carte d'Équipements d'Abonnés et ligne Spécialisée d'un Commutateur MT25 (référence EAS2) où sont raccordées 15 lignes. 

  • 13 lignes sont affectées à des abonnés ordinaires analogiques + 1 ligne spécialisée à 2 fils + 1 ligne spécialisée à 4 fils (au lieu de 2 fils)
  • Ces lignes spécialisées peuvent aussi être utilisées pour certains tests spécifiques (Robot d'Essais Lignes d'Exploitation RELEX, ou Robot d'Essais Lignes d'Abonnés RELA)
  • Ces cartes, présentes en quantité très réduite, sont aussi connectées dans les URA2G.
  • Sont visibles à gauche les 16 transformateurs d'entrée/sortie des conversations téléphoniques (1 par abonné ; la 15ème ligne à 4 fils utilisant les 2 transformateurs en bas à droite. À noter la logique de commande légèrement plus complexe qu'une carte EAO5).

Coll. C. R-V.

_____

Ci-contre: 

Signalétique typique de Commutateur MT25. (Collection C. R-V.)

P44.MT25CommutateurPlaqueidentification

ImplantationTypeMT25resTT

Ci-dessus : croquis d'implantation type d'un Commutateur MT25 à Réseau de Connexion Temporel Temporel (512 MIC) (Configuration de base, la plus ancienne)

_____

(en l'espèce : Commutateur JEMMAPES 2 ET2 (AD06) ; prise de son face aux deux Calculateurs à 1 mètre. (c) C. R-V. le 15 juin 2017.)

_____

1989.12.14MT25CaptifParisCevennes

Ci-dessus : vue d'ensemble du cœur de chaîne du Commutateur MT25 captif de Paris-Cévennes ; initialement pourvu de deux Dérouleurs de Bandes Magnétiques (DBM) situés entre les 2 Calculateurs.

  • Au premier plan : bureau avec téléimprimeur télex (beige) de dialogue Homme-Machine (modèle Sagem TD30)
  • À droite : 2 consoles PUMA (PUpitre de MAintenance) couleur chocolat ;
    • Chaque PUMA permettant notamment d'arrêter et de redémarrer son calculateur rattaché, pour opération de maintenance préventive (travaux planifiés sur un calculateur) ou pour maintenance curative (suite à avarie de fonctionnement).
    • Les PUMA sont devenus obsolètes au début des années 2000, ces manœuvres pouvant désormais être réalisées par l'intermédiaire de Personal Computers.

Nota : Commutateur MT25 équipé de Calculateurs MU321.

Photographie PTT - 14 décembre 1989 - Coll. C. R-V.

_____

1989.12.14MT25CaptifParisCevennesDetails

Ci-dessus : vue de détail des deux Calculateurs MU321 et des Dérouleurs de Bandes Magnétiques (DBM) de ce même Commutateur MT25.

Photographie PTT - 14 décembre 1989 - Coll. C. R-V.

_____

1983.05MT25PhilippeAuguste2ET1ref004162

Ci-dessus : vue générale du premier Commutateur MT25 mis en service dans le monde, à Paris (75).

  • PHILIPPE-AUGUSTE 2 ET1 (AD32) - Mis en service le 15 novembre 1983 - Hors service le 14 juin 2007 - Fabricant : Thomson-CSF.
  • Nota : un banquet de 400 couverts pour fêter l'événement. En 1983, on savait vivre.

Photographie Thomson-CSF  - Mai 1983 - Coll. Orange DANP

_____

1983.12MT25PhaNum015576

Ci-dessus : Technicien en cours d'intervention sur une Unité de Raccordement d'Abonnés du Commutateur PHILIPPE-AUGUSTE 2 ET1 (AD32).

  • Mis en service le 15 novembre 1983 - Hors service le 14 juin 2007 - Fabricant : Thomson-CSF.

Photographie PTT - Décembre 1983 - Coll. Orange DANP

_____

1983.12MT25PhaNum015577

Ci-dessus : Technicien en intervention sur un Télétype, en conversation avec le Commutateur MT25 - PHILIPPE-AUGUSTE 2 ET1 (AD32).

  • Technicien en intervention sur les Dérouleurs de Bandes Magnétiques d'un des Calculateurs MU320, dans la salle du Commutateur.
  • Mis en service le 15 novembre 1983 - Hors service le 14 juin 2007 - Fabricant : Thomson-CSF.

Photographie PTT - Décembre 1983 - Coll. Orange DANP

_____

1985.10.25NNT2MT25Pha2ET1num3366.10

Ci-dessus : M. le Ministre-délégué aux PTT de passage au Commutateur de Paris PHILIPPE-AUGUSTE 2 ET1 (AD32), dans la nuit, après le passage à la Nouvelle Numérotation Téléphonique à 8 chiffres.

  • Est présente l'équipe de fonctionnaires de permanence pour ce basculage historique.
  • Les cadres de passage dont M. le Directeur Général des Télécommunications - Jacques Dondoux (5ème debout en partant de la gauche).
  • M. le Ministre-délégué aux PTT - Louis Mexandeau (7ème en partant de la gauche) en conversation avec M. le Directeur des Télécommunications d'Île-de-France (DTIF) - Albert Delbouys (8ème en partant de la gauche).
  • À noter que M. Louis Mexandeau a tenu, en tant que ministre socialiste, d'aller visiter au moins un Centre Téléphonique d'un arrondissement populaire, pour équilibrer le fait que le Centre National de Coordination soit installé à Paris-Murat, dans le XVIème arrondissement de Paris, réputé comme un des plus huppés ;  et pouvoir ainsi constater que l'entrée dans la Nouvelle Numérotation à 8 chiffres s'y déroulait tout aussi bien.

Photographie PTT - 25 octobre 1985 - Coll. Orange DANP

_____

  • 2022.01.14PhilippeAuguste3ET2MT25Ref143576-40
  • 2022.01.14PhilippeAuguste3ET2MT25Ref143576-41
  • 2022.01.14PhilippeAuguste3ET2MT25Ref143576-42
  • 2022.01.14PhilippeAuguste3ET2MT25Ref143576-43
  • 2022.01.14PhilippeAuguste3ET2MT25Ref143576-44
  • 2022.01.14PhilippeAuguste3ET2MT25Ref143576-45
  • 2022.01.14PhilippeAuguste3ET2MT25Ref143576-46
  • 2022.01.14PhilippeAuguste3ET2MT25Ref143576-47
  • 2022.01.14PhilippeAuguste3ET2MT25Ref143576-48
  • 2022.01.14PhilippeAuguste3ET2MT25Ref143576-49
  • 2022.01.14PhilippeAuguste3ET2MT25Ref143576-50
  • 2022.01.14PhilippeAuguste3ET2MT25Ref143576-51
  • 2022.01.14PhilippeAuguste3ET2MT25Ref143576-52
  • 2022.01.14PhilippeAuguste3ET2MT25Ref143576-53
  • 2022.01.14PhilippeAuguste3ET2MT25Ref143576-54
  • 2022.01.14PhilippeAuguste3ET2MT25Ref143576-55
  • 2022.01.14PhilippeAuguste3ET2MT25Ref143576-56
  • 2022.01.14PhilippeAuguste3ET2MT25Ref143576-57
  • 2022.01.14PhilippeAuguste3ET2MT25Ref143576-58
  • 2022.01.14PhilippeAuguste3ET2MT25Ref143576-59

Ci-dessus : second Commutateur MT25 sis au Centre Téléphonique Philippe-Auguste, à Paris (75).

  • PHILIPPE-AUGUSTE 3 ET2 (AD33) - Mis en service le 4 juin 1991 - Hors service le 5 février 2019 - Fabricant : Alcatel/Thomson. 
  • Commutateur MT25 le plus récemment mis en service dans Paris intra-muros.

Photographies C. R-V. - 14 janvier 2022 - Coll. C. R-V/Orange DANP

_____

  • 2022.01.20Tuileries4ET2MT25Ref143677-43
  • 2022.01.20Tuileries4ET2MT25Ref143677-44
  • 2022.01.20Tuileries4ET2MT25Ref143677-46
  • 2022.01.20Tuileries4ET2MT25Ref143677-48
  • 2022.01.20Tuileries4ET2MT25Ref143677-53
  • 2022.01.20Tuileries4ET2MT25Ref143677-55
  • 2022.01.20Tuileries4ET2MT25Ref143677-57
  • 2022.01.20Tuileries4ET2MT25Ref143677-01
  • 2022.01.20Tuileries4ET2MT25Ref143677-03
  • 2022.01.20Tuileries4ET2MT25Ref143677-06
  • 2022.01.20Tuileries4ET2MT25Ref143677-07
  • 2022.01.20Tuileries4ET2MT25Ref143677-08
  • 2022.01.20Tuileries4ET2MT25Ref143677-09
  • 2022.01.20Tuileries4ET2MT25Ref143677-41

Ci-dessus : 1er Commutateur MT25 sis au Centre Téléphonique Tuileries, à Paris (75).

  • TUILERIES 4 ET2 (AE25) - Mis en Service le 27 novembre 1985 - Hors Service le 15 novembre 2005 - Fabricant : Thomson-CSF

Photographies C. R-V. – 20 janvier 2022 - Coll. C. R-V/Orange DANP

_____

  • 2022.01.20Tuileries5ET3MT25Ref143678-38
  • 2022.01.20Tuileries5ET3MT25Ref143678-39
  • 2022.01.20Tuileries5ET3MT25Ref143678-40
  • 2022.01.20Tuileries5ET3MT25Ref143678-41
  • 2022.01.20Tuileries5ET3MT25Ref143678-42
  • 2022.01.20Tuileries5ET3MT25Ref143678-43
  • 2022.01.20Tuileries5ET3MT25Ref143678-45
  • 2022.01.20Tuileries5ET3MT25Ref143678-47
  • 2022.01.20Tuileries5ET3MT25Ref143678-49
  • 2022.01.20Tuileries5ET3MT25Ref143678-51
  • 2022.01.20Tuileries5ET3MT25Ref143678-53
  • 2022.01.20Tuileries5ET3MT25Ref143678-55
  • 2022.01.20Tuileries5ET3MT25Ref143678-57
  • 2022.01.20Tuileries5ET3MT25Ref143678-59

Ci-dessus : 2ème Commutateur MT25 sis au Centre Téléphonique Tuileries, à Paris (75).

  • TUILERIES 5 ET3 (AE26) - Mis en Service le 21 juillet 1987 - Hors Service le 14 octobre 1999 - Fabricant : Alcatel/Thomson

Photographies C. R-V. – 20 janvier 2022 - Coll. C. R-V/Orange DANP

_____

  • 2022.01.20Tuileries6ET4MT25Ref143679-41
  • 2022.01.20Tuileries6ET4MT25Ref143679-42
  • 2022.01.20Tuileries6ET4MT25Ref143679-44
  • 2022.01.20Tuileries6ET4MT25Ref143679-46
  • 2022.01.20Tuileries6ET4MT25Ref143679-48
  • 2022.01.20Tuileries6ET4MT25Ref143679-50
  • 2022.01.20Tuileries6ET4MT25Ref143679-52
  • 2022.01.20Tuileries6ET4MT25Ref143679-54
  • 2022.01.20Tuileries6ET4MT25Ref143679-56
  • 2022.01.20zTuileries6ET4MT25Ref143679-05
  • 2022.01.20zTuileries6ET4MT25Ref143679-08
  • 2022.01.20zTuileries6ET4MT25Ref143679-13
  • 2022.01.20zTuileries6ET4MT25Ref143679-14
  • 2022.01.20zTuileries6ET4MT25Ref143679-40

Ci-dessus : 3ème Commutateur MT25 sis au Centre Téléphonique Tuileries, à Paris (75).

  • TUILERIES 6 ET4 (AE27) -Mis en Service le 15 mars 1989 - Hors Service le 26 septembre 2017 - Fabricant : Alcatel/Thomson
  • On déplorera la dégradation de l'éclairage.

Photographies C. R-V. – 20 janvier 2022 - Coll. C. R-V/Orange DANP

_____

  • 2021.09.28Berny2ET1Ref142979-02
  • 2021.09.28Berny2ET1Ref142979-03
  • 2021.09.28Berny2ET1Ref142979-05
  • 2021.09.28Berny2ET1Ref142979-06
  • 2021.09.28Berny2ET1Ref142979-19
  • 2021.09.28Berny2ET1Ref142979-20
  • 2021.09.28Berny2ET1Ref142979-21
  • 2021.09.28Berny2ET1Ref142979-22
  • 2021.09.28Berny2ET1Ref142979-25
  • 2021.09.28Berny2ET1Ref142979-34
  • 2021.09.28Berny2ET1Ref142979-39
  • 2021.09.28Berny2ET1Ref142979-40
  • 2021.09.28Berny2ET1DSC00759
  • 2021.09.28Berny2ET1DSC00764

Ci-dessus : Commutateur MT25 sis au Centre Téléphonique Berny, à Antony (92).

  • BERNY 2 ET1 (CB13), premier MT25 commandé en France le 20 avril 1979, et second mis en service dans le monde.
  • Mis en service le 6 décembre 1983 - Hors service le 15 mars 2016 - Fabricant : Thomson-CSF.
  • Les Calculateurs A et B dans leur ultime version MU322 après leur arrêt définitif survenu le 15 mars 2016.

Photographies C. R-V. - 28 septembre 2021 - Coll. C. R-V/Orange DANP

_____

  • 2022.01.18Berny2ET1MT25Ref143625-01
  • 2022.01.18Berny2ET1MT25Ref143625-02
  • 2022.01.18Berny2ET1MT25Ref143625-04
  • 2022.01.18Berny2ET1MT25Ref143625-05
  • 2022.01.18Berny2ET1MT25Ref143625-06
  • 2022.01.18Berny2ET1MT25Ref143625-07
  • 2022.01.18Berny2ET1MT25Ref143625-08
  • 2022.01.18Berny2ET1MT25Ref143625-09
  • 2022.01.18Berny2ET1MT25Ref143625-10
  • 2022.01.18Berny2ET1MT25Ref143625-11
  • 2022.01.18Berny2ET1MT25Ref143625-12
  • 2022.01.18Berny2ET1MT25Ref143625-13
  • 2022.01.18Berny2ET1MT25Ref143625-14
  • 2022.01.18Berny2ET1MT25Ref143625-15
  • 2022.01.18Berny2ET1MT25Ref143625-16
  • 2022.01.18Berny2ET1MT25Ref143625-17
  • 2022.01.18Berny2ET1MT25Ref143625-18
  • 2022.01.18Berny2ET1MT25Ref143625-19
  • 2022.01.18Berny2ET1MT25Ref143625-20
  • 2022.01.18Berny2ET1MT25Ref143625-21

Ci-dessus : Commutateur MT25 sis au Centre Téléphonique Berny, à Antony (92).

  • BERNY 2 ET1 (CB13), premier MT25 commandé en France le 20 avril 1979, et second mis en service dans le monde.
  • Mis en service le 6 décembre 1983 - Hors service le 15 mars 2016 - Fabricant : Thomson-CSF.
  • Les Calculateurs A et B dans leur ultime version MU322 après leur arrêt définitif survenu le 15 mars 2016.

Photographies C. R-V. - 18 janvier 2022 - Coll. C. R-V/Orange DANP

_____

1985.10.25NNT2Villette3ET1MT25num3414

Ci-dessus, derrière les vitres : les deux Calculateurs Centralisés du Commutateur MT25 sis à Pantin (93).

  • VILLETTE 3 ET1 (BC93) - Mis en service le 19 décembre 1984 - Hors service le 29 mars 2011 - Fabricant : Thomson-CSF.
  • Inspecteur en "conversation intime" avec son Commutateur MT25 via le téléscripteur, le soir du passage à la Nouvelle Numérotation à 8 chiffres. 
  • À cet instant, à 23H00, l'Inspecteur envoie l'ordre au MT25 de Pantin de passer à la nouvelle numérotation à 8 chiffres.

Photographie PTT - 25 octobre 1985 - Coll. Orange DANP

_____

1985.10.25NNT2Villette3ET1MT25num3416

Ci-dessus : salle d'exploitation très animée le soir du passage à la Nouvelle Numérotation à 8 chiffres du Commutateur MT25 - VILLETTE 3 ET1 (sis à Pantin).

  • derrière les vitres : les deux Calculateurs Centralisés du Commutateur MT25- VILLETTE 3 ET1 (BC93) - mis en service le 19 décembre 1984 - hors service le 29 mars 2011 - fabricant : Thomson-CSF.

Photographie - 25 octobre 1985 - Coll. Orange DANP

_____

  • 2022.06.14PlaisirA2MT25Ref145028-01
  • 2022.06.14PlaisirA2MT25Ref145028-02
  • 2022.06.14PlaisirA2MT25Ref145028-04
  • 2022.06.14PlaisirA2MT25Ref145028-06
  • 2022.06.14PlaisirA2MT25Ref145028-08
  • 2022.06.14PlaisirA2MT25Ref145028-10
  • 2022.06.14PlaisirA2MT25Ref145028-12
  • 2022.06.14PlaisirA2MT25Ref145028-14
  • 2022.06.14PlaisirA2MT25Ref145028-16
  • 2022.06.14PlaisirA2MT25Ref145028-18
  • 2022.06.14PlaisirA2MT25Ref145028-20
  • 2022.06.14PlaisirA2MT25Ref145028-22
  • 2022.06.14PlaisirA2MT25Ref145028-24
  • 2022.06.14PlaisirA2MT25Ref145028-26
  • 2022.06.14PlaisirA2MT25Ref145028-28
  • 2022.06.14PlaisirA2MT25Ref145028-30

Ci-dessus : Commutateur MT25 sis au Centre Téléphonique Plaisir A, à Plaisir (78).

  • PLAISIR A2 (WF12) - Mis en service le 11 décembre 1984 - Hors service le 15 novembre 2010 - Fabricant Thomson-CSF.
  • Équipé de Calculateurs centralisés de type MU321.
  • La construction est assez inhabituelle, étant donné que les Unités de Raccordement d'Abonnés (URA2G et CSN d'extension) ne sont pas placées derrière les organes nobles (Calculateurs et Réseau de Connexion), mais à la gauche de ces organes.

Photographies C. R-V. - 14 juin 2022 - Coll. C. R-V/Orange DANP

_____

1988.01HorlogeMT20PastourelleCTS2

Ci-dessus : technicien de commutation devant la baie Horloge (HMC01) du Commutateur MT25 sis au Centre Téléphonique Turbigo, à Paris (75). 

  • TURBIGO 4 ET1 (AE34) - Mis en service le 30 septembre 1987 - Hors service le 16 juin 2015 - Fabricant : Thomson-CSF.
  • Comme toute machine électronique informatisée, un Commutateur MT25 a besoin d'une horloge pour fonctionner. Dans les MT25, l'horloge est "tripliquée" pour une sécurité renforcée.

Photographie PTT - 26 janvier 1988 - Coll. C. R-V.

_____

  • 2022.01.25Turbigo4ET1MT25aRef143692-30
  • 2022.01.25Turbigo4ET1MT25aRef143692-31
  • 2022.01.25Turbigo4ET1MT25aRef143692-32
  • 2022.01.25Turbigo4ET1MT25aRef143692-33
  • 2022.01.25Turbigo4ET1MT25aRef143692-34
  • 2022.01.25Turbigo4ET1MT25aRef143692-35
  • 2022.01.25Turbigo4ET1MT25aRef143692-36
  • 2022.01.25Turbigo4ET1MT25aRef143692-37
  • 2022.01.25Turbigo4ET1MT25aRef143692-38
  • 2022.01.25Turbigo4ET1MT25aRef143692-39
  • 2022.01.25Turbigo4ET1MT25aRef143692-40
  • 2022.01.25Turbigo4ET1MT25aRef143692-41
  • 2022.01.25Turbigo4ET1MT25aRef143692-42
  • 2022.01.25Turbigo4ET1MT25aRef143692-43
  • 2022.01.25Turbigo4ET1MT25aRef143692-44
  • 2022.01.25Turbigo4ET1MT25aRef143692-45
  • 2022.01.25Turbigo4ET1MT25bRef143692-06
  • 2022.01.25Turbigo4ET1MT25bRef143692-18
  • 2022.01.25Turbigo4ET1MT25bRef143692-46
  • 2022.01.25Turbigo4ET1MT25bRef143692-47

Ci-dessus : Commutateur MT25 sis au Centre Téléphonique Turbigo, à Paris (75).

  • TURBIGO 4 ET1 (AE34) - Mis en service le 30 septembre 1987 - Hors service le 16 juin 2015 - Fabricant Thomson-CSF.
  • L'ouverture des Calculateurs centralisés révèle que les alimentations ont été récupérées comme pièces de rechange, mais les cartes des Calculateurs MU321 sont demeurées en place.

Photographies C. R-V. - 25 janvier 2022 - Coll. C. R-V/Orange DANP

_____

  • 2021.09.29Mna2ET1DSC01962
  • 2021.09.29Mna2ET1DSC02013
  • 2021.09.29Mna2ET1Ref143039-03
  • 2021.09.29Mna2ET1Ref143039-05
  • 2021.09.29Mna2ET1Ref143039-08
  • 2021.09.29Mna2ET1Ref143039-12
  • 2021.09.29Mna2ET1Ref143039-13
  • 2021.09.29Mna2ET1Ref143039-18
  • 2021.09.29Mna2ET1Ref143039-45
  • 2021.09.29Mna2ET1Ref143039-46
  • 2021.09.29Mna2ET1Ref143039-68
  • 2021.09.29Mna2ET1Ref143039-76
  • 2021.09.29Mna2ET1Ref143039-80
  • 2021.09.29Mna2ET1Ref143039-81

Ci-dessus : premier Commutateur MT25 sis au Centre Téléphonique Masséna, à Paris (75).

  • MASSÉNA 2 ET1 (AC82) - Mis en service le 23 mars 1988 - Hors service le 2 octobre 2012 - Fabricant : CGCT.
  • En général, le calculateur de droite est le calculateur B, mais la situation est inversée dans ce cas.
  • En effet, le Calculateur A est toujours placé du côté de l'arrivée de l'alimentation en énergie, cette arrivée étant en général située du côté gauche de la salle mais qui dans ce cas est située du côté droit, ce qui explique cette inversion.

Photographies C. R-V - 29 septembre 2021 - Coll. C. R-V/Orange DANP

_____

  • 2022.01.05Diderot4ET1MT25aRef143481-01
  • 2022.01.05Diderot4ET1MT25bRef143481-02
  • 2022.01.05Diderot4ET1MT25cRef143481-03
  • 2022.01.05Diderot4ET1MT25dRef143481-04
  • 2022.01.05Diderot4ET1MT25eRef143481-05
  • 2022.01.05Diderot4ET1MT25fRef143481-06
  • 2022.01.05Diderot4ET1MT25gRef143481-07
  • 2022.01.05Diderot4ET1MT25hRef143481-19
  • 2022.01.05Diderot4ET1MT25iRef143481-08
  • 2022.01.05Diderot4ET1MT25jRef143481-09
  • 2022.01.05Diderot4ET1MT25kRef143481-10
  • 2022.01.05Diderot4ET1MT25lRef143481-11
  • 2022.01.05Diderot4ET1MT25mRef143481-12
  • 2022.01.05Diderot4ET1MT25nRef143481-13

Ci-dessus : Commutateur MT25 sis au Centre Téléphonique Diderot, à Paris (75).

  • DIDEROT 4 ET1 (AB94) - Mis en service le 10 septembre 1985 - Hors service le 11 juin 2013 - Fabricant Thomson-CSF.
  • L'ouverture des Calculateurs centralisés révèle que leurs cartes ont été récupérées comme pièces de rechange.

Photographies C. R-V. - 5 janvier 2022 - Coll. C. R-V/Orange DANP

_____

  • 2022.01.06Murat2ET1MT25aRef143535-28
  • 2022.01.06Murat2ET1MT25bRef143535-29
  • 2022.01.06Murat2ET1MT25cRef143535-30
  • 2022.01.06Murat2ET1MT25dRef143535-31
  • 2022.01.06Murat2ET1MT25eRef143535-32
  • 2022.01.06Murat2ET1MT25fRef143535-33
  • 2022.01.06Murat2ET1MT25gRef143535-34
  • 2022.01.06Murat2ET1MT25hRef143535-35
  • 2022.01.06Murat2ET1MT25iRef143535-38
  • 2022.01.06Murat2ET1MT25jRef143535-39
  • 2022.01.06Murat2ET1MT25kRef143535-40
  • 2022.01.06Murat2ET1MT25lRef143535-41
  • 2022.01.06Murat2ET1MT25mRef143535-02
  • 2022.01.06Murat2ET1MT25nRef143535-03

Ci-dessus : Commutateur MT25 sis au Centre Téléphonique Murat, à Paris (75).

  • MURAT 2 ET1 (AD02) - Mis en service le 11 janvier 1990 - Hors service le 9 décembre 2014 - Fabricant Alcatel/Thomson.
  • Un autocommutateur fiable que je voyais régulièrement, jusqu'à son arrêt définitif.

Photographies C. R-V. - 6 janvier 2022 - Coll. C. R-V/Orange DANP

_____

01MT25BeaujonAB33

Ci-dessus : vue partielle du premier Commutateur MT25 sis au Centre Téléphonique Beaujon, à Paris (75).

  • BEAUJON 3 ET1 (AB33) - Mis en service le 10 juillet 1985 - Hors service le 17 novembre 2015 - Fabricant : Thomson-CSF.
  • Visibles, les deux calculateurs, notés A et B ; 
  • À leur droite, l'armoire contenant les anciennes bandes magnétiques ; 
  • Au fond, une armoire contenant un tiers de la documentation papier contractuelle et derrière et plus à droite, une Unité de SIgnalisation. 

Photographie C. R-V. - 28 janvier 2016 - C. R-V.

_____

BaiesSignaleursBeaujon3ET1

Ci-dessus : 3 baies de Signaleurs du Commutateur MT25 - BEAUJON 3 ET1 (AB33).

Photographie C. R-V. - 28 janvier 2016 - C. R-V.

_____

  • 2022.01.10Beaujon3ET1MT25Ref143548-01
  • 2022.01.10Beaujon3ET1MT25Ref143548-02
  • 2022.01.10Beaujon3ET1MT25Ref143548-03
  • 2022.01.10Beaujon3ET1MT25Ref143548-04
  • 2022.01.10Beaujon3ET1MT25Ref143548-05
  • 2022.01.10Beaujon3ET1MT25Ref143548-06
  • 2022.01.10Beaujon3ET1MT25Ref143548-07
  • 2022.01.10Beaujon3ET1MT25Ref143548-08
  • 2022.01.10Beaujon3ET1MT25Ref143548-09
  • 2022.01.10Beaujon3ET1MT25Ref143548-10
  • 2022.01.10Beaujon3ET1MT25Ref143548-11
  • 2022.01.10Beaujon3ET1MT25Ref143548-12
  • 2022.01.10Beaujon3ET1MT25Ref143548-13
  • 2022.01.10Beaujon3ET1MT25Ref143548-14

Ci-dessus : premier Commutateur MT25 sis au Centre Téléphonique Beaujon, à Paris (75).

  • BEAUJON 3 ET1 (AB33) - Mis en service le 10 juillet 1985 - Hors service le 17 novembre 2015 - Fabricant : Thomson-CSF.
  • À date, l'autocommutateur se délabre, et cela est bien attristant pour moi qui ai travaillé durant de nombreuses années pour celui-ci. Sera bientôt envoyé à la casse courant 2022.

Photographies C. R-V. - 10 janvier 2022 - Coll. C. R-V/Orange DANP

_____

  • 2022.04.29Daguerre2ET1MT25Ref144602-01
  • 2022.04.29Daguerre2ET1MT25Ref144602-02
  • 2022.04.29Daguerre2ET1MT25Ref144602-03
  • 2022.04.29Daguerre2ET1MT25Ref144602-04
  • 2022.04.29Daguerre2ET1MT25Ref144602-05
  • 2022.04.29Daguerre2ET1MT25Ref144602-06
  • 2022.04.29Daguerre2ET1MT25Ref144602-07
  • 2022.04.29Daguerre2ET1MT25Ref144602-08
  • 2022.04.29Daguerre2ET1MT25Ref144602-09
  • 2022.04.29Daguerre2ET1MT25Ref144602-10
  • 2022.04.29Daguerre2ET1MT25Ref144602-11
  • 2022.04.29Daguerre2ET1MT25Ref144602-12
  • 2022.04.29Daguerre2ET1MT25Ref144602-13
  • 2022.04.29Daguerre2ET1MT25Ref144602-14
  • 2022.04.29Daguerre2ET1MT25Ref144602-15
  • 2022.04.29Daguerre2ET1MT25Ref144602-16
  • 2022.04.29Daguerre2ET1MT25Ref144602-17
  • 2022.04.29Daguerre2ET1MT25Ref144602-18
  • 2022.04.29Daguerre2ET1MT25Ref144602-19
  • 2022.04.29Daguerre2ET1MT25Ref144602-20
  • 2022.04.29Daguerre2ET1MT25Ref144602-21
  • 2022.04.29Daguerre2ET1MT25Ref144602-22

Ci-dessus : Commutateur MT25 sis au Centre Téléphonique Daguerre, au Perreux-sur-Marne (94).

  • DAGUERRE 2 ET1 (DB72) - Mis en service le 11 février 1988 - Hors service le 9 février 2016 - Fabricant CGCT.

Photographies C. R-V. - 29 avril 2022 - Coll. C. R-V/Orange DANP

_____

  • 2022.04.21Montfermeil2ET1MT25Ref144544-01
  • 2022.04.21Montfermeil2ET1MT25Ref144544-02
  • 2022.04.21Montfermeil2ET1MT25Ref144544-03
  • 2022.04.21Montfermeil2ET1MT25Ref144544-04
  • 2022.04.21Montfermeil2ET1MT25Ref144544-05
  • 2022.04.21Montfermeil2ET1MT25Ref144544-06
  • 2022.04.21Montfermeil2ET1MT25Ref144544-07
  • 2022.04.21Montfermeil2ET1MT25Ref144544-08
  • 2022.04.21Montfermeil2ET1MT25Ref144544-09
  • 2022.04.21Montfermeil2ET1MT25Ref144544-10
  • 2022.04.21Montfermeil2ET1MT25Ref144544-12
  • 2022.04.21Montfermeil2ET1MT25Ref144544-14
  • 2022.04.21Montfermeil2ET1MT25Ref144544-16
  • 2022.04.21Montfermeil2ET1MT25Ref144544-18

Ci-dessus : Commutateur MT25 sis au Centre Téléphonique de Montfermeil (93).

  • MONTFERMEIL 2 ET1 (BB93) - Mis en service le 3 août 1988 - Hors service le 29 septembre 2009 - Fabricant Thomson CSF.

Photographies C. R-V. - 21 avril 2022 - Coll. C. R-V/Orange DANP

_____

  • 2022.04.15ChellesB3MT25Ref144489-02
  • 2022.04.15ChellesB3MT25Ref144489-04
  • 2022.04.15ChellesB3MT25Ref144489-06
  • 2022.04.15ChellesB3MT25Ref144489-08
  • 2022.04.15ChellesB3MT25Ref144489-10
  • 2022.04.15ChellesB3MT25Ref144489-12
  • 2022.04.15ChellesB3MT25Ref144489-14
  • 2022.04.15ChellesB3MT25Ref144489-16
  • 2022.04.15ChellesB3MT25Ref144489-17
  • 2022.04.15ChellesB3MT25Ref144489-18
  • 2022.04.15ChellesB3MT25Ref144489-20
  • 2022.04.15ChellesB3MT25Ref144489-26
  • 2022.04.15ChellesB3MT25Ref144489-27
  • 2022.04.15ChellesB3MT25Ref144489-28

Ci-dessus : Commutateur MT25 sis au Centre Téléphonique de Chelles (77).

  • CHELLES B3 (ED13) - Mis en service le 7 novembre 1991 - Hors service le 24 novembre 2005 - Fabricant Thomson CSF.

Photographies C. R-V. - 15 avril 2022 - Coll. C. R-V/Orange DANP

_____

  • 2022.03.02Champigny2ET1MT25Ref144372-01
  • 2022.03.02Champigny2ET1MT25Ref144372-02
  • 2022.03.02Champigny2ET1MT25Ref144372-03
  • 2022.03.02Champigny2ET1MT25Ref144372-04
  • 2022.03.02Champigny2ET1MT25Ref144372-05
  • 2022.03.02Champigny2ET1MT25Ref144372-06
  • 2022.03.02Champigny2ET1MT25Ref144372-07
  • 2022.03.02Champigny2ET1MT25Ref144372-08
  • 2022.03.02Champigny2ET1MT25Ref144372-09
  • 2022.03.02Champigny2ET1MT25Ref144372-10
  • 2022.03.02Champigny2ET1MT25Ref144372-11
  • 2022.03.02Champigny2ET1MT25Ref144372-12
  • 2022.03.02Champigny2ET1MT25Ref144372-13
  • 2022.03.02Champigny2ET1MT25Ref144372-14
  • 2022.03.02Champigny2ET1MT25Ref144372-15
  • 2022.03.02Champigny2ET1MT25Ref144372-16
  • 2022.03.02Champigny2ET1MT25Ref144372-17
  • 2022.03.02Champigny2ET1MT25Ref144372-18
  • 2022.03.02Champigny2ET1MT25Ref144372-19
  • 2022.03.02Champigny2ET1MT25Ref144372-20
  • 2022.03.02Champigny2ET1MT25Ref144372-21
  • 2022.03.02Champigny2ET1MT25Ref144372-22
  • 2022.03.02Champigny2ET1MT25Ref144372-23
  • 2022.03.02Champigny2ET1MT25Ref144372-24

Ci-dessus : Commutateur MT25 sis au Centre Téléphonique Champigny, à Champigny-sur-Marne (94).

  • CHAMPIGNY 2 ET1 (DB72) - Mis en service le 20 juillet 1988 - Hors service le 12 mars 2019 - Fabricant Thomson-CSF.

Photographies C. R-V. - 2 mars 2022 - Coll. C. R-V/Orange DANP

_____

  • 2022.02.14SaintOuen1ET1MT25Ref144062-01
  • 2022.02.14SaintOuen1ET1MT25Ref144062-02
  • 2022.02.14SaintOuen1ET1MT25Ref144062-03
  • 2022.02.14SaintOuen1ET1MT25Ref144062-04
  • 2022.02.14SaintOuen1ET1MT25Ref144062-05
  • 2022.02.14SaintOuen1ET1MT25Ref144062-06
  • 2022.02.14SaintOuen1ET1MT25Ref144062-07
  • 2022.02.14SaintOuen1ET1MT25Ref144062-08
  • 2022.02.14SaintOuen1ET1MT25Ref144062-09
  • 2022.02.14SaintOuen1ET1MT25Ref144062-10
  • 2022.02.14SaintOuen1ET1MT25Ref144062-11
  • 2022.02.14SaintOuen1ET1MT25Ref144062-12
  • 2022.02.14SaintOuen1ET1MT25Ref144062-13
  • 2022.02.14SaintOuen1ET1MT25Ref144062-14
  • 2022.02.14SaintOuen1ET1MT25Ref144062-15
  • 2022.02.14SaintOuen1ET1MT25Ref144062-16
  • 2022.02.14SaintOuen1ET1MT25Ref144062-17
  • 2022.02.14SaintOuen1ET1MT25Ref144062-18

Ci-dessus : Commutateur MT25 sis au Centre Téléphonique de Saint-Ouen-sur-Seine (93).

  • SAINT-OUEN 1 ET1 (BC66) - Mis en service le 17 décembre 1987 - Hors service le 6 octobre 2015 - Fabricant Thomson-CSF.

Photographies C. R-V. - 14 février 2022 - Coll. C. R-V/Orange DANP

_____

  • 2022.02.11BuresB2MT25Ref144050-01
  • 2022.02.11BuresB2MT25Ref144050-02
  • 2022.02.11BuresB2MT25Ref144050-03
  • 2022.02.11BuresB2MT25Ref144050-04
  • 2022.02.11BuresB2MT25Ref144050-05
  • 2022.02.11BuresB2MT25Ref144050-06
  • 2022.02.11BuresB2MT25Ref144050-07
  • 2022.02.11BuresB2MT25Ref144050-08
  • 2022.02.11BuresB2MT25Ref144050-09
  • 2022.02.11BuresB2MT25Ref144050-10
  • 2022.02.11BuresB2MT25Ref144050-11
  • 2022.02.11BuresB2MT25Ref144050-12
  • 2022.02.11BuresB2MT25Ref144050-13
  • 2022.02.11BuresB2MT25Ref144050-14
  • 2022.02.11BuresB2MT25Ref144050-15
  • 2022.02.11BuresB2MT25Ref144050-16

Ci-dessus : Commutateur MT25 sis au Centre Téléphonique Bures, à Bures-sur-Yvette (91).

  • BURES B2 (SD42) - Mis en service le 17 septembre 1987 - Hors service le 23 avril 2013 - Fabricant Thomson-CSF.

Photographies C. R-V. - 11 février 2022 - Coll. C. R-V/Orange DANP

_____

  • 2022.02.11LongjumeauC2MT25Ref144039-01
  • 2022.02.11LongjumeauC2MT25Ref144039-02
  • 2022.02.11LongjumeauC2MT25Ref144039-03
  • 2022.02.11LongjumeauC2MT25Ref144039-04
  • 2022.02.11LongjumeauC2MT25Ref144039-05
  • 2022.02.11LongjumeauC2MT25Ref144039-06
  • 2022.02.11LongjumeauC2MT25Ref144039-07
  • 2022.02.11LongjumeauC2MT25Ref144039-08
  • 2022.02.11LongjumeauC2MT25Ref144039-09
  • 2022.02.11LongjumeauC2MT25Ref144039-10
  • 2022.02.11LongjumeauC2MT25Ref144039-12
  • 2022.02.11LongjumeauC2MT25Ref144039-14
  • 2022.02.11LongjumeauC2MT25Ref144039-16
  • 2022.02.11LongjumeauC2MT25Ref144039-18

Ci-dessus : Commutateur MT25 sis au Centre Téléphonique de Longjumeau (91).

  • LONGJUMEAU C2 (SD72) - Mis en service le 4 février 1987 - Hors service le 18 mars 2008 - Fabricant Thomson-CSF.

Photographies C. R-V. - 11 février 2022 - Coll. C. R-V/Orange DANP

_____

  • 2022.02.09Chevilly3ET2MT25Ref143977-01
  • 2022.02.09Chevilly3ET2MT25Ref143977-02
  • 2022.02.09Chevilly3ET2MT25Ref143977-04
  • 2022.02.09Chevilly3ET2MT25Ref143977-06
  • 2022.02.09Chevilly3ET2MT25Ref143977-07
  • 2022.02.09Chevilly3ET2MT25Ref143977-10
  • 2022.02.09Chevilly3ET2MT25Ref143977-12
  • 2022.02.09Chevilly3ET2MT25Ref143977-14
  • 2022.02.09Chevilly3ET2MT25Ref143977-16
  • 2022.02.09Chevilly3ET2MT25Ref143977-18
  • 2022.02.09Chevilly3ET2MT25Ref143977-20
  • 2022.02.09Chevilly3ET2MT25Ref143977-22
  • 2022.02.09Chevilly3ET2MT25Ref143977-24
  • 2022.02.09Chevilly3ET2MT25Ref143977-26

Ci-dessus : Commutateur MT25 sis au Centre Téléphonique Chevilly, à Chevilly-Larue (94).

  • CHEVILLY 3 ET2 (DB53) - Mis en service le 4 octobre 1988 - Hors service le 26 mai 2022 - Fabricant Alcatel/Thomson.

Photographies C. R-V. - 9 février 2022 - Coll. C. R-V/Orange DANP

_____

  • 2022.02.04Rameau2ET1MT25Ref143878-01
  • 2022.02.04Rameau2ET1MT25Ref143878-02
  • 2022.02.04Rameau2ET1MT25Ref143878-03
  • 2022.02.04Rameau2ET1MT25Ref143878-04
  • 2022.02.04Rameau2ET1MT25Ref143878-05
  • 2022.02.04Rameau2ET1MT25Ref143878-06
  • 2022.02.04Rameau2ET1MT25Ref143878-07
  • 2022.02.04Rameau2ET1MT25Ref143878-08
  • 2022.02.04Rameau2ET1MT25Ref143878-09
  • 2022.02.04Rameau2ET1MT25Ref143878-10
  • 2022.02.04Rameau2ET1MT25Ref143878-11
  • 2022.02.04Rameau2ET1MT25Ref143878-12
  • 2022.02.04Rameau2ET1MT25Ref143878-13
  • 2022.02.04Rameau2ET1MT25Ref143878-14
  • 2022.02.04Rameau2ET1MT25Ref143878-15
  • 2022.02.04Rameau2ET1MT25Ref143878-16
  • 2022.02.04Rameau2ET1MT25Ref143878-17
  • 2022.02.04Rameau2ET1MT25Ref143878-18
  • 2022.02.04Rameau2ET1MT25Ref143878-19
  • 2022.02.04Rameau2ET1MT25Ref143878-20
  • 2022.02.04Rameau2ET1MT25Ref143878-21
  • 2022.02.04Rameau2ET1MT25Ref143878-22
  • 2022.02.04Rameau2ET1MT25Ref143878-23
  • 2022.02.04Rameau2ET1MT25Ref143878-24

Ci-dessus : Commutateur MT25 sis au Centre Téléphonique Rameau, à Villejuif (94).

  • RAMEAU 2 ET1 (DC43) - Mis en service le 22 avril 1986 - Hors service le 27 juin 2017 - Fabricant Thomson-CSF.

Photographies C. R-V. - 4 février 2022 - Coll. C. R-V/Orange DANP

_____

  • 2022.01.31SartrouvilleA3MT25Ref143785-01
  • 2022.01.31SartrouvilleA3MT25Ref143785-02
  • 2022.01.31SartrouvilleA3MT25Ref143785-03
  • 2022.01.31SartrouvilleA3MT25Ref143785-04
  • 2022.01.31SartrouvilleA3MT25Ref143785-05
  • 2022.01.31SartrouvilleA3MT25Ref143785-06
  • 2022.01.31SartrouvilleA3MT25Ref143785-07
  • 2022.01.31SartrouvilleA3MT25Ref143785-08
  • 2022.01.31SartrouvilleA3MT25Ref143785-09
  • 2022.01.31SartrouvilleA3MT25Ref143785-10
  • 2022.01.31SartrouvilleA3MT25Ref143785-11
  • 2022.01.31SartrouvilleA3MT25Ref143785-12
  • 2022.01.31SartrouvilleA3MT25Ref143785-13
  • 2022.01.31SartrouvilleA3MT25Ref143785-14
  • 2022.01.31SartrouvilleA3MT25Ref143785-15
  • 2022.01.31SartrouvilleA3MT25Ref143785-16
  • 2022.01.31SartrouvilleA3MT25Ref143785-17
  • 2022.01.31SartrouvilleA3MT25Ref143785-18
  • 2022.01.31SartrouvilleA3MT25Ref143785-19
  • 2022.01.31SartrouvilleA3MT25Ref143785-20
  • 2022.01.31SartrouvilleA3MT25Ref143785-21
  • 2022.01.31SartrouvilleA3MT25Ref143785-22
  • 2022.01.31SartrouvilleA3MT25Ref143785-23
  • 2022.01.31SartrouvilleA3MT25Ref143785-24

Ci-dessus : Commutateur MT25 sis au Centre Téléphonique de Sartrouville (78).

  • SARTROUVILLE A3 (WD83) - Mis en service le 3 avril 1990 - Hors service le 1er décembre 2005 - Fabricant Alcatel/Thomson.

Photographies C. R-V. - 31 janvier 2022 - Coll. C. R-V/Orange DANP

_____

  • 2022.01.26Alesia4ET2MT25Ref143722-30
  • 2022.01.26Alesia4ET2MT25Ref143722-31
  • 2022.01.26Alesia4ET2MT25Ref143722-32
  • 2022.01.26Alesia4ET2MT25Ref143722-33
  • 2022.01.26Alesia4ET2MT25Ref143722-34
  • 2022.01.26Alesia4ET2MT25Ref143722-35
  • 2022.01.26Alesia4ET2MT25Ref143722-36
  • 2022.01.26Alesia4ET2MT25Ref143722-37
  • 2022.01.26Alesia4ET2MT25Ref143722-38
  • 2022.01.26Alesia4ET2MT25Ref143722-39
  • 2022.01.26Alesia4ET2MT25Ref143722-41
  • 2022.01.26Alesia4ET2MT25Ref143722-42
  • 2022.01.26Alesia4ET2MT25Ref143722-44
  • 2022.01.26Alesia4ET2MT25Ref143722-45

Ci-dessus : second Commutateur MT25 sis au Centre Téléphonique Alésia, à Montrouge (92).

  • ALÉSIA 4 ET2 (CB07) - Mis en service le 4 janvier 1988 - Hors service le 2 avril 2019 - Fabricant Alcatel/Thomson.

Photographies C. R-V. - 26 janvier 2022 - Coll. C. R-V/Orange DANP

_____

  • 2022.01.26Alesia3ET1MT25aRef143718-40
  • 2022.01.26Alesia3ET1MT25aRef143718-41
  • 2022.01.26Alesia3ET1MT25aRef143718-42
  • 2022.01.26Alesia3ET1MT25aRef143718-43
  • 2022.01.26Alesia3ET1MT25aRef143718-44
  • 2022.01.26Alesia3ET1MT25aRef143718-45
  • 2022.01.26Alesia3ET1MT25aRef143718-46
  • 2022.01.26Alesia3ET1MT25aRef143718-47
  • 2022.01.26Alesia3ET1MT25aRef143718-48
  • 2022.01.26Alesia3ET1MT25aRef143718-49
  • 2022.01.26Alesia3ET1MT25aRef143718-50
  • 2022.01.26Alesia3ET1MT25aRef143718-51
  • 2022.01.26Alesia3ET1MT25aRef143718-52
  • 2022.01.26Alesia3ET1MT25aRef143718-53
  • 2022.01.26Alesia3ET1MT25bRef143718-01
  • 2022.01.26Alesia3ET1MT25bRef143718-02
  • 2022.01.26Alesia3ET1MT25bRef143718-03
  • 2022.01.26Alesia3ET1MT25bRef143718-04
  • 2022.01.26Alesia3ET1MT25bRef143718-05
  • 2022.01.26Alesia3ET1MT25bRef143718-06
  • 2022.01.26Alesia3ET1MT25bRef143718-07
  • 2022.01.26Alesia3ET1MT25bRef143718-08
  • 2022.01.26Alesia3ET1MT25bRef143718-09
  • 2022.01.26Alesia3ET1MT25bRef143718-23

Ci-dessus : premier Commutateur MT25 sis au Centre Téléphonique Alésia, à Montrouge (92).

  • ALÉSIA 3 ET1 (CB06) - Mis en service le 26 juin 1984 - Hors service le 17 mars 2015 - Fabricant Thomson-CSF.

Photographies C. R-V. - 26 janvier 2022 - Coll. C. R-V/Orange DANP

_____

  • 2022.01.15Pereire3ET1MT25Ref143620-32
  • 2022.01.15Pereire3ET1MT25Ref143620-33
  • 2022.01.15Pereire3ET1MT25Ref143620-34
  • 2022.01.15Pereire3ET1MT25Ref143620-35
  • 2022.01.15Pereire3ET1MT25Ref143620-36
  • 2022.01.15Pereire3ET1MT25Ref143620-37
  • 2022.01.15Pereire3ET1MT25Ref143620-38
  • 2022.01.15Pereire3ET1MT25Ref143620-39
  • 2022.01.15Pereire3ET1MT25Ref143620-40
  • 2022.01.15Pereire3ET1MT25Ref143620-41
  • 2022.01.15Pereire3ET1MT25Ref143620-42
  • 2022.01.15Pereire3ET1MT25Ref143620-43
  • 2022.01.15Pereire3ET1MT25Ref143620-44
  • 2022.01.15Pereire3ET1MT25Ref143620-45
  • 2022.01.15Pereire3ET1MT25Ref143620-46
  • 2022.01.15Pereire3ET1MT25Ref143620-47
  • 2022.01.15Pereire3ET1MT25Ref143620-48
  • 2022.01.15Pereire3ET1MT25Ref143620-49

Ci-dessus : Commutateur MT25 sis au Centre Téléphonique Péreire, à Levallois-Perret (92).

  • PÉREIRE 3 ET1 (CC73) - Mis en service le 21 mars 1989 - Hors service le 5 décembre 2017 - Fabricant Alcatel/Thomson.

Photographies C. R-V. - 15 janvier 2022 - Coll. C. R-V/Orange DANP

_____

  • 2021.10.19BougivalA3MT25Ref143194-01
  • 2021.10.19BougivalA3MT25Ref143194-02
  • 2021.10.19BougivalA3MT25Ref143194-03
  • 2021.10.19BougivalA3MT25Ref143194-05
  • 2021.10.19BougivalA3MT25Ref143194-06
  • 2021.10.19BougivalA3MT25Ref143194-07
  • 2021.10.19BougivalA3MT25Ref143194-08
  • 2021.10.19BougivalA3MT25Ref143194-09
  • 2021.10.19BougivalA3MT25Ref143194-10
  • 2021.10.19BougivalA3MT25Ref143194-11
  • 2021.10.19BougivalA3MT25Ref143194-12
  • 2021.10.19BougivalA3MT25Ref143194-13
  • 2021.10.19BougivalA3MT25Ref143194-14
  • 2021.10.19BougivalA3MT25Ref143194-15
  • 2021.10.19BougivalA3MT25Ref143194-20
  • 2021.10.19BougivalA3MT25Ref143194-24
  • 2021.10.19BougivalA3MT25Ref143194-25
  • 2021.10.19BougivalA3MT25Ref143194-26
  • 2021.10.19BougivalA3MT25Ref143194-27
  • 2021.10.19BougivalA3MT25Ref143194-28

Ci-dessus : Commutateur MT25 sis au Centre Téléphonique de Bougival (78).

  • BOUGIVAL A3 (WD12) - Mis en service le 29 juillet 1987 - Hors service le 19 mai 2015 - Fabricant Alcatel/Thomson

Photographies C. R-V. - 19 octobre 2021 - Coll. C. R-V/Orange DANP

_____

  • 2021.10.06BoisdArcyA3MT25aRef143127-29
  • 2021.10.06BoisdArcyA3MT25bRef143127-30
  • 2021.10.06BoisdArcyA3MT25cRef143127-31
  • 2021.10.06BoisdArcyA3MT25dRef143127-32
  • 2021.10.06BoisdArcyA3MT25eRef143127-33
  • 2021.10.06BoisdArcyA3MT25fRef143127-34
  • 2021.10.06BoisdArcyA3MT25gRef143127-35
  • 2021.10.06BoisdArcyA3MT25hRef143127-36
  • 2021.10.06BoisdArcyA3MT25iRef143127-03
  • 2021.10.06BoisdArcyA3MT25jRef143127-04
  • 2021.10.06BoisdArcyA3MT25kRef143127-05
  • 2021.10.06BoisdArcyA3MT25lRef143127-06
  • 2021.10.06BoisdArcyA3MT25mRef143127-01
  • 2021.10.06BoisdArcyA3MT25nRef143127-11
  • 2021.10.06BoisdArcyA3MT25oRef143127-19
  • 2021.10.06BoisdArcyA3MT25pRef143127-23
  • 2021.10.06BoisdArcyA3MT25qRef143127-24
  • 2021.10.06BoisdArcyA3MT25rRef143127-28
  • 2021.10.06BoisdArcyA3MT25sRef143127-39
  • 2021.10.06BoisdArcyA3MT25tRef143127-40
  • 2021.10.06BoisdArcyA3MT25uRef143127-41
  • 2021.10.06BoisdArcyA3MT25vRef143127-42
  • 2021.10.06BoisdArcyA3MT25wRef143127-43
  • 2021.10.06BoisdArcyA3MT25xRef143127-44

Ci-dessus : Commutateur MT25 sis au Centre Téléphonique de Bois d'Arcy (78).

  • BOIS D'ARCY A3 (WE53) - Mis en service le 7 janvier 1987 - Hors service le 12 mai 2009 - Fabricant Thomson-CSF.
  • Fait particulier, si le Réseau de Connexion est, comme de coutume, implanté derrière les deux Calculateurs A et B, en revanche, les Unités de Raccordement d'Abonnés (URA2G et CSN), sont implantées à l'avant des deux Calculateurs !

Photographies C. R-V. - 6 octobre 2021 - Coll. C. R-V/Orange DANP

_____

  • 2021.09.16Charlebourg3ET1MT25aRef142842-01
  • 2021.09.16Charlebourg3ET1MT25bDSC06756
  • 2021.09.16Charlebourg3ET1MT25cRef142842-02
  • 2021.09.16Charlebourg3ET1MT25dRef142842-03
  • 2021.09.16Charlebourg3ET1MT25eRef142842-04
  • 2021.09.16Charlebourg3ET1MT25fRef142842-05
  • 2021.09.16Charlebourg3ET1MT25gRef142842-06
  • 2021.09.16Charlebourg3ET1MT25hRef142842-07
  • 2021.09.16Charlebourg3ET1MT25iRef142842-12
  • 2021.09.16Charlebourg3ET1MT25jRef142842-13
  • 2021.09.16Charlebourg3ET1MT25kRef142842-20
  • 2021.09.16Charlebourg3ET1MT25lRef142842-21
  • 2021.09.16Charlebourg3ET1MT25mRef142842-10
  • 2021.09.16Charlebourg3ET1MT25nRef142842-11

Ci-dessus : Commutateur MT25 sis au Centre Téléphonique Charlebourg, à La Garenne-Colombes (92).

  •  CHARLEBOURG 3 ET1 (CB33) - Mis en service le 21 février 1984 - Hors service le 4 février 2020 - Fabricant Thomson-CSF.

Photographies C. R-V. - 16 septembre 2021 - Coll. C. R-V/Orange DANP

_____

  • 2023.01.18Charlebourg3ET1MT25Ref147017-08
  • 2023.01.18Charlebourg3ET1MT25Ref147017-10
  • 2023.01.18Charlebourg3ET1MT25Ref147017-12
  • 2023.01.18Charlebourg3ET1MT25Ref147017-14
  • 2023.01.18Charlebourg3ET1MT25Ref147017-16
  • 2023.01.18Charlebourg3ET1MT25Ref147017-18
  • 2023.01.18Charlebourg3ET1MT25Ref147017-20
  • 2023.01.18Charlebourg3ET1MT25Ref147017-23
  • 2023.01.18Charlebourg3ET1MT25Ref147017-24
  • 2023.01.18Charlebourg3ET1MT25Ref147017-25
  • 2023.01.18Charlebourg3ET1MT25Ref147017-20
  • 2023.01.18Charlebourg3ET1MT25Ref147017-23
  • 2023.01.18Charlebourg3ET1MT25Ref147017-24
  • 2023.01.18Charlebourg3ET1MT25Ref147017-25
  • 2023.01.18Charlebourg3ET1MT25Ref147017-26
  • 2023.01.18Charlebourg3ET1MT25Ref147017-27

Ci-dessus : Commutateur MT25 sis au Centre Téléphonique Charlebourg, à La Garenne-Colombe (92)

  • CHARLEBOURG 3 ET1 (CB33) - Mis en Service le 21 février 1984 - Hors Service le 4 février 2020 - Fabricant : Thomson-CSF
  • Magnifique machine dans une très belle salle d’un très beau centre art-déco. Méritait bien une seconde série de clichés.
  • Pourvu de Calculateurs Mercure 322 à son arrêt.

Photographies C. R-V. – 30 mai 2023 - Coll. C. R-V/Orange DANP

_____

  • 2021.10.11LeVesinetA3MT25aRef143147-23
  • 2021.10.11LeVesinetA3MT25bRef143147-24
  • 2021.10.11LeVesinetA3MT25cRef143147-21
  • 2021.10.11LeVesinetA3MT25dRef143147-22
  • 2021.10.11LeVesinetA3MT25eRef143147-20
  • 2021.10.11LeVesinetA3MT25fRef143147-01
  • 2021.10.11LeVesinetA3MT25gRef143147-02
  • 2021.10.11LeVesinetA3MT25hRef143147-03
  • 2021.10.11LeVesinetA3MT25iRef143147-04
  • 2021.10.11LeVesinetA3MT25jRef143147-05
  • 2021.10.11LeVesinetA3MT25kRef143147-06
  • 2021.10.11LeVesinetA3MT25lRef143147-07
  • 2021.10.11LeVesinetA3MT25mRef143147-08
  • 2021.10.11LeVesinetA3MT25nRef143147-09
  • 2021.10.11LeVesinetA3MT25oRef143147-10
  • 2021.10.11LeVesinetA3MT25pRef143147-11

Ci-dessus : Commutateur MT25 sis au Centre Téléphonique du Vésinet (78).

  • LE VÉSINET A3 (WE12) - Mis en service le 20 juin 1984 - Hors service le 10 décembre 2013 - Fabricant Thomson-CSF.

Photographies C. R-V. - 11 octobre 2021 - Coll. C. R-V/Orange DANP

_____

  • 2021.11.08MassyA5MT25aRef143405-01
  • 2021.11.08MassyA5MT25bRef143405-02
  • 2021.11.08MassyA5MT25cRef143405-03
  • 2021.11.08MassyA5MT25dRef143405-04
  • 2021.11.08MassyA5MT25eRef143405-05
  • 2021.11.08MassyA5MT25fRef143405-06
  • 2021.11.08MassyA5MT25gRef143405-07
  • 2021.11.08MassyA5MT25hRef143405-08
  • 2021.11.08MassyA5MT25iRef143405-11
  • 2021.11.08MassyA5MT25jRef143405-09
  • 2021.11.08MassyA5MT25kRef143405-10
  • 2021.11.08MassyA5MT25lRef143405-12
  • 2021.11.08MassyA5MT25mRef143405-13
  • 2021.11.08MassyA5MT25nRef143405-14
  • 2021.11.08MassyA5MT25oRef143405-15
  • 2021.11.08MassyA5MT25pRef143405-16
  • 2021.11.08MassyA5MT25qRef143405-17
  • 2021.11.08MassyA5MT25rRef143405-18
  • 2021.11.08MassyA5MT25sRef143405-19
  • 2021.11.08MassyA5MT25tRef143405-24
  • 2021.11.08MassyA5MT25uRef143405-27
  • 2021.11.08MassyA5MT25vRef143405-32

Ci-dessus : Commutateur MT25 sis au Centre Téléphonique Massy A, à Massy (91).

  • MASSY A5 (SD94) - Mis en service le 19 décembre 1985 - Hors service le 21 mars 2006 - Fabricant Thomson-CSF.

Photographies C. R-V. - 8 novembre 2021 - Coll. C. R-V/Orange DANP

_____

  • 2021.09.13LognesA2MT25aRef142561-38
  • 2021.09.13LognesA2MT25bRef142561-39
  • 2021.09.13LognesA2MT25cRef142561-01
  • 2021.09.13LognesA2MT25dRef142561-02
  • 2021.09.13LognesA2MT25eRef142561-03
  • 2021.09.13LognesA2MT25fRef142561-04
  • 2021.09.13LognesA2MT25gRef142561-05
  • 2021.09.13LognesA2MT25hRef142561-08
  • 2021.09.13LognesA2MT25iRef142561-29
  • 2021.09.13LognesA2MT25jRef142561-37
  • 2021.09.13LognesA2MT25kRef142561-21
  • 2021.09.13LognesA2MT25lRef142561-22
  • 2021.09.13LognesA2MT25mRef142561-23
  • 2021.09.13LognesA2MT25nRef142561-24
  • 2021.09.13LognesA2MT25oRef142561-25
  • 2021.09.13LognesA2MT25pRef142561-26
  • 2021.09.13LognesA2MT25qRef142561-27
  • 2021.09.13LognesA2MT25rRef142561-28
  • 2021.09.13LognesA2MT25sRef142561-32
  • 2021.09.13LognesA2MT25tRef142561-34
  • 2021.09.13LognesA2MT25uRef142561-35
  • 2021.09.13LognesA2MT25vRef142561-36

Ci-dessus : Commutateur MT25 sis au Centre Téléphonique de Lognes (77).

  • LOGNES A2 (ED72) - Mis en service le 18 décembre 1986 - Hors service le 11 mars 2014 - Fabricant Thomson-CSF.

Photographies C. R-V. - 13 septembre 2021 - Coll. C. R-V/Orange DANP

_____

MT25Bondy2ET1EnSalledExploitationbis

Ci-dessus : de passage au Commutateur MT25 sis au Centre Téléphonique de Bondy (93).

  • BONDY 2 ET1 (BB22) - Mis en service le 25 mai 1988 - Hors service le 25 avril 2017 - Fabricant : Alcatel.

(Photographie : © C. R-V.)

  • 2021.11.09aBondy2ET1MT25Ref143414-01
  • 2021.11.09bBondy2ET1MT25Ref143414-02
  • 2021.11.09cBondy2ET1MT25Ref143414-03
  • 2021.11.09dBondy2ET1MT25Ref143414-04
  • 2021.11.09eBondy2ET1MT25Ref143414-05
  • 2021.11.09fBondy2ET1MT25Ref143414-06
  • 2021.11.09gBondy2ET1MT25Ref143414-07
  • 2021.11.09hBondy2ET1MT25Ref143414-08
  • 2021.11.09iBondy2ET1MT25Ref143414-09
  • 2021.11.09jBondy2ET1MT25Ref143414-10
  • 2021.11.09kBondy2ET1MT25Ref143414-11
  • 2021.11.09lBondy2ET1MT25Ref143414-12
  • 2021.11.09mBondy2ET1MT25Ref143414-14
  • 2021.11.09nBondy2ET1MT25Ref143414-15
  • 2021.11.09oBondy2ET1MT25Ref143414-17
  • 2021.11.09pBondy2ET1MT25Ref143414-18
  • 2021.11.09qBondy2ET1MT25Ref143414-16
  • 2021.11.09rBondy2ET1MT25Ref143414-31

Ci-dessus : Commutateur MT25 sis au Centre Téléphonique de Bondy (93).

  • BONDY 2 ET1 (BB22) - Mis en service le 25 mai 1988 - Hors service le 25 avril 2017 - Fabricant Thomson-CSF

Photographies C. R-V. - 9 novembre 2021 - Coll. C. R-V/Orange DANP

_____

  • 2022.01.30Montmartre4ET1MT25Ref143762-01
  • 2022.01.30Montmartre4ET1MT25Ref143762-02
  • 2022.01.30Montmartre4ET1MT25Ref143762-03
  • 2022.01.30Montmartre4ET1MT25Ref143762-04
  • 2022.01.30Montmartre4ET1MT25Ref143762-05
  • 2022.01.30Montmartre4ET1MT25Ref143762-06
  • 2022.01.30Montmartre4ET1MT25Ref143762-07
  • 2022.01.30Montmartre4ET1MT25Ref143762-08
  • 2022.01.30Montmartre4ET1MT25Ref143762-09
  • 2022.01.30Montmartre4ET1MT25Ref143762-10
  • 2022.01.30Montmartre4ET1MT25Ref143762-11
  • 2022.01.30Montmartre4ET1MT25Ref143762-12
  • 2022.01.30Montmartre4ET1MT25Ref143762-13
  • 2022.01.30Montmartre4ET1MT25Ref143762-14
  • 2022.01.30Montmartre4ET1MT25Ref143762-15
  • 2022.01.30Montmartre4ET1MT25Ref143762-16
  • 2022.01.30Montmartre4ET1MT25Ref143762-17
  • 2022.01.30Montmartre4ET1MT25Ref143762-18
  • 2022.01.30Montmartre4ET1MT25Ref143762-19
  • 2022.01.30Montmartre4ET1MT25Ref143762-20
  • 2022.01.30Montmartre4ET1MT25Ref143762-21
  • 2022.01.30Montmartre4ET1MT25Ref143762-22
  • 2022.01.30Montmartre4ET1MT25Ref143762-25
  • 2022.01.30Montmartre4ET1MT25Ref143762-26

Ci-dessus : vues du Commutateur MT25 sis au Centre Téléphonique Montmartre, à Paris (75).

  • MONTMARTRE 4 ET1 (AC94), Prototype commandé le 12 juin 1986 - Mis en service le 24 mars 1988 - Hors service le 13 novembre 2019 - Fabricant : Thomson/Alcatel. 
  • Premier MT25 de France équipé de CSN en première monte.
  • La 1ère travée est l'Unité de Commande Dupliquée (2 Calculateurs MU321 à l'origine), dans le mobilier MT25 habituel,
  • Les 2ème, 3ème et 4ème travées sont l'Unité de SIgnalisation (Signaleurs et Marqueurs), dans le mobilier MT25 habituel,
  • Au delà et jusqu'au fond de la salle, les 5 travées des Centres Satellites Numériques (CSN), positionnées perpendiculairement, pour cause d'exiguïté de la salle, dans leur mobilier dédié "Alcatel".

Photographies C. R-V. - 30 janvier 2022 - Coll. C. R-V/Orange DANP

_____

  • 2021.11.10Sevran2ET1MT25Ref143431-01
  • 2021.11.10Sevran2ET1MT25Ref143431-02
  • 2021.11.10Sevran2ET1MT25Ref143431-03
  • 2021.11.10Sevran2ET1MT25Ref143431-04
  • 2021.11.10Sevran2ET1MT25Ref143431-05
  • 2021.11.10Sevran2ET1MT25Ref143431-06
  • 2021.11.10Sevran2ET1MT25Ref143431-08
  • 2021.11.10Sevran2ET1MT25Ref143431-12
  • 2021.11.10Sevran2ET1MT25Ref143431-13
  • 2021.11.10Sevran2ET1MT25Ref143431-15
  • 2021.11.10Sevran2ET1MT25Ref143431-19
  • 2021.11.10Sevran2ET1MT25Ref143431-20
  • 2021.11.10Sevran2ET1MT25Ref143431-21
  • 2021.11.10Sevran2ET1MT25Ref143431-22
  • 2021.11.10Sevran2ET1MT25Ref143431-23
  • 2021.11.10Sevran2ET1MT25Ref143431-24
  • 2021.11.10Sevran2ET1MT25Ref143431-25
  • 2021.11.10Sevran2ET1MT25Ref143431-26
  • 2021.11.10Sevran2ET1MT25Ref143431-27
  • 2021.11.10Sevran2ET1MT25Ref143431-28

Ci-dessus : Commutateur MT25 sis au Centre Téléphonique de Sevran (93).

  • SEVRAN 2 ET1 (BC72) - Mis en service le 9 novembre 1988 - Hors service le 14 mai 2019 - Fabricant Alcatel/Thomson.
  • Visité quelques semaines avant sa destruction.

Photographies C. R-V. - 10 novembre 2021 - Coll. C. R-V/Orange DANP

_____

  • 2022.05.30NoisyLeGrand2MT25Ref144839-01
  • 2022.05.30NoisyLeGrand2MT25Ref144839-02
  • 2022.05.30NoisyLeGrand2MT25Ref144839-03
  • 2022.05.30NoisyLeGrand2MT25Ref144839-04
  • 2022.05.30NoisyLeGrand2MT25Ref144839-05
  • 2022.05.30NoisyLeGrand2MT25Ref144839-06
  • 2022.05.30NoisyLeGrand2MT25Ref144839-07
  • 2022.05.30NoisyLeGrand2MT25Ref144839-08
  • 2022.05.30NoisyLeGrand2MT25Ref144839-09
  • 2022.05.30NoisyLeGrand2MT25Ref144839-10
  • 2022.05.30NoisyLeGrand2MT25Ref144839-11
  • 2022.05.30NoisyLeGrand2MT25Ref144839-12
  • 2022.05.30NoisyLeGrand2MT25Ref144839-13
  • 2022.05.30NoisyLeGrand2MT25Ref144839-14
  • 2022.05.30NoisyLeGrand2MT25Ref144839-15
  • 2022.05.30NoisyLeGrand2MT25Ref144839-16
  • 2022.05.30NoisyLeGrand2MT25Ref144839-33
  • 2022.05.30NoisyLeGrand2MT25Ref144839-34

Ci-dessus : Commutateur MT25 sis au Centre Téléphonique de Noisy-le-Grand (93).

  • NOISY-LE-GRAND 2 (BC22) - Mis en service le 13 décembre 1989 - Hors service le 10 mars 2020 - Fabricant Alcatel/Thomson.
  • Les Calculateurs de cet autocommutateur sont particuliers. Si le modèle MU321 comprend 11 cartes, le modèle MU322 comprend 2 cartes, et le modèle MU323 (utilisé seulement pour certains autocommutateurs MT20 - jamais sur les MT25) comprend 4 cartes.  
  • Or, le modèle de calculateurs utilisé à Noisy-le-Grand comprend bizarrement 3 cartes ! Variante hybride expérimentale entre le MU322 et le MU323 ? Nous ne pouvons l'affirmer. Seulement une hypothèse que nous formulons a-posteriori. Nous avions déjà remarqué cette spécificité lors de notre 1ère visite le 25 janvier 2017 lorsque l'autocommutateur était en service.

Photographies C. R-V. - 30 mai 2022 - Coll. C. R-V/Orange DANP

_____

  • 2022.06.07NeuillySurMarneB2MT25Ref144884-01
  • 2022.06.07NeuillySurMarneB2MT25Ref144884-02
  • 2022.06.07NeuillySurMarneB2MT25Ref144884-03
  • 2022.06.07NeuillySurMarneB2MT25Ref144884-04
  • 2022.06.07NeuillySurMarneB2MT25Ref144884-05
  • 2022.06.07NeuillySurMarneB2MT25Ref144884-06
  • 2022.06.07NeuillySurMarneB2MT25Ref144884-07
  • 2022.06.07NeuillySurMarneB2MT25Ref144884-08
  • 2022.06.07NeuillySurMarneB2MT25Ref144884-09
  • 2022.06.07NeuillySurMarneB2MT25Ref144884-10
  • 2022.06.07NeuillySurMarneB2MT25Ref144884-11
  • 2022.06.07NeuillySurMarneB2MT25Ref144884-12

Ci-dessus : Commutateur MT25 sis au Centre Téléphonique de Neuilly-sur-Marne (93).

  • NEUILLY-SUR-MARNE B2 (BC12) - Mis en service le 20 février 1985 - Hors service le 3 décembre 2019 - Fabricant Thomson-CSF.

Photographies C. R-V. - 7 juin 2022 - Coll. C. R-V/Orange DANP

_____

  • 2022.06.07TremblayLesG2ET1MT25Ref144895-01
  • 2022.06.07TremblayLesG2ET1MT25Ref144895-02
  • 2022.06.07TremblayLesG2ET1MT25Ref144895-03
  • 2022.06.07TremblayLesG2ET1MT25Ref144895-04
  • 2022.06.07TremblayLesG2ET1MT25Ref144895-05
  • 2022.06.07TremblayLesG2ET1MT25Ref144895-06
  • 2022.06.07TremblayLesG2ET1MT25Ref144895-07
  • 2022.06.07TremblayLesG2ET1MT25Ref144895-08
  • 2022.06.07TremblayLesG2ET1MT25Ref144895-09
  • 2022.06.07TremblayLesG2ET1MT25Ref144895-10
  • 2022.06.07TremblayLesG2ET1MT25Ref144895-11
  • 2022.06.07TremblayLesG2ET1MT25Ref144895-12
  • 2022.06.07TremblayLesG2ET1MT25Ref144895-13
  • 2022.06.07TremblayLesG2ET1MT25Ref144895-14
  • 2022.06.07TremblayLesG2ET1MT25Ref144895-15
  • 2022.06.07TremblayLesG2ET1MT25Ref144895-16

Ci-dessus : Commutateur MT25 sis au Centre Téléphonique de Tremblay-lès-Gonesse (93).

  • TREMBLAY-LÈS-GONESSE 2 ET1 (BC82) - Mis en service le 16 octobre 1986 - Hors service le 5 avril 2005 - Fabricant Thomson-CSF.

Photographies C. R-V. - 7 juin 2022 - Coll. C. R-V/Orange DANP

_____

  • 2022.06.14GuyancourtA2MT25Ref145038-01
  • 2022.06.14GuyancourtA2MT25Ref145038-02
  • 2022.06.14GuyancourtA2MT25Ref145038-03
  • 2022.06.14GuyancourtA2MT25Ref145038-04
  • 2022.06.14GuyancourtA2MT25Ref145038-05
  • 2022.06.14GuyancourtA2MT25Ref145038-06
  • 2022.06.14GuyancourtA2MT25Ref145038-07
  • 2022.06.14GuyancourtA2MT25Ref145038-08
  • 2022.06.14GuyancourtA2MT25Ref145038-09
  • 2022.06.14GuyancourtA2MT25Ref145038-10
  • 2022.06.14GuyancourtA2MT25Ref145038-11
  • 2022.06.14GuyancourtA2MT25Ref145038-12
  • 2022.06.14GuyancourtA2MT25Ref145038-13
  • 2022.06.14GuyancourtA2MT25Ref145038-14
  • 2022.06.14GuyancourtA2MT25Ref145038-15
  • 2022.06.14GuyancourtA2MT25Ref145038-16
  • 2022.06.14GuyancourtA2MT25Ref145038-17
  • 2022.06.14GuyancourtA2MT25Ref145038-18

Ci-dessus : Commutateur MT25 sis au Centre Téléphonique de Guyancourt (78).

  • GUYANCOURT A2 (WE67) - Mis en service le 24 avril 1990 - Hors service le 20 juin 2006 - Fabricant Alcatel/Thomson.

Photographies C. R-V. - 14  juin 2022 - Coll. C. R-V/Orange DANP

_____

  • 2022.06.20Flandre2ET1MT25Ref145107-01
  • 2022.06.20Flandre2ET1MT25Ref145107-02
  • 2022.06.20Flandre2ET1MT25Ref145107-03
  • 2022.06.20Flandre2ET1MT25Ref145107-04
  • 2022.06.20Flandre2ET1MT25Ref145107-05
  • 2022.06.20Flandre2ET1MT25Ref145107-06
  • 2022.06.20Flandre2ET1MT25Ref145107-07
  • 2022.06.20Flandre2ET1MT25Ref145107-08
  • 2022.06.20Flandre2ET1MT25Ref145107-09
  • 2022.06.20Flandre2ET1MT25Ref145107-10
  • 2022.06.20Flandre2ET1MT25Ref145107-11
  • 2022.06.20Flandre2ET1MT25Ref145107-12

Ci-dessus : Commutateur MT25 sis au Centre Téléphonique Flandre, à Aubervilliers (93).

  • FLANDRE 2 ET1 (BB83) - Mis en service le 27 mars 1984 - Hors service le 13 mai 2014 - Fabricant Thomson-CSF.

Photographies C. R-V. - 20 juin 2022 - Coll. C. R-V/Orange DANP

_____

2018.11.13devantMT25Carnot5ET2

Ci-dessus : devant les calculateurs centralisés du premier Commutateur MT25 sis au Centre Téléphonique Carnot, à Paris (75).

  • CARNOT 5 ET2 (AB65) - Mis en service le 19 janvier 1989 - Hors service le 13 novembre 2018 à 23H15 - Fabricant : Alcatel.
  • Premier MT25 de France pourvu des nouveaux calculateurs MU321 à sa mise en service. 

(Photographie : © C. R-V. - 13 novembre 2018.)

_____

  • 2021.11.05Grav2et3MT25aRef143373-11
  • 2021.11.05Grav2et3MT25bRef143373-10
  • 2021.11.05Grav2et3MT25cRef143373-08
  • 2021.11.05Grav2et3MT25dRef143373-13
  • 2021.11.05Grav2et3MT25eRef143373-14
  • 2021.11.05Grav2et3MT25fRef143373-15
  • 2021.11.05Grav2et3MT25gRef143373-09
  • 2021.11.05Grav2et3MT25hRef143373-12
  • 2021.11.05Grav2et3MT25iRef143373-02
  • 2021.11.05Grav2et3MT25jRef143373-03
  • 2021.11.05Grav2et3MT25kRef143373-01
  • 2021.11.05Grav2et3MT25lRef143373-04
  • 2021.11.05Grav2et3MT25mRef143373-05
  • 2021.11.05Grav2et3MT25nRef143373-06
  • 2021.11.05Grav2et3MT25oRef143373-07
  • 2021.11.05Grav2et3MT25pRef143373-16
  • 2021.11.05Grav2et3MT25qRef143373-19
  • 2021.11.05Grav2et3MT25rRef143373-20
  • 2021.11.05Grav2et3MT25sRef143373-18
  • 2021.11.05Grav2et3MT25tRef143373-23
  • 2021.11.05Grav2et3MT25uRef143373-21
  • 2021.11.05Grav2et3MT25vRef143373-22

Ci-dessus : les deux Commutateurs MT25 sis au Centre Téléphonique Gravelle, à Saint-Maur.

  • GRAVELLE 2 ET1 (DC22) - Mis en Service le 17 mars 1987 - Hors Service le 17 octobre 2017.
  • GRAVELLE 3 ET2 (DC23) - Mis en Service le 15 novembre 1988 - Hors Service le 8 novembre 2016.
  • Particularité : les 2 Commutateurs sont hébergés dans le même local, et de surcroît se regardent en face-à-face.

Photographies C. R-V. - 5 novembre 2021 - Coll. C. R-V/Orange DANP

_____

  • 2022.07.12CavaillonMouretMT25Ref145296-01
  • 2022.07.12CavaillonMouretMT25Ref145296-02
  • 2022.07.12CavaillonMouretMT25Ref145296-03
  • 2022.07.12CavaillonMouretMT25Ref145296-04
  • 2022.07.12CavaillonMouretMT25Ref145296-05
  • 2022.07.12CavaillonMouretMT25Ref145296-06
  • 2022.07.12CavaillonMouretMT25Ref145296-07
  • 2022.07.12CavaillonMouretMT25Ref145296-08
  • 2022.07.12CavaillonMouretMT25Ref145296-09
  • 2022.07.12CavaillonMouretMT25Ref145296-10
  • 2022.07.12CavaillonMouretMT25Ref145296-11
  • 2022.07.12CavaillonMouretMT25Ref145296-12
  • 2022.07.12CavaillonMouretMT25Ref145296-13
  • 2022.07.12CavaillonMouretMT25Ref145296-14
  • 2022.07.12CavaillonMouretMT25Ref145296-15
  • 2022.07.12CavaillonMouretMT25Ref145296-16
  • 2022.07.12CavaillonMouretMT25Ref145296-17
  • 2022.07.12CavaillonMouretMT25Ref145296-18

Ci-dessus : Commutateur MT25 sis au Centre Téléphonique de Cavaillon Mouret, à Cavaillon (84).

  • CAVAILLON MOURET (PA39) - Mis en service le 2 septembre 1986 - Hors service le 24 novembre 2015 - Fabricant Thomson-CSF.
  • immortalisé quelques semaines avant sa destruction, le 1er MT25 du Sud-Est de la France découvert encore sur pieds par nos soins.
  • Implantation particulière, sur deux rangées, les URA de type CSN étant décalées à gauche des calculateurs. La  flambée de température de la salle étant à peu près contenue par deux climatiseurs mobiles en fonctionnement 24H/24.

Photographies C. R-V. - 12 juillet 2022 - Coll. C. R-V/Orange DANP

_____

  • 2022.07.21LePontetFarguesMT25Ref145444-01
  • 2022.07.21LePontetFarguesMT25Ref145444-02
  • 2022.07.21LePontetFarguesMT25Ref145444-03
  • 2022.07.21LePontetFarguesMT25Ref145444-04
  • 2022.07.21LePontetFarguesMT25Ref145444-05
  • 2022.07.21LePontetFarguesMT25Ref145444-06
  • 2022.07.21LePontetFarguesMT25Ref145444-07
  • 2022.07.21LePontetFarguesMT25Ref145444-08
  • 2022.07.21LePontetFarguesMT25Ref145444-09
  • 2022.07.21LePontetFarguesMT25Ref145444-10
  • 2022.07.21LePontetFarguesMT25Ref145444-11
  • 2022.07.21LePontetFarguesMT25Ref145444-12
  • 2022.07.21LePontetFarguesMT25Ref145444-13
  • 2022.07.21LePontetFarguesMT25Ref145444-14

Ci-dessus : Commutateur MT25 sis au Centre Téléphonique du Pontet Fargues, à Le Pontet (84).

  • LE PONTET FARGUES MT (PA30) - Mis en service le 23 mai 1984 - Hors service le 24 novembre 2009 - Fabricant Thomson-CSF.
  • Machine qu'il a fallu rendre présentable pour les clichés avec beaucoup de courage physique, dans une atmosphère surchauffée, supérieure à la canicule du dehors... Mais heureux de le découvrir encore sur pied.

Photographies C. R-V. - 21 juillet 2022 - Coll. C. R-V/Orange DANP

_____

  • 2022.07.22MarignaneStPierre2MT25Ref145473-01
  • 2022.07.22MarignaneStPierre2MT25Ref145473-02
  • 2022.07.22MarignaneStPierre2MT25Ref145473-03
  • 2022.07.22MarignaneStPierre2MT25Ref145473-04
  • 2022.07.22MarignaneStPierre2MT25Ref145473-05
  • 2022.07.22MarignaneStPierre2MT25Ref145473-06
  • 2022.07.22MarignaneStPierre2MT25Ref145473-07
  • 2022.07.22MarignaneStPierre2MT25Ref145473-08
  • 2022.07.22MarignaneStPierre2MT25Ref145473-09
  • 2022.07.22MarignaneStPierre2MT25Ref145473-10
  • 2022.07.22MarignaneStPierre2MT25Ref145473-11
  • 2022.07.22MarignaneStPierre2MT25Ref145473-12
  • 2022.07.22MarignaneStPierre2MT25Ref145473-13
  • 2022.07.22MarignaneStPierre2MT25Ref145473-14
  • 2022.07.22MarignaneStPierre2MT25Ref145473-15
  • 2022.07.22MarignaneStPierre2MT25Ref145473-16
  • 2022.07.22MarignaneStPierre2MT25Ref145473-17
  • 2022.07.22MarignaneStPierre2MT25Ref145473-18

Ci-dessus : Commutateur MT25 sis au Centre Téléphonique de Marignane Saint-Pierre, à Marignane (13).

  • MARIGNANE SAINT-PIERRE 2 (MA24) - Mis en service le 22 février 1984 - Hors service le 10 octobre 2006 - Fabricant Thomson-CSF.
  • Machine bien préservée et propre, mais hélas avec peu de recul pour prendre les clichés et une température ambiante élevée.

Photographies C. R-V. - 22 juillet 2022 - Coll. C. R-V/Orange DANP

_____

  • 2022.07.26ToulonDaveluyUrbMT25Ref145564-01
  • 2022.07.26ToulonDaveluyUrbMT25Ref145564-02
  • 2022.07.26ToulonDaveluyUrbMT25Ref145564-03
  • 2022.07.26ToulonDaveluyUrbMT25Ref145564-04
  • 2022.07.26ToulonDaveluyUrbMT25Ref145564-05
  • 2022.07.26ToulonDaveluyUrbMT25Ref145564-06
  • 2022.07.26ToulonDaveluyUrbMT25Ref145564-07
  • 2022.07.26ToulonDaveluyUrbMT25Ref145564-08
  • 2022.07.26ToulonDaveluyUrbMT25Ref145564-09
  • 2022.07.26ToulonDaveluyUrbMT25Ref145564-10
  • 2022.07.26ToulonDaveluyUrbMT25Ref145564-11
  • 2022.07.26ToulonDaveluyUrbMT25Ref145564-12

Ci-dessus : Commutateur MT25 sis au Centre Téléphonique de Toulon Daveluy, à Toulon (83).

  • TOULON DAVELUY URBAIN (PA88) - Mis en service le 15 avril 1986 - Hors service le 11 avril 2006 - Fabricant Thomson-CSF.
  • Machine correctement conservée, mais faux-plancher en mauvais état, où je suis violemment passé au travers à deux reprises, mais sans me tuer...

Photographies C. R-V. - 26 juillet 2022 - Coll. C. R-V/Orange DANP

_____

  • 2022.08.12LaSeyneSurMerMT25Ref145697-01
  • 2022.08.12LaSeyneSurMerMT25Ref145697-02
  • 2022.08.12LaSeyneSurMerMT25Ref145697-03
  • 2022.08.12LaSeyneSurMerMT25Ref145697-04
  • 2022.08.12LaSeyneSurMerMT25Ref145697-05
  • 2022.08.12LaSeyneSurMerMT25Ref145697-06
  • 2022.08.12LaSeyneSurMerMT25Ref145697-07
  • 2022.08.12LaSeyneSurMerMT25Ref145697-08
  • 2022.08.12LaSeyneSurMerMT25Ref145697-09
  • 2022.08.12LaSeyneSurMerMT25Ref145697-10
  • 2022.08.12LaSeyneSurMerMT25Ref145697-11
  • 2022.08.12LaSeyneSurMerMT25Ref145697-12
  • 2022.08.12LaSeyneSurMerMT25Ref145697-13
  • 2022.08.12LaSeyneSurMerMT25Ref145697-14
  • 2022.08.12LaSeyneSurMerMT25Ref145697-15
  • 2022.08.12LaSeyneSurMerMT25Ref145697-16

Ci-dessus : Commutateur MT25 sis au Centre Téléphonique de La Seyne-sur-Mer (83).

  • LA SEYNE-SUR-MER (TD06) - Mis en service le 10 mai 1988 - Hors service le 12 juin 2007 - Fabricant Alcatel/Thomson.
  • Machine dans un environnement de type fournaise où les prises furent pour nous d'une grande pénibilité, tellement que dehors, jour de canicule, il faisait froid en comparaison ; équipée de Calculateurs Centralisés MU321.

Photographies C. R-V. - 12 août 2022 - Coll. C. R-V/Orange DANP

_____

  • 2022.08.16DraguignanLaRgeMT25Ref145738-01
  • 2022.08.16DraguignanLaRgeMT25Ref145738-02
  • 2022.08.16DraguignanLaRgeMT25Ref145738-03
  • 2022.08.16DraguignanLaRgeMT25Ref145738-04
  • 2022.08.16DraguignanLaRgeMT25Ref145738-05
  • 2022.08.16DraguignanLaRgeMT25Ref145738-06
  • 2022.08.16DraguignanLaRgeMT25Ref145738-07
  • 2022.08.16DraguignanLaRgeMT25Ref145738-08
  • 2022.08.16DraguignanLaRgeMT25Ref145738-09
  • 2022.08.16DraguignanLaRgeMT25Ref145738-10
  • 2022.08.16DraguignanLaRgeMT25Ref145738-11
  • 2022.08.16DraguignanLaRgeMT25Ref145738-12
  • 2022.08.16DraguignanLaRgeMT25Ref145738-13
  • 2022.08.16DraguignanLaRgeMT25Ref145738-14
  • 2022.08.16DraguignanLaRgeMT25Ref145738-15
  • 2022.08.16DraguignanLaRgeMT25Ref145738-16

Ci-dessus : Commutateur MT25 sis au Centre Téléphonique Draguignan La Rouguière, à Draguignan (83).

  • DRAGUIGNAN LA ROUGUIÈRE (NC68) - Mis en service le 18 septembre 1984- Hors service le 19 septembre 2017 - Fabricant Thomson-CSF.
  • Machine très bien conservée, et encore climatisée, équipée de Calculateurs Centralisés MU322.

Photographies C. R-V. - 16 août 2022 - Coll. C. R-V/Orange DANP

_____

  • 2022.08.17LaCiotatCtg2MT25Ref145764-01
  • 2022.08.17LaCiotatCtg2MT25Ref145764-02
  • 2022.08.17LaCiotatCtg2MT25Ref145764-03
  • 2022.08.17LaCiotatCtg2MT25Ref145764-04
  • 2022.08.17LaCiotatCtg2MT25Ref145764-05
  • 2022.08.17LaCiotatCtg2MT25Ref145764-06
  • 2022.08.17LaCiotatCtg2MT25Ref145764-07
  • 2022.08.17LaCiotatCtg2MT25Ref145764-08
  • 2022.08.17LaCiotatCtg2MT25Ref145764-09
  • 2022.08.17LaCiotatCtg2MT25Ref145764-10
  • 2022.08.17LaCiotatCtg2MT25Ref145764-11
  • 2022.08.17LaCiotatCtg2MT25Ref145764-12
  • 2022.08.17LaCiotatCtg2MT25Ref145764-13
  • 2022.08.17LaCiotatCtg2MT25Ref145764-14
  • 2022.08.17LaCiotatCtg2MT25Ref145764-15
  • 2022.08.17LaCiotatCtg2MT25Ref145764-16

Ci-dessus : Commutateur MT25 sis au Centre Téléphonique La Ciotat Chantegrillet, à La Ciotat (13).

  • LA CIOTAT CHANTEGRILLET 2 (MA08) - Mis en service le 21 février 1984 - Hors service le 22 mai 2007 - Fabricant Thomson-CSF.
  • Machine bien conservée, mais dans une température très élevée, équipée de Calculateurs Centralisés MU321.

Photographies C. R-V. - 17 août 2022 - Coll. C. R-V/Orange DANP

_____

  • 2022.08.19MarseilleMenpentiBMT25Ref145801-01
  • 2022.08.19MarseilleMenpentiBMT25Ref145801-04
  • 2022.08.19MarseilleMenpentiBMT25Ref145801-05
  • 2022.08.19MarseilleMenpentiBMT25Ref145801-08
  • 2022.08.19MarseilleMenpentiBMT25Ref145801-09
  • 2022.08.19MarseilleMenpentiBMT25Ref145801-10
  • 2022.08.19MarseilleMenpentiBMT25Ref145801-11
  • 2022.08.19MarseilleMenpentiBMT25Ref145801-12
  • 2022.08.19MarseilleMenpentiBMT25Ref145801-13
  • 2022.08.19MarseilleMenpentiBMT25Ref145801-14
  • 2022.08.19MarseilleMenpentiBMT25Ref145801-15
  • 2022.08.19MarseilleMenpentiBMT25Ref145801-16
  • 2022.08.19MarseilleMenpentiBMT25Ref145801-17
  • 2022.08.19MarseilleMenpentiBMT25Ref145801-18
  • 2022.08.19MarseilleMenpentiBMT25Ref145801-19
  • 2022.08.19MarseilleMenpentiBMT25Ref145801-20
  • 2022.08.19MarseilleMenpentiBMT25Ref145801-21
  • 2022.08.19MarseilleMenpentiBMT25Ref145801-22
  • 2022.08.19MarseilleMenpentiBMT25Ref145801-23
  • 2022.08.19MarseilleMenpentiBMT25Ref145801-24

Ci-dessus : Commutateur MT25 sis au Centre Téléphonique Marseille Menpenti, à Marseille (13).

  • MARSEILLE MENPENTI B (MA97) - Mis en service le 15 décembre 1987 - Hors service le 19 mai 2009 - Fabricant Thomson-CSF.
  • Machine très bien conservée, dans une belle salle propre, au plafond béton très décoratif, équipée de 2 Calculateurs Centralisés MU321.

Photographies C. R-V. - 19 août 2022 - Coll. C. R-V/Orange DANP

_____

  • 2022.08.19MarseilleStLouis2MT25Ref145820-01
  • 2022.08.19MarseilleStLouis2MT25Ref145820-02
  • 2022.08.19MarseilleStLouis2MT25Ref145820-03
  • 2022.08.19MarseilleStLouis2MT25Ref145820-04
  • 2022.08.19MarseilleStLouis2MT25Ref145820-06
  • 2022.08.19MarseilleStLouis2MT25Ref145820-08
  • 2022.08.19MarseilleStLouis2MT25Ref145820-09
  • 2022.08.19MarseilleStLouis2MT25Ref145820-10
  • 2022.08.19MarseilleStLouis2MT25Ref145820-11
  • 2022.08.19MarseilleStLouis2MT25Ref145820-12
  • 2022.08.19MarseilleStLouis2MT25Ref145820-13
  • 2022.08.19MarseilleStLouis2MT25Ref145820-14
  • 2022.08.19MarseilleStLouis2MT25Ref145820-15
  • 2022.08.19MarseilleStLouis2MT25Ref145820-16
  • 2022.08.19MarseilleStLouis2MT25Ref145820-17
  • 2022.08.19MarseilleStLouis2MT25Ref145820-18
  • 2022.08.19MarseilleStLouis2MT25Ref145820-19
  • 2022.08.19MarseilleStLouis2MT25Ref145820-20
  • 2022.08.19MarseilleStLouis2MT25Ref145820-21
  • 2022.08.19MarseilleStLouis2MT25Ref145820-22

Ci-dessus : Commutateur MT25 sis au Centre Téléphonique Marseille Saint-Louis, à Marseille (13).

  • MARSEILLE SAINT-LOUIS 2 (MA65) - Mis en service le 28 mars 1984 - Hors service le 24 juin 2014 - Fabricant Thomson-CSF.
  • Machine convenable qu'il a fallu rendre présentable au mieux, équipée de 2 Calculateurs Centralisés MU321.
  • Par chance, la Salle d'Exploitation désaffectée de centre déserté contenait encore beaucoup de documents intéressants sur l'histoire des télécommunications à Marseille et la région. Tout a été saisi d'autorité par mes soins pour être transmis aux Archives du Groupe Orange.

Photographies C. R-V. - 19 août 2022 - Coll. C. R-V/Orange DANP

  • 2022.08.21MarseillePrado2MT25Ref145850-01
  • 2022.08.21MarseillePrado2MT25Ref145850-02
  • 2022.08.21MarseillePrado2MT25Ref145850-03
  • 2022.08.21MarseillePrado2MT25Ref145850-04
  • 2022.08.21MarseillePrado2MT25Ref145850-05
  • 2022.08.21MarseillePrado2MT25Ref145850-06
  • 2022.08.21MarseillePrado2MT25Ref145850-07
  • 2022.08.21MarseillePrado2MT25Ref145850-08
  • 2022.08.21MarseillePrado2MT25Ref145850-09
  • 2022.08.21MarseillePrado2MT25Ref145850-10
  • 2022.08.21MarseillePrado2MT25Ref145850-11
  • 2022.08.21MarseillePrado2MT25Ref145850-12
  • 2022.08.21MarseillePrado2MT25Ref145850-13
  • 2022.08.21MarseillePrado2MT25Ref145850-14
  • 2022.08.21MarseillePrado2MT25Ref145850-15
  • 2022.08.21MarseillePrado2MT25Ref145850-16

Ci-dessus : Commutateur MT25 sis au Centre Téléphonique Marseille Prado, à Marseille (13).

  • MARSEILLE PRADO 2 (MA53) - Mis en service en Février 1984 - Hors service le 3 avril 2006 - Fabricant Thomson-CSF.
  • Machine très bien conservée, dans une belle salle propre et encore climatisée, équipée de 2 Calculateurs Centralisés MU321. 
  • De plus, une certaine satisfaction d'avoir pu visiter le Central Prado, un des "historiques" de Marseille-ville (6ème Central de Marseille), mis en service en automatique en Juillet 1950.

Photographies C. R-V. - 21 août 2022 - Coll. C. R-V/Orange DANP

  • 2022.08.23Marseille5Avenues2MT25Ref145886-01
  • 2022.08.23Marseille5Avenues2MT25Ref145886-02
  • 2022.08.23Marseille5Avenues2MT25Ref145886-03
  • 2022.08.23Marseille5Avenues2MT25Ref145886-04
  • 2022.08.23Marseille5Avenues2MT25Ref145886-05
  • 2022.08.23Marseille5Avenues2MT25Ref145886-06
  • 2022.08.23Marseille5Avenues2MT25Ref145886-07
  • 2022.08.23Marseille5Avenues2MT25Ref145886-08
  • 2022.08.23Marseille5Avenues2MT25Ref145886-09
  • 2022.08.23Marseille5Avenues2MT25Ref145886-10
  • 2022.08.23Marseille5Avenues2MT25Ref145886-11
  • 2022.08.23Marseille5Avenues2MT25Ref145886-12

Ci-dessus : Commutateur MT25 sis au Centre Téléphonique Marseille Cinq Avenues, à Marseille (13).

  • MARSEILLE CINQ AVENUES 2 (MA42) - Mis en service le 3 mai 1984 - Hors service le 18 octobre 2011 - Fabricant Thomson-CSF.
  • Machine qui nous donné beaucoup de travail pour la rendre présentable, dans un centre déserté et zombifié, équipée de 2 Calculateurs Centralisés MU321.

Photographies C. R-V. - 23 août 2022 - Coll. C. R-V/Orange DANP

_____

  • Notre visite du 23 août 2022 clôt la liste des MT25 "survivants" de Marseille-ville à date, soit tout de même 4 MT25 sur 6, MARSEILLE FERRÉOL MT (MA71) étant détruit depuis plusieurs années, et MARSEILLE SAINT-JUST 2 (MA63) que nous avons raté de quelques semaines voire quelques jours seulement lors de notre passage en urgence le 28 août 2022, dont la quasi-totalité de ce centre est promise à la démolition, et les équipes de ferrailleurs ayant tout juste commencé leur œuvre de démontage, les organes nobles ayant déjà été tous détruits dans un enchevêtrement qui n'a plus rien de présentable. Hélas, nous ne pouvons pas tout sauver. La chance y tient sa part...

_____

  • 2022.09.05NiceBlausascMT25Ref146180-01
  • 2022.09.05NiceBlausascMT25Ref146180-02
  • 2022.09.05NiceBlausascMT25Ref146180-03
  • 2022.09.05NiceBlausascMT25Ref146180-04
  • 2022.09.05NiceBlausascMT25Ref146180-05
  • 2022.09.05NiceBlausascMT25Ref146180-06
  • 2022.09.05NiceBlausascMT25Ref146180-07
  • 2022.09.05NiceBlausascMT25Ref146180-08
  • 2022.09.05NiceBlausascMT25Ref146180-09
  • 2022.09.05NiceBlausascMT25Ref146180-10

Ci-dessus : Commutateur MT25 sis au Centre Téléphonique Nice-Blausasc, à Blausasc (06).

  • NICE BLAUSASC (NC41) - Mis en service le 28 mai 1984 - Hors service le 2 décembre 2003 - Fabricant Thomson-CSF.
  • Machine de petite taille ne semblant avoir été équipée que du strict minimum d'organes nobles, dans un centre déserté et zombifié, équipée de 2 Calculateurs Centralisés MU321.

Photographies C. R-V. - 5 septembre 2022 - Coll. C. R-V/Orange DANP

_____

  • 2022.09.07AntibesJuanMT25Ref146224-01
  • 2022.09.07AntibesJuanMT25Ref146224-02
  • 2022.09.07AntibesJuanMT25Ref146224-03
  • 2022.09.07AntibesJuanMT25Ref146224-04
  • 2022.09.07AntibesJuanMT25Ref146224-05
  • 2022.09.07AntibesJuanMT25Ref146224-06
  • 2022.09.07AntibesJuanMT25Ref146224-07
  • 2022.09.07AntibesJuanMT25Ref146224-08
  • 2022.09.07AntibesJuanMT25Ref146224-09
  • 2022.09.07AntibesJuanMT25Ref146224-10
  • 2022.09.07AntibesJuanMT25Ref146224-11
  • 2022.09.07AntibesJuanMT25Ref146224-12
  • 2022.09.07AntibesJuanMT25Ref146224-13
  • 2022.09.07AntibesJuanMT25Ref146224-14
  • 2022.09.07AntibesJuanMT25Ref146224-15
  • 2022.09.07AntibesJuanMT25Ref146224-16

Ci-dessus : Commutateur MT25 sis au Centre Téléphonique d'Antibes Juan-les-Pins (06).

  • ANTIBES JUAN-LES-PINS (NC91) - Mis en service le 23 mars 1987 - Hors service le 27 mars 2007 - Fabricant Thomson-CSF.
  • Machine équipée de 2 Calculateurs Centralisés MU321. Seuls sont visibles les organes nobles installés dans cette salle, car, fait très particulier, les Unités de Raccordement d'Abonnés Locales (URAL) sont installées dans une autre salle, à l'opposé des organes nobles, avec, en sandwich, la salle d'exploitation...

Photographies C. R-V. - 7 septembre 2022 - Coll. C. R-V/Orange DANP

_____

  • 2022.09.08SainteMaximeMT25Ref146271-01
  • 2022.09.08SainteMaximeMT25Ref146271-02
  • 2022.09.08SainteMaximeMT25Ref146271-03
  • 2022.09.08SainteMaximeMT25Ref146271-04
  • 2022.09.08SainteMaximeMT25Ref146271-07
  • 2022.09.08SainteMaximeMT25Ref146271-08
  • 2022.09.08SainteMaximeMT25Ref146271-11
  • 2022.09.08SainteMaximeMT25Ref146271-12
  • 2022.09.08SainteMaximeMT25Ref146271-13
  • 2022.09.08SainteMaximeMT25Ref146271-14
  • 2022.09.08SainteMaximeMT25Ref146271-15
  • 2022.09.08SainteMaximeMT25Ref146271-16

Ci-dessus : Commutateur MT25 sis au Centre Téléphonique de Sainte-Maxime (06).

  • SAINTE-MAXIME MT25 (NC81) - Mis en service le 3 juillet 1985 - Hors service le 25 novembre 2010 - Fabricant Thomson-CSF.

Photographies C. R-V. - 9 septembre 2022 - Coll. C. R-V/Orange DANP

_____

  • 2022.09.16NiceBaumettes2MT25Ref146365-01
  • 2022.09.16NiceBaumettes2MT25Ref146365-02
  • 2022.09.16NiceBaumettes2MT25Ref146365-03
  • 2022.09.16NiceBaumettes2MT25Ref146365-04
  • 2022.09.16NiceBaumettes2MT25Ref146365-05
  • 2022.09.16NiceBaumettes2MT25Ref146365-06
  • 2022.09.16NiceBaumettes2MT25Ref146365-07
  • 2022.09.16NiceBaumettes2MT25Ref146365-08
  • 2022.09.16NiceBaumettes2MT25Ref146365-12
  • 2022.09.16NiceBaumettes2MT25Ref146365-13
  • 2022.09.16NiceBaumettes2MT25Ref146365-14
  • 2022.09.16NiceBaumettes2MT25Ref146365-15
  • 2022.09.16NiceBaumettes2MT25Ref146365-16
  • 2022.09.16NiceBaumettes2MT25Ref146365-19
  • 2022.09.16NiceBaumettes2MT25Ref146365-20
  • 2022.09.16NiceBaumettes2MT25Ref146365-21
  • 2022.09.16NiceBaumettes2MT25Ref146365-24
  • 2022.09.16NiceBaumettes2MT25Ref146365-26

Ci-dessus : Commutateur MT25 sis au Centre Téléphonique de Nice Baumettes, à Nice (06).

  • NICE BAUMETTES 2 (NC23) - Mis en service le 26 mars 1984 - Hors service le 5 juillet 2005 - Fabricant Thomson-CSF.
  • Les Unités de Raccordements d'Abonnés Locales de type URA2G sont enceintes dans un mobilier très inhabituel, avec des portes ajourées, plus lourdes, plus épaisses. Il s'agissait de la première fois que je découvrais ce mobilier inhabituel, que je n'ai jamais vu mentionné dans aucune notice MT25 constructeur de surcroît.

Photographies C. R-V. - 16 septembre 2022 - Coll. C. R-V/Orange DANP

_____

  • 2022.12.12NiceGounodMT25Ref146953-02
  • 2022.12.12NiceGounodMT25Ref146953-04
  • 2022.12.12NiceGounodMT25Ref146953-06
  • 2022.12.12NiceGounodMT25Ref146953-08
  • 2022.12.12NiceGounodMT25Ref146953-09
  • 2022.12.12NiceGounodMT25Ref146953-10
  • 2022.12.12NiceGounodMT25Ref146953-11
  • 2022.12.12NiceGounodMT25Ref146953-12
  • 2022.12.12NiceGounodMT25Ref146953-13
  • 2022.12.12NiceGounodMT25Ref146953-14
  • 2022.12.12NiceGounodMT25Ref146953-15
  • 2022.12.12NiceGounodMT25Ref146953-16
  • 2022.12.12NiceGounodMT25Ref146953-17
  • 2022.12.12NiceGounodMT25Ref146953-18
  • 2022.12.12NiceGounodMT25Ref146953-19
  • 2022.12.12NiceGounodMT25Ref146953-20
  • 2022.12.12NiceGounodMT25Ref146953-21
  • 2022.12.12NiceGounodMT25Ref146953-22
  • 2022.12.12NiceGounodMT25Ref146953-55
  • 2022.12.12NiceGounodMT25Ref146953-56

Ci-dessus : Commutateur MT25 sis au Centre Téléphonique de Nice Gounod, à Nice (06).

  • NICE GOUNOD (NC83) - Mis en service le 4 décembre 1989 - Hors service le 29 novembre 2005 - Fabricant Thomson-CSF.
  • Ce n'est pas sans une certaine émotion vis-à-vis du temps qui passe que nous ayons immortalisé ce MT25 après de gros efforts physiques pour le rendre présentable, par rapport à ce qu'il fut, pour compenser la déconsidération qu'il a subie, ainsi qu'un éclairage "façon guirlande de Noël" des plus précaires, mais néanmoins content de le trouver encore présent. D'autant qu'après vérification de notre liste exacte, il s'agisse de l'ultime Commutateur MT25 que nous puissions retrouver dans toute la région PACA, les autres ayant soit déjà été visités par nos soins, soit déjà détruits.
  • Équipé de Calculateurs Mercure 321 demeurés intacts.

Photographies C. R-V. - 12 décembre 2022 - Coll. C. R-V/Orange DANP

_____

  • 2023.01.14Boulogne2ET1MT25Ref147002-01
  • 2023.01.14Boulogne2ET1MT25Ref147002-02
  • 2023.01.14Boulogne2ET1MT25Ref147002-03
  • 2023.01.14Boulogne2ET1MT25Ref147002-04
  • 2023.01.14Boulogne2ET1MT25Ref147002-05
  • 2023.01.14Boulogne2ET1MT25Ref147002-06
  • 2023.01.14Boulogne2ET1MT25Ref147002-07
  • 2023.01.14Boulogne2ET1MT25Ref147002-08
  • 2023.01.14Boulogne2ET1MT25Ref147002-09
  • 2023.01.14Boulogne2ET1MT25Ref147002-10
  • 2023.01.14Boulogne2ET1MT25Ref147002-25
  • 2023.01.14Boulogne2ET1MT25Ref147002-26

Ci-dessus : Commutateur MT25 sis au Centre Téléphonique Boulogne, à Boulogne-Billancourt (92).

  • BOULOGNE 2 ET1 (CB22) - Mis en service le 3 juin 1991 - Hors service le 21 novembre 2001 - Fabricant Alcatel Thomson.
  • Cet autocommutateur fut arrêté après 10 ans de service seulement. Ainsi, sera-t-il resté pourvu jusqu'à son arrêt définitif de ses deux Dérouleurs de Bande Magnétique (DBM), l'ordre de retrait général n'ayant pas eu le temps de lui être appliqué avant son très rapide arrêt. Il s'agit d'une exception notable.
  • En revanche, la machine avait commencé à être démontée, mais finalement le chantier fut stoppé il y a au moins 20 ans, en raison du changement de politique impulsé en 2002 pour cause de surendettement de France-Télécom ayant été révélé jadis au grand jour...
  • Équipé de Calculateurs Mercure 322.

Photographies C. R-V. - 14 janvier 2023 - Coll. C. R-V/Orange DANP

_____

  • 2023.02.11BoissyB2MT25Ref147113-01
  • 2023.02.11BoissyB2MT25Ref147113-02
  • 2023.02.11BoissyB2MT25Ref147113-03
  • 2023.02.11BoissyB2MT25Ref147113-04
  • 2023.02.11BoissyB2MT25Ref147113-05
  • 2023.02.11BoissyB2MT25Ref147113-06
  • 2023.02.11BoissyB2MT25Ref147113-07
  • 2023.02.11BoissyB2MT25Ref147113-08
  • 2023.02.11BoissyB2MT25Ref147113-09
  • 2023.02.11BoissyB2MT25Ref147113-10
  • 2023.02.11BoissyB2MT25Ref147113-11
  • 2023.02.11BoissyB2MT25Ref147113-12
  • 2023.02.11BoissyB2MT25Ref147113-13
  • 2023.02.11BoissyB2MT25Ref147113-14
  • 2023.02.11BoissyB2MT25Ref147113-15
  • 2023.02.11BoissyB2MT25Ref147113-16

Ci-dessus : Commutateur MT25 sis au Centre Téléphonique Boissy, à Boissy-Saint-Léger (94).

  • BOISSY B2 (DB22) - Mis en service le 26 avril 1984 - Hors service le 18 septembre 2018 - Fabricant Thomson-CSF
  • Équipé de Calculateurs Mercure 322.

Photographies C. R-V. - 11 février 2023 - Coll. C. R-V/Orange DANP

_____

  • 2023.02.13BlancMesnilA2MT25Ref147370-01
  • 2023.02.13BlancMesnilA2MT25Ref147370-04
  • 2023.02.13BlancMesnilA2MT25Ref147370-05
  • 2023.02.13BlancMesnilA2MT25Ref147370-08
  • 2023.02.13BlancMesnilA2MT25Ref147370-09
  • 2023.02.13BlancMesnilA2MT25Ref147370-10
  • 2023.02.13BlancMesnilA2MT25Ref147370-11
  • 2023.02.13BlancMesnilA2MT25Ref147370-12
  • 2023.02.13BlancMesnilA2MT25Ref147370-13
  • 2023.02.13BlancMesnilA2MT25Ref147370-14
  • 2023.02.13BlancMesnilA2MT25Ref147370-16
  • 2023.02.13BlancMesnilA2MT25Ref147370-18

Ci-dessus : Commutateur MT25 sis au Centre Téléphonique Blanc-Mesnil, à Le Blanc-Mesnil (93).

  • BLANC-MESNIL A2 (BB42) - Mis en service le 10 mai 1984 - Hors service le 26 juin 2018 - Fabricant Thomson-CSF.
  • Équipé de Calculateurs Mercure 322.

Photographies C. R-V. - 13 février 2023 - Coll. C. R-V/Orange DANP

_____

  • 2023.02.23Defense5ET3MT25Ref147702-02
  • 2023.02.23Defense5ET3MT25Ref147702-04
  • 2023.02.23Defense5ET3MT25Ref147702-06
  • 2023.02.23Defense5ET3MT25Ref147702-08
  • 2023.02.23Defense5ET3MT25Ref147702-10
  • 2023.02.23Defense5ET3MT25Ref147702-12
  • 2023.02.23Defense5ET3MT25Ref147702-14
  • 2023.02.23Defense5ET3MT25Ref147702-16
  • 2023.02.23Defense5ET3MT25Ref147702-18
  • 2023.02.23Defense5ET3MT25Ref147702-20
  • 2023.02.23Defense5ET3MT25Ref147702-22
  • 2023.02.23Defense5ET3MT25Ref147702-24

Ci-dessus : vue du Commutateur MT25 sis au centre téléphonique de Courbevoie - Défense, Courbevoie (92).

  • DÉFENSE 5 ET3 (CB55) - Mis en service le 27 mars 1991 - Hors service le 8 décembre 2015 - Fabricant : Alcatel/Thomson.
  • À noter les panneaux latéraux de couleur rouge (et non plus marron chocolat) : ce sont les ultimes MT25 mis en service qui sont peints en rouge (couleur choisie par Alcatel quelques années après le rachat la branche de Thomson Commutation Publique...)

Photographies C. R-V. - 23 février 2023 - Coll. C. R-V/DANP.

  • Nota : leurs étiquettes signalétiques sont désormais marquées E10MT25, et non pas MT25. Alcatel avait cru bon d’accoler E10 contre MT25, alors que E10 et MT25 sont deux systèmes d'architectures totalement différentes... Un choix strictement "commercial" en somme et qui ne veut donc strictement rien dire...

_____

  • 2023.02.27RoubaixPile4MT25Ref147731-01
  • 2023.02.27RoubaixPile4MT25Ref147731-02
  • 2023.02.27RoubaixPile4MT25Ref147731-03
  • 2023.02.27RoubaixPile4MT25Ref147731-04
  • 2023.02.27RoubaixPile4MT25Ref147731-05
  • 2023.02.27RoubaixPile4MT25Ref147731-06
  • 2023.02.27RoubaixPile4MT25Ref147731-07
  • 2023.02.27RoubaixPile4MT25Ref147731-08
  • 2023.02.27RoubaixPile4MT25Ref147731-09
  • 2023.02.27RoubaixPile4MT25Ref147731-10
  • 2023.02.27RoubaixPile4MT25Ref147731-11
  • 2023.02.27RoubaixPile4MT25Ref147731-12
  • 2023.02.27RoubaixPile4MT25Ref147731-13
  • 2023.02.27RoubaixPile4MT25Ref147731-14

Ci-dessus : Commutateur MT25 sis au Centre Téléphonique Roubaix Pile, à Roubaix (59)

  • ROUBAIX PILE 4 (LL61) Mis en service le 23 janvier 1990 - Hors service le 3 juin 2014 - Fabricant : Alcatel/Thomson.
  • Premier autocommutateur MT25 de province, capable de traiter des abonnés Numéris.

Photographies C. R-V. - 27 février 2023 - Coll. C. R-V/Orange DANP.

_____

  • 2023.03.01Nanterre2ET1MT25Ref147739-01
  • 2023.03.01Nanterre2ET1MT25Ref147739-02
  • 2023.03.01Nanterre2ET1MT25Ref147739-03
  • 2023.03.01Nanterre2ET1MT25Ref147739-04
  • 2023.03.01Nanterre2ET1MT25Ref147739-05
  • 2023.03.01Nanterre2ET1MT25Ref147739-06
  • 2023.03.01Nanterre2ET1MT25Ref147739-07
  • 2023.03.01Nanterre2ET1MT25Ref147739-08
  • 2023.03.01Nanterre2ET1MT25Ref147739-09
  • 2023.03.01Nanterre2ET1MT25Ref147739-12
  • 2023.03.01Nanterre2ET1MT25Ref147739-13
  • 2023.03.01Nanterre2ET1MT25Ref147739-14
  • 2023.03.01Nanterre2ET1MT25Ref147739-15
  • 2023.03.01Nanterre2ET1MT25Ref147739-16
  • 2023.03.01Nanterre2ET1MT25Ref147739-17
  • 2023.03.01Nanterre2ET1MT25Ref147739-18
  • 2023.03.01Nanterre2ET1MT25Ref147739-19
  • 2023.03.01Nanterre2ET1MT25Ref147739-20

Ci-dessus : Commutateur MT25 sis au Centre Téléphonique de Nanterre (92).

  • NANTERRE 2 ET1 (CC42) - Mis en service le 3 mars 1988 - Hors service le 23 mai 2018 - Fabricant Alcatel/thomson.
  • Équipé de Calculateurs Mercure 322.

Photographies C. R-V. - 1er mars 2023 - Coll. C. R-V/Orange DANP

_____

  • 2023.03.02StGenevDesBoisC2MT25Ref147760-01
  • 2023.03.02StGenevDesBoisC2MT25Ref147760-02
  • 2023.03.02StGenevDesBoisC2MT25Ref147760-04
  • 2023.03.02StGenevDesBoisC2MT25Ref147760-06
  • 2023.03.02StGenevDesBoisC2MT25Ref147760-08
  • 2023.03.02StGenevDesBoisC2MT25Ref147760-10
  • 2023.03.02StGenevDesBoisC2MT25Ref147760-12
  • 2023.03.02StGenevDesBoisC2MT25Ref147760-14
  • 2023.03.02StGenevDesBoisC2MT25Ref147760-16
  • 2023.03.02StGenevDesBoisC2MT25Ref147760-18
  • 2023.03.02StGenevDesBoisC2MT25Ref147760-20
  • 2023.03.02StGenevDesBoisC2MT25Ref147760-22

Ci-dessus : Commutateur MT25 sis au Centre Téléphonique de Sainte-Geneviève-des-Bois (91).

  • SAINTE-GENEVIÈVE-DES-BOIS C2 (SE52) - Mis en service le 24 octobre 1989 - Hors service le 29 mars 2007 - Fabricant Alcatel/thomson.
  • Équipé de Calculateurs Mercure 322.

Photographies C. R-V. - 2 mars 2023 - Coll. C. R-V/Orange DANP

_____

  • 2023.05.30Creteil2ET1MT25Ref147968-01
  • 2023.05.30Creteil2ET1MT25Ref147968-02
  • 2023.05.30Creteil2ET1MT25Ref147968-04
  • 2023.05.30Creteil2ET1MT25Ref147968-06
  • 2023.05.30Creteil2ET1MT25Ref147968-08
  • 2023.05.30Creteil2ET1MT25Ref147968-10
  • 2023.05.30Creteil2ET1MT25Ref147968-12
  • 2023.05.30Creteil2ET1MT25Ref147968-14
  • 2023.05.30Creteil2ET1MT25Ref147968-16
  • 2023.05.30Creteil2ET1MT25Ref147968-18
  • 2023.05.30Creteil2ET1MT25Ref147968-19
  • 2023.05.30Creteil2ET1MT25Ref147968-20
  • 2023.05.30Creteil2ET1MT25Ref147968-25
  • 2023.05.30Creteil2ET1MT25Ref147968-26
  • 2023.05.30Creteil2ET1MT25Ref147968-38
  • 2023.05.30Creteil2ET1MT25Ref147968-43
  • 2023.05.30Creteil2ET1MT25Ref147968-48
  • 2023.05.30Creteil2ET1MT25Ref147968-49

Ci-dessus : vue d'ensemble du Commutateur MT25 sis au Centre Téléphonique CRÉTEIL (SAVAR), à Créteil (94)

  • CRÉTEIL 2 ET1 (DB82) - Mis en Service le 1er mars 1989 - Hors Service le 24 septembre 2019 - Fabricant : Alcatel/Thomson
  • Pourvu de Calculateurs Mercure 322 à son arrêt.

Photographies C. R-V. – 30 mai 2023 - Coll. C. R-V/Orange DANP

_____

  • 2023.06.05Rosny2ET1MT25Ref147996-01
  • 2023.06.05Rosny2ET1MT25Ref147996-02
  • 2023.06.05Rosny2ET1MT25Ref147996-04
  • 2023.06.05Rosny2ET1MT25Ref147996-06
  • 2023.06.05Rosny2ET1MT25Ref147996-08
  • 2023.06.05Rosny2ET1MT25Ref147996-10
  • 2023.06.05Rosny2ET1MT25Ref147996-12
  • 2023.06.05Rosny2ET1MT25Ref147996-16
  • 2023.06.05Rosny2ET1MT25Ref147996-18
  • 2023.06.05Rosny2ET1MT25Ref147996-20
  • 2023.06.05Rosny2ET1MT25Ref147996-22
  • 2023.06.05Rosny2ET1MT25Ref147996-24
  • 2023.06.05Rosny2ET1MT25Ref147996-26
  • 2023.06.05Rosny2ET1MT25Ref147996-28

Ci-dessus : Commutateur MT25 sis au Centre Téléphonique de Rosny-sous-Bois (93).

  • ROSNY 2 ET1 (BC52) -Mis en Service le 10 décembre 1986 - Hors Service le 4 décembre 2018 - Fabricant : CGCT
  • Pourvu de Calculateurs Mercure 322 à son arrêt.

Photographies C. R-V. – 5 juin 2023 - Coll. C. R-V/Orange DANP

_____

  • 2023.06.06Plaine2ET1MT25Ref148014-01
  • 2023.06.06Plaine2ET1MT25Ref148014-02
  • 2023.06.06Plaine2ET1MT25Ref148014-04
  • 2023.06.06Plaine2ET1MT25Ref148014-06
  • 2023.06.06Plaine2ET1MT25Ref148014-08
  • 2023.06.06Plaine2ET1MT25Ref148014-10
  • 2023.06.06Plaine2ET1MT25Ref148014-12
  • 2023.06.06Plaine2ET1MT25Ref148014-14
  • 2023.06.06Plaine2ET1MT25Ref148014-16
  • 2023.06.06Plaine2ET1MT25Ref148014-18
  • 2023.06.06Plaine2ET1MT25Ref148014-21
  • 2023.06.06Plaine2ET1MT25Ref148014-22
  • 2023.06.06Plaine2ET1MT25Ref148014-23
  • 2023.06.06Plaine2ET1MT25Ref148014-24
  • 2023.06.06Plaine2ET1MT25Ref148014-26
  • 2023.06.06Plaine2ET1MT25Ref148014-27

Ci-dessus : Commutateur MT25 sis au Centre Téléphonique Plaine, à Saint-Denis (93)

  • PLAINE 2 ET1 (BC32) -Mis en Service le 17 janvier 1984 - Hors Service le 21 septembre 2016 - Fabricant : Thomson-CSF
  • Pourvu de Calculateurs Mercure 322 à son arrêt.

Photographies C. R-V. – 6 juin 2023 - Coll. C. R-V/Orange DANP

_____

  • 2023.06.19TrappesB2MT25Ref148062-01
  • 2023.06.19TrappesB2MT25Ref148062-02
  • 2023.06.19TrappesB2MT25Ref148062-04
  • 2023.06.19TrappesB2MT25Ref148062-06
  • 2023.06.19TrappesB2MT25Ref148062-08
  • 2023.06.19TrappesB2MT25Ref148062-10
  • 2023.06.19TrappesB2MT25Ref148062-12
  • 2023.06.19TrappesB2MT25Ref148062-14
  • 2023.06.19TrappesB2MT25Ref148062-16
  • 2023.06.19TrappesB2MT25Ref148062-18
  • 2023.06.19TrappesB2MT25Ref148062-20
  • 2023.06.19TrappesB2MT25Ref148062-22
  • 2023.06.19TrappesB2MT25Ref148062-27
  • 2023.06.19TrappesB2MT25Ref148062-28

Ci-dessus : Commutateur MT25 sis au Centre Téléphonique de Trappes (78)

  • TRAPPES B2 (WF32) -Mis en Service le 19 avril 1984 - Hors Service le 8 novembre 2007 - Fabricant : Thomson-CSF
  • Pourvu de Calculateurs Mercure 322 à son arrêt.

Photographies C. R-V. – 19 juin 2023 - Coll. C. R-V/Orange DANP

_____

  • 2023.07.25BordeauxMeriadeck4MT25Ref148232-01
  • 2023.07.25BordeauxMeriadeck4MT25Ref148232-02
  • 2023.07.25BordeauxMeriadeck4MT25Ref148232-04
  • 2023.07.25BordeauxMeriadeck4MT25Ref148232-06
  • 2023.07.25BordeauxMeriadeck4MT25Ref148232-08
  • 2023.07.25BordeauxMeriadeck4MT25Ref148232-10
  • 2023.07.25BordeauxMeriadeck4MT25Ref148232-12
  • 2023.07.25BordeauxMeriadeck4MT25Ref148232-14
  • 2023.07.25BordeauxMeriadeck4MT25Ref148232-16
  • 2023.07.25BordeauxMeriadeck4MT25Ref148232-17
  • 2023.07.25BordeauxMeriadeck4MT25Ref148232-18
  • 2023.07.25BordeauxMeriadeck4MT25Ref148232-19
  • 2023.07.25BordeauxMeriadeck4MT25Ref148232-20
  • 2023.07.25BordeauxMeriadeck4MT25Ref148232-21

Ci-dessus : Commutateur MT25 sis au Centre Téléphonique Bordeaux Mériadeck, à Bordeaux (33)

  • BORDEAUX MÉRIADECK 4 (BX46) - Mis en Service en Février 1984 - Hors Service le 5 avril 2011 - Fabricant : Thomson-CSF
  • Pourvu de Calculateurs Mercure 321 à son arrêt.

Photographies C. R-V. – 25 juillet 2023 - Coll. C. R-V/Orange DANP

_____

  • 2023.07.26Merignac3MT25Ref148319-01
  • 2023.07.26Merignac3MT25Ref148319-02
  • 2023.07.26Merignac3MT25Ref148319-04
  • 2023.07.26Merignac3MT25Ref148319-06
  • 2023.07.26Merignac3MT25Ref148319-08
  • 2023.07.26Merignac3MT25Ref148319-10
  • 2023.07.26Merignac3MT25Ref148319-12
  • 2023.07.26Merignac3MT25Ref148319-14
  • 2023.07.26Merignac3MT25Ref148319-16
  • 2023.07.26Merignac3MT25Ref148319-18
  • 2023.07.26Merignac3MT25Ref148319-19
  • 2023.07.26Merignac3MT25Ref148319-20
  • 2023.07.26Merignac3MT25Ref148319-22
  • 2023.07.26Merignac3MT25Ref148319-24
  • 2023.07.26Merignac3MT25Ref148319-35
  • 2023.07.26Merignac3MT25Ref148319-45
  • 2023.07.26Merignac3MT25Ref148319-48
  • 2023.07.26Merignac3MT25Ref148319-49

Ci-dessus : Commutateur MT25 sis au Centre Téléphonique Mérignac, à Mérignac (33)

  • MÉRIGNAC 3 (BX54) - Mis en Service le 30 septembre 1986 - Hors Service le 16 octobre 2012 - Fabricant : CGCT
  • Pourvu de Calculateurs Mercure 321 à son arrêt.

Photographies C. R-V. – 26 juillet 2023 - Coll. C. R-V/Orange DANP

_____

  • 2023.07.27Talence3MT25Ref148402-01
  • 2023.07.27Talence3MT25Ref148402-02
  • 2023.07.27Talence3MT25Ref148402-04
  • 2023.07.27Talence3MT25Ref148402-06
  • 2023.07.27Talence3MT25Ref148402-08
  • 2023.07.27Talence3MT25Ref148402-10
  • 2023.07.27Talence3MT25Ref148402-12
  • 2023.07.27Talence3MT25Ref148402-14
  • 2023.07.27Talence3MT25Ref148402-16
  • 2023.07.27Talence3MT25Ref148402-18
  • 2023.07.27Talence3MT25Ref148402-20
  • 2023.07.27Talence3MT25Ref148402-22
  • 2023.07.27Talence3MT25Ref148402-46
  • 2023.07.27Talence3MT25Ref148402-47

Ci-dessus : Commutateur MT25 sis au Centre Téléphonique de Talence (33)

  • TALENCE 3 (BX77) - Mis en Service en Septembre 1988 - Hors Service le 1er octobre 2013 - Fabricant : CGCT
  • Pourvu de Calculateurs Mercure 321 à son arrêt.

Photographies C. R-V. – 27 juillet 2023 - Coll. C. R-V/Orange DANP

_____

  • 2023.08.07MontpellierRondeletMT25Ref148464-01
  • 2023.08.07MontpellierRondeletMT25Ref148464-02
  • 2023.08.07MontpellierRondeletMT25Ref148464-04
  • 2023.08.07MontpellierRondeletMT25Ref148464-06
  • 2023.08.07MontpellierRondeletMT25Ref148464-08
  • 2023.08.07MontpellierRondeletMT25Ref148464-10
  • 2023.08.07MontpellierRondeletMT25Ref148464-12
  • 2023.08.07MontpellierRondeletMT25Ref148464-14
  • 2023.08.07MontpellierRondeletMT25Ref148464-16
  • 2023.08.07MontpellierRondeletMT25Ref148464-17
  • 2023.08.07MontpellierRondeletMT25Ref148464-18
  • 2023.08.07MontpellierRondeletMT25Ref148464-20
  • 2023.08.07MontpellierRondeletMT25Ref148464-23
  • 2023.08.07MontpellierRondeletMT25Ref148464-36

Ci-dessus : Commutateur MT25 sis au Centre Téléphonique Montpellier Rondelet, à Montpellier (34)

  • MONTPELLIER RONDELET MT (MP54) - Mis en Service en Septembre 1984 - Hors Service le 7 décembre 2005 - Fabricant : Thomson-CSF

Photographies C. R-V. – 7 août 2023 - Coll. C. R-V/Orange DANP

_____

  • 2023.08.21ToulouseGaronne2MT25Ref148481-01
  • 2023.08.21ToulouseGaronne2MT25Ref148481-02
  • 2023.08.21ToulouseGaronne2MT25Ref148481-04
  • 2023.08.21ToulouseGaronne2MT25Ref148481-06
  • 2023.08.21ToulouseGaronne2MT25Ref148481-08
  • 2023.08.21ToulouseGaronne2MT25Ref148481-10
  • 2023.08.21ToulouseGaronne2MT25Ref148481-12
  • 2023.08.21ToulouseGaronne2MT25Ref148481-14
  • 2023.08.21ToulouseGaronne2MT25Ref148481-15
  • 2023.08.21ToulouseGaronne2MT25Ref148481-16
  • 2023.08.21ToulouseGaronne2MT25Ref148481-17
  • 2023.08.21ToulouseGaronne2MT25Ref148481-19
  • 2023.08.21ToulouseGaronne2MT25Ref148481-20
  • 2023.08.21ToulouseGaronne2MT25Ref148481-22

Ci-dessus : Commutateur MT25 sis au Centre Téléphonique Toulouse Garonne, à Toulouse (31)

  • TOULOUSE GARONNE 2 (TL55) - Mis en Service le 23 octobre 1986 - Hors Service le 22 novembre 2011 - Fabricant : CGCT
  • Pourvu de Calculateurs Mercure 321 à son arrêt.

Photographies C. R-V. – 21 août 2023 - Coll. C. R-V/Orange DANP

_____

ConsoledAlarmesUtiliseeEn11FetenMT25

DetailConsoledAlarmesMT20

Ci-dessus : Console Système de retransmission des alarmes d'un Commutateur MT25 (en l'espèce BEAUJON 3 ET1 (AB33)) (Photographie : © C. R-V.)

  • Note : Ce modèle de console a aussi été utilisé pour les Commutateurs MT20 et également pour les MÉTACONTA 11F.

_____

MU321

Ci-dessus, Mercure 321 : vue d'un Calculateur de Commutateur MT25, modèle MU321 reconnaissable car il est constitué de 13 cartes sur l'alvéole du haut et de 3 blocs d'alimentation situés en haut à droite.

Photographie : © C. R-V. Robert Keller 2 ET1 (AD82).

_____

MU322

Ci-dessus, Mercure 322 : vue d'un Calculateur de Commutateur MT25, modèle MU322 reconnaissable car il est constitué de 2 cartes sur l'alvéole du haut (miniaturisation oblige) et d' 1 seul bloc d'alimentation situé en haut à droite.

Photographie : © C. R-V. Beaujon 3 ET1 (AB33)

_____

MT25DocumentationPapierCompleteDeCommutateur

Ci-dessus : vue des trois armoires nécessaires à la contenance de la documentation papier détaillée et complète d'un commutateur MT25, avec tous les schémas, les diagrammes, les notes techniques, les instructions relatives au matériel (de chaque organe et partie d'organe) et aux logiciels de fonctionnement.

( Photographie : © C. R-V.)

_____

  • Nota : un commutateur temporel n'est pas qu'un simple micro-ordinateur ou qu'un simple smartphone d'importation apocryphe, il s'agit d'une véritable machinerie conçue, fabriquée, exploitée et maintenue de manière sérieuse par de véritables professionnels.
  • Les commutateurs téléphoniques sont des machines numériques fiables, sérieuses, destinées à durer.

_____



Concernant les Services Confort : le système MT25 supporte les services Mémo Appel (Réveil) et Transfert d'Appel Local depuis le 15 septembre 1985, la Facturation Détaillée depuis début 1987, les services Signal d'Appel et Conversation à 3 depuis le 30 juin 1987 ; le service du Transfert d'Appel National depuis le 1er février 1988, la Présentation de l'Identité du Demandeur depuis le 2 septembre 1997 (Uniquement pour les abonnés reliés sur CSN ; l'URA2G étant incompatible avec ce service).

_____

_____

  • - Le Système MT25 est largement utilisé pour les centres téléphoniques d'abonnés, 307 Commutateurs MT25 sont installés en France, dont 103 en Île-de-France, inclus Paris intra-muros.
  • - Le système MT25 est capable de gérer jusqu'à 15.360 abonnés pour un MT25 pourvu d'un Réseau de Connexion Temporel-Temporel.
  • - Le système MT25 est capable de gérer jusqu'à 61.440 abonnés pour un MT25 pourvu d'un Réseau de Connexion Temporel-Spatial-Spatial-Temporel.
  • - Le système MT25 est capable d'écouler jusqu'à 120.000 appels à l'heure, en pleine charge, si équipé de processeurs MU321.
  • - Le système MT25 est capable d'écouler jusqu'à 240.000 appels à l'heure, en pleine charge, si équipé de processeurs MU322.
  • - Le premier Commutateurs MT25 de France a avoir été commandé le 20 avril 1979 est BERNY 2 ET1 (CB13). Il est situé à Antony. (Mais il ne sera pas le premier Commutateur MT25 mis en service : sa mise en service, prévue en Mars 1982 a été repoussée en raison de logiciels à mettre au point.)
  • - Le premier Commutateur MT25 est mis en service en France, à Paris, au centre téléphonique de Philippe-Auguste le 15 novembre 1983 (MT25 PHILIPPE-AUGUSTE 2 ET1 (AD32)).
  • - Le premier Commutateur MT25 d'Île-de-France est mis en service le 6 décembre 1983 à Antony : (BERNY 2 ET1 (CB13)) avec une capacité initiale de 17.000 abonnés. (après la 1ère commande du 20 avril 1979, la mise en construction a démarré en premier, mais ayant pris du retard, Philippe Auguste est mis en service légèrement en avance.)
  • - Le premier Commutateur MT25 mis en service en province le 20 décembre 1983 est RENNES MALAKOFF 2 (RN12).
  • - Le premier Commutateur MT25 de France équipé de CSN en première monte (au lieu des URA2G) est commandé le 12 juin 1986. Il est mis en service le 24 mars 1988 à Paris (MONTMARTRE 4 ET1 (AC94)) avec une capacité de 22.000 abonnés. Les CSN permettant d'accueillir les abonnés Numéris en plus des abonnés analogiques standards.
  • - Le premier Commutateur MT25 de France a être construit dans une cage de Faraday, destinée à le durcir pour résister à une décharge causée par une bombe atomique, est mis en service à Paris le 8 juin 1988 (PALAIS-ROSE 2 ET1 (AD42)). Mis hors service le 11 février 2014.
  • - Le premier Commutateur MT25 de France équipé du processeur MU321 est mis en service le 19 janvier 1989 à Paris (CARNOT 5 ET2 (AB65)).
  • - Le premier Commutateur MT25 de France équipé à l'origine de Calculateurs MU320  les échange pour des Calculateurs MU321 le 10 novembre 1989 (BASSANO 2 ET1 (AB23)). La conversion des autres Commutateurs MT25 de France se poursuivra jusqu'en 1997.
  • - Le Commutateur MT25 d'abonnés le plus récent de Paris est mis en service le 4 juin 1991 (PHILIPPE-AUGUSTE 3 ET2 (AD33)).
  • - Le premier Commutateur spécialisé MT25 de France est mis en service le 21 juillet 1991 (service aux entreprises - PARIS ÉCHIQUIER COLISÉE NUMÉRIS 5 (RT65)).
  • - Le premier Commutateur téléphonique ayant porté un indicatif AB.PQ de Téléphonie Mobile à la norme GSM 2G en France (07.10) est un Commutateur d'abonnés MT25 de Paris, à partir du 14 novembre 1991 (TRUDAINE 5 ET1 (AE16) (essais préparatoire à l'ouverture commerciale)).   Se reporter à la page sur la téléphonie mobile qui détaille ce fait historique. En effet, le système MT25 aura été d'une polyvalence à peine croyable et c'est à ce titre que nous pouvons rendre hommage à ce système et à leurs concepteurs.
  • - Le Commutateur MT25 le plus récent d'Île-de-France est mis en service le 21 janvier 1992 (SAINT-GERMAIN-EN-LAYE B2 (WD93)).
  • - Le Commutateur MT25 d'abonnés le plus récent de France est mis en service le 18 mars 1992 (CHÂTEAU-CHINON 2 (AX26)).
  • - Le Commutateur spécialisé MT25 le plus récent de France est mis en service en Octobre 1993 (service aux entreprises - PARIS ÉCHIQUIER COLISÉE NUMÉRIS 7 (RT66)).
  • - Les dernières extensions de Commutateurs MT25 existants sont commandées en 1995.
  • - La plupart des URA 2G ont été remplacées par des CSN au cours des années 1995 à 2005 en basculant les abonnés sur des cartes de raccordement qui supportaient ces nouveaux services modernes.
  • - Le premier Commutateur MT25 à être arrêté en France le 7 juin 1998 est CONCARNEAU 2  (QU23).
  • - Le premier Commutateur MT25 d'Île-de-France à être arrêté le 25 septembre 1998 est SARCELLES A3 (NE23).
  • - Le premier Commutateur MT25 de Paris intra-muros à être arrêté le 6 mai 1999 est BEAUJON 4 ET2 (AB34).
  • - Jusqu'en 2002, concernant les Commutateurs MT25, MT20 et E10N1, les opérations d'arrêt/basculage des commutateurs téléphoniques sont effectuées par le constructeur Alcatel. Pour une question d'économies (Plan TOP 5a), il est décidé de monter une filière interne France-Télécom pour reprendre l'intégralité de cette activité. Un chef de Projet, M. Gilbert Calbet, est nommé à cet effet le 25 juin 2003.
  • - Initialement, l'arrêt total des Commutateurs MT25 est envisagé pour 2010. Mais en raison de la nécessité de procéder au retrait des Commutateurs E10N1 en priorité, la vie des Commutateurs MT25 est prorogée une première fois jusques en fin 2015.
  • - Par ailleurs, la suppression de la Taxe Professionnelle au 1er janvier 2010 qui frappait chaque cœur de chaîne en fonctionnement amplifie ce répit.
  • - Finalement, l’arrêt total d’exploitation des Commutateurs MT25, replanifié pour la fin 2015, est repoussé une seconde fois à la fin 2020.
  • - Le dernier Commutateur MT25 de province est mis hors-service le 15 octobre 2019 ; il s'agit de LIMOGES PONT NEUF NODAL 2 (LM32).
  • - Le dernier Commutateur MT25 de Paris intra-muros est mis hors service le 29 septembre 2020 ; il s'agit de JEMMAPES 2 ET2 (AD06).
  • -Le dernier Commutateur MT25 d'Île-de-France (et de France) est mis hors service le 13 octobre 2020 ; il s'agit d'AULNAY-SOUS-BOIS A3 (BB03).

Jemmapes2ET2MT25bis

Ci-dessus : en visite devant le vénérable Commutateur MT25  - JEMMAPES 2 ET2 (AD06).

Mis en service le 27 septembre 1990 - Hors service le 29 septembre 2020 - Fabricant : Alcatel, qui est l'ultime Commutateur MT25 de Paris intra-muros à cesser ses activités.

Photographie C. R-V. - 8 août 2017 - Coll. C. R-V.

_____

  • 2021.09.03Jemmapes2ET2aRef142478-01
  • 2021.09.03Jemmapes2ET2bRef142478-02
  • 2021.09.03Jemmapes2ET2cRef142478-03
  • 2021.09.03Jemmapes2ET2dRef142478-04
  • 2021.09.03Jemmapes2ET2eRef142478-07
  • 2021.09.03Jemmapes2ET2fRef142478-08
  • 2021.09.03Jemmapes2ET2gRef142478-09
  • 2021.09.03Jemmapes2ET2hRef142478-10
  • 2021.09.03Jemmapes2ET2iRef142478-11
  • 2021.09.03Jemmapes2ET2jRef142478-12
  • 2021.09.03Jemmapes2ET2kRef142478-13
  • 2021.09.03Jemmapes2ET2lRef142478-14
  • 2021.09.03Jemmapes2ET2mRef142478-16
  • 2021.09.03Jemmapes2ET2nRef142478-17
  • 2021.11.09Jemmapes2ET2aRef143423-01
  • 2021.11.09Jemmapes2ET2bRef143423-02
  • 2021.11.09Jemmapes2ET2cRef143423-03
  • 2021.11.09Jemmapes2ET2dRef143423-04
  • 2021.11.09Jemmapes2ET2eRef143423-05
  • 2021.11.09Jemmapes2ET2fRef143423-06
  • 2021.11.09Jemmapes2ET2gRef143423-07
  • 2021.11.09Jemmapes2ET2hRef143423-08

Ci-dessus : second Commutateur MT25 sis au Centre Téléphonique Nord-Jemmapes, à Paris.

  • JEMMAPES 2 ET2 (AD06) - Mis en service le 27 septembre 1990 - Hors service le 29 septembre 2020 - Fabricant Alcatel/Thomson.
  • Ultime Commutateur MT25 de Paris intra-muros à cesser ses activités.
  • Les Calculateurs de cet autocommutateur sont particuliers. Si le modèle MU321 comprend 11 cartes, le modèle MU322 comprend 2 cartes, et le modèle MU323 (utilisé seulement pour certains autocommutateurs MT20 - jamais sur les MT25) comprend 4 cartes.
  • Or, le modèle de calculateurs utilisé à Jemmapes comprend bizarrement 3 cartes ! Variante hybride expérimentale entre le MU322 et le MU323 ? Nous ne pouvons l'affirmer. Seulement une hypothèse que nous formulons a-posteriori.

Photographies C. R-V. - 3 septembre / 9 novembre 2021 - Coll. C. R-V/Orange DANP

_____

  • 2021.11.10AulnayA3MT25Ref143436-01
  • 2021.11.10AulnayA3MT25Ref143436-02
  • 2021.11.10AulnayA3MT25Ref143436-03
  • 2021.11.10AulnayA3MT25Ref143436-04
  • 2021.11.10AulnayA3MT25Ref143436-05
  • 2021.11.10AulnayA3MT25Ref143436-06
  • 2021.11.10AulnayA3MT25Ref143436-07
  • 2021.11.10AulnayA3MT25Ref143436-08
  • 2021.09.20AulnayA3MT25Ref142912-01
  • 2021.09.20AulnayA3MT25Ref142912-02
  • 2021.09.20AulnayA3MT25Ref142912-03
  • 2021.09.20AulnayA3MT25Ref142912-05
  • 2021.09.20AulnayA3MT25Ref142912-06
  • 2021.09.20AulnayA3MT25Ref142912-09
  • 2021.09.20AulnayA3MT25Ref142912-13
  • 2021.09.20AulnayA3MT25Ref142912-18
  • 2021.09.20AulnayA3MT25Ref142912-24
  • 2021.09.20AulnayA3MT25Ref142912-25
  • 2021.09.20AulnayA3MT25Ref142912-26
  • 2021.09.20AulnayA3MT25Ref142912-27
  • 2021.09.20AulnayA3MT25Ref142912-28
  • 2021.09.20AulnayA3MT25Ref142912-19
  • 2021.09.20AulnayA3MT25Ref142913-01
  • 2021.09.20AulnayA3MT25Ref142913-02

Ci-dessus : Commutateur MT25 sis au Centre Téléphonique Aulnay, à Aulnay-sous-Bois (93).

  • AULNAY A3 (BB03) - Mis en service le 21 juillet 1988 - Hors service le 13 octobre 2020 - Fabricant Alcatel/Thomson
  • Ultime Commutateur MT25 de France et d'Île-de-France à cesser ses activités.

Photographies C. R-V. - 10 novembre / 20 septembre 2021 - Coll. C. R-V/Orange DANP

_____

2020.10.13.EquipeBasculageAulnayA3MT25

Ci-dessus : équipe présente sur le Centre Téléphonique d'Aulnay-sous-Bois, ayant assuré la mise hors service du dernier MT25 de France - AULNAY A3 (BB03), devant les Calculateurs.

  • Au centre, le Pilote Local - Éric Cresta.

Photographie C. R-V. - 13 octobre 2020 - Coll. C. R-V.

_____

2020.10.13.AvecPartieEquipeOperationsOK

Ci-dessus : le soir de l'arrêt définitif de l'ultime Commutateur MT25 de France - AULNAY A3 (BB03), à Aulnay-sous-Bois (93), moi-même présent avec une partie de l'équipe, devant les Calculateurs.

Photographie Cresta - 13 octobre 2020 - Coll. C. R-V.

Arrêt du dernier Commutateur MT25 de France : AULNAY A3 (BB03) le 13 octobre 2020.

Video Youtube  - Novembre 2020 - © Équipe de communication Orange DTRS.

_____

Uniquement accessible aux fonctionnaires de France-Télécom et aux personnels de Orange, les liens, via le réseau interne Plazza, vers : 

  • une ancienne procédure type de mise en service de Commutateur MT25 (cas de CHAMPIGNY 2 ET1 (DB72)) :

https://plazza.orange.com/docs/DOC-322379

_____

  • un compte-rendu de reportage sur la mise hors service définitive d'un Commutateur MT25 (cas de BEAUJON 3 ET1 (AB33)) :

https://plazza.orange.com/docs/DOC-99614

  • un compte-rendu de reportage sur la mise hors service définitive d'un Commutateur MT25 (cas de CARNOT 5 ET2 (AB65)) :

https://plazza.orange.com/docs/DOC-957289

  • un compte-rendu de reportage sur la mise hors service définitive du dernier Commutateur MT25 de Paris (cas de JEMMAPES 2 ET2 (AD06)) :

https://plazza.orange.com/docs/DOC-1664367

  • un compte-rendu de reportage sur la mise hors service définitive du dernier Commutateur MT25 de France (cas d'AULNAY A3 (BB03)) :

https://plazza.orange.com/docs/DOC-1687228




MT35, présenté en 1983 par Thomson-CSF, variante modulaire de petite capacité conçue pour les zones à faible densité de population. 

- Un Commutateur MT35 peut être utilisé indifféremment en commutateur d'abonnés ou en commutateur de transit, ou de manière mélangée.

- Il s'agit d'un système à commande répartie.

- Construit en technologie CMOS pour la plupart des circuits intégrés utilisés, et NMOS pour les circuits complexes et spéciaux.

- Il s'agit également d'un système à Réseau de Connexion (RCX) réparti, car chaque Baie Terminale (BT) est parfaitement autonome et constitue un véritable commutateur automatique capable de prendre en charge jusqu'à 1200 abonnés analogiques par baie en charge typique si la baie est reliée à des liaisons numériques MIC et jusqu'à 800 abonnés analogiques par baie en charge typique si la baie est reliée à des liaisons de transmission analogiques de basse fréquence.

- Il s'agit d'un système modulaire qui permet de connecter entre elles par des liaisons numériques MIC spécialisées jusqu'à 14 Baies Terminales (BT) pouvant être accouplées pour constituer un commutateur modulaire capable de gérer jusqu'à 17.000 abonnés. 

_____

L' Architecture d'un Commutateur MT35 est constituée en 4 niveaux : (concerne chaque Baie Terminale (BT) constituant tout ou partie d'un commutateur MT35).

  • - 1er niveau : l'Unité de CoMmande (UCM) dupliquée, à base de microprocesseurs MC68.000, contrôlant l'Interface de Commande Numérique (ICN).
  • - 2ème niveau : l'Interface de Commande Numérique (ICN) dupliquée chargée des échanges entre les Unités Terminales Numériques (UTN) et l'Unité de CoMmande (UCM), via l'intermédiaire de Marqueurs (MQC).
  • - 3ème niveau : le Réseau de Connexion Numérique modulaire (RCN) formé d'une Matrice Temporelle Symétrique (MTS) pouvant connecter temporellement 8 liaisons numériques MIC entrantes vers 8 liaisons numériques MIC sortantes.
  • - 4ème niveau : les Unités Terminales Numériques (UTN). (au nombre de 1 à 5), où sont connectés les abonnés analogiques, les jonctions Basses Fréquences analogiques ou les liaisons numériques MIC, (était prévue l'arrivée ultérieure des abonnés RNIS).

- Une et une seule Baie d'Exploitation et de Maintenance (BEM) est nécessaire pour superviser le Commutateur MT35 complété par au moins une Baie Terminale (BT).

_____

Bien parti pour être acheté par l'administration des Télécommunications en 1983 pour couvrir les zones à faible densité, il n'est finalement pas déployé en France, car le système est abandonné en automne 1984 en raison de la fusion CIT Alcatel – Thomson CSF Telephone initiée à partir de Juillet 1984 et aboutie par un acte de fusion-scission du 31 octobre 1985.

Le système MT35 sera toutefois vendu en Amérique du Sud, notamment au Chili dès 1983 en 6 exemplaires, avant son arrêt rapide de commercialisation.

_____

MT35BaieTerminale

Ci-dessus : Baie Terminale formant partie d'un Commutateur MT35. 

Photographie Thomson-CSF.

_____



 Histoire des Télécommunications Françaises ­© Claude Rizzo-Vignaud, 30 septembre 2023.

___

Tous nos plus vifs remerciements aux Ingénieurs E.R. de la CIT-Alcatel, dont M. Jean-Yves Marjou pour leur aide précieuse dans la compréhension de certaines notions très particulières à la technologie temporelle.

___

Découvrez le site des Anciens de la CIT-Alcatel ici : http://photosalcatel.pagesperso-orange.fr/index.ht...